Reper:
Scoala Gimnaziala Alexandru Costescu, Pod Constanta, Soseaua Chitila,
Terase:
1
Bai:
2
Tip vilă:
Individual
Disponibilitate:
Imediat
Locuri de parcare:
3
Etaj:
1S+P+M
Stare interior:
Semifinisat
Lungime deschidere:
12
Suprafaţă utilă:
131 mp
Tip construcţie:
Beton
Stadiu construcție:
Finalizată
An construcţie:
1964
Facilitati
Alte Spații: Curte
Amenajare străzi: Asfaltate, Iluminat stradal, Mijloace de transport în comun
Finisaje: Mochetă
Contorizare: Contor electric, Contor gaz
Dotări imobil: Acoperiș
Ferestre: PVC
IT&C: Internet, Telefon
Pereți: Faianță, Vopsea lavabilă
Sistem încălzire: Calorifere, Centrală proprie
Utilități generale: Apă, Canalizare, CATV, Curent, Gaz
Uși interior: Celulare
Ușă intrare: PVC
Descriere proprietate
Casă si teren cu potențial major de dezvoltare – Bucureștii Noi, Str. Renașterii
Proprietate situată într-una dintre zonele căutate de case din Bucureștii Noi, pe o stradă liniștită, cu vecinătăți bune.
Zona și terenul sunt adevăratele puncte forte ale acestei oferte.
Detalii:
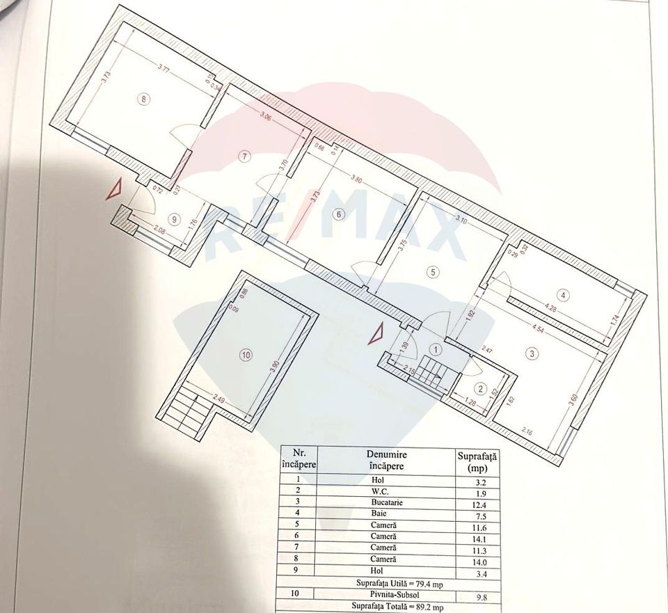
- Casă 5 camere, S + P + M (parțială) constructie din 1964 si cu extindere in 2004
- 131 mp utili / 155 mp total
- 4 camere la parter, bucatarie + 1 cameră la mansardă
- 1 baie + 1 grup sanitar, balcon/terasa
- Teren 484 mp, deschidere 12 ml
- Amprentă la sol 143 mp
- Localizare excelentă, zonă de case, liniștită
- Teren ideal pentru dezvoltare imobiliară
- Potrivita atât pentru reședință, cât și pentru proiect investițional
- Casa necesită amenajări partiale
Situata pe strada Renașterii, Bucureștii Noi, o zonă cu cerere constantă și potențial pe termen lung.
Pentru mai multe detalii sau programarea unei vizionări, mă puteți contacta telefonic.
Caracteristici privind perfomanta energetica:
- clasa energetică B;
- consumul total specific de energie primară: 149,1
- indicele de emisii echivalent CO_2: 40,09;
- consum total specific de energie din surse regenerabile: 0
Descriere proprietate
Casă si teren cu potențial major de dezvoltare – Bucureștii Noi, Str. Renașterii
Proprietate situată într-una dintre zonele căutate de case din Bucureștii Noi, pe o stradă liniștită, cu vecinătăți bune.
Zona și terenul sunt adevăratele puncte forte ale acestei oferte.
Detalii:
- Casă 5 camere, S + P + M (parțială) constructie din 1964 si cu extindere in 2004
- 131 mp utili / 155 mp total
- 4 camere la parter, bucatarie + 1 cameră la mansardă
- 1 baie + 1 grup sanitar, balcon/terasa
- Teren 484 mp, deschidere 12 ml
- Amprentă la sol 143 mp
- Localizare excelentă, zonă de case, liniștită
- Teren ideal pentru dezvoltare imobiliară
- Potrivita atât pentru reședință, cât și pentru proiect investițional
- Casa necesită amenajări partiale
Situata pe strada Renașterii, Bucureștii Noi, o zonă cu cerere constantă și potențial pe termen lung.
Pentru mai multe detalii sau programarea unei vizionări, mă puteți contacta telefonic.
Caracteristici privind perfomanta energetica:
- clasa energetică B;
- consumul total specific de energie primară: 149,1
- indicele de emisii echivalent CO_2: 40,09;
- consum total specific de energie din surse regenerabile: 0
Transformă-ți viziunea în realitate cu House Staging
Virtual!
Transformă-ți viziunea în realitate cu House
Staging Virtual!
Descoperă puterea creativității tale! Cu ajutorul instrumentului nostru de House Staging
Virtual, poți redecora și personaliza GRATUIT orice cameră din proprietatea de mai sus.
Experimentează cu mobilier, culori, texturi si stiluri diverse si vezi care dintre acestea ti se
potriveste.
Simplu, rapid și distractiv – toate acestea la un singur clic distanță. Începe acum să-ți
amenajezi virtual locuința ideală!
Fiecare birou francizat RE/MAX e deținut și operat independent.
Descarca gratuit ghidul cumparatorului
Contacteaza agent
Fă-ți cont pe Remax.ro!
Adaugi o proprietate la favorite.
Ai văzut o proprietate care ți-a plăcut? Salveaz-o pentru o accesare ulterioară rapidă.
Salvezi căutarile făcute.
Cauți proprietăți după anumite criterii? Acum le poți salva, pentru a verifica rapid proprietățile nou apărute pe site conform criteriilor tale de selecție.
Partajezi proprietatile selectate.
Vrei să te consiliezi cu un apropiat în privința unei anumite proprietăți? Ai posibilitatea să dai share listei de căutări salvate sau listei de favorite.