Amenajare străzi: Asfaltate, Iluminat stradal, Mijloace de transport în comun
IT&C: Internet, Telefon
Utilități generale: Apă, Canalizare, CATV, Curent, Gaz
Descriere proprietate
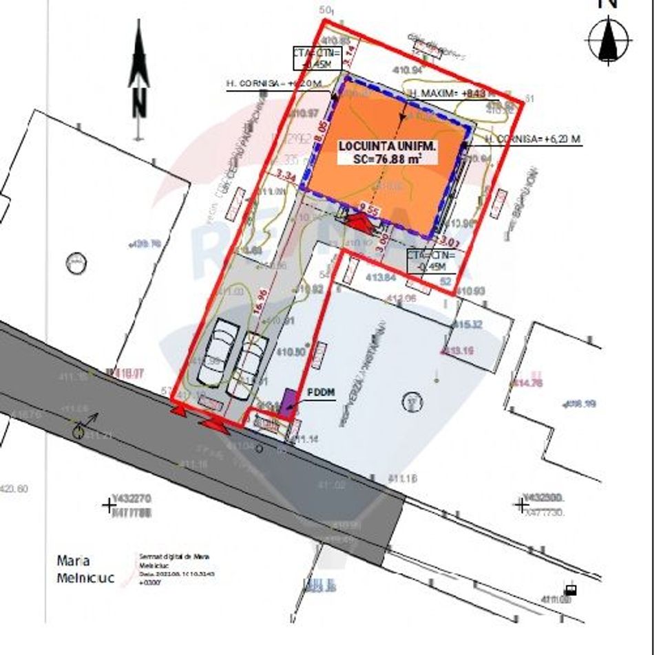
Casa unifamiliala situata in Turnisor, intr-o zona exclusiv de case.
Casa se preda la cheie, viitorul proprietar avand posibilitatea sa aleaga finisajele interioare(parchet, faianta, usi interioare, etc).
Este construita pe un teren in suprafata de 350 mp, gandita si echipata cu gadgeturi de ultima generatie - sistem de supraveghere, porti automate, instalatie pentru conectarea panourilor fotovoltaice.
Pretul se stabileste in functie de stadiul de predare!
Descriere proprietate
Casa unifamiliala situata in Turnisor, intr-o zona exclusiv de case.
Casa se preda la cheie, viitorul proprietar avand posibilitatea sa aleaga finisajele interioare(parchet, faianta, usi interioare, etc).
Este construita pe un teren in suprafata de 350 mp, gandita si echipata cu gadgeturi de ultima generatie - sistem de supraveghere, porti automate, instalatie pentru conectarea panourilor fotovoltaice.
Pretul se stabileste in functie de stadiul de predare!
Transformă-ți viziunea în realitate cu House Staging
Virtual!
Transformă-ți viziunea în realitate cu House
Staging Virtual!
Descoperă puterea creativității tale! Cu ajutorul instrumentului nostru de House Staging
Virtual, poți redecora și personaliza GRATUIT orice cameră din proprietatea de mai sus.
Experimentează cu mobilier, culori, texturi si stiluri diverse si vezi care dintre acestea ti se
potriveste.
Simplu, rapid și distractiv – toate acestea la un singur clic distanță. Începe acum să-ți
amenajezi virtual locuința ideală!
Fiecare birou francizat RE/MAX e deținut și operat independent.
Descarca gratuit ghidul cumparatorului
Contacteaza agent
Fă-ți cont pe Remax.ro!
Adaugi o proprietate la favorite.
Ai văzut o proprietate care ți-a plăcut? Salveaz-o pentru o accesare ulterioară rapidă.
Salvezi căutarile făcute.
Cauți proprietăți după anumite criterii? Acum le poți salva, pentru a verifica rapid proprietățile nou apărute pe site conform criteriilor tale de selecție.
Partajezi proprietatile selectate.
Vrei să te consiliezi cu un apropiat în privința unei anumite proprietăți? Ai posibilitatea să dai share listei de căutări salvate sau listei de favorite.