Amenajare străzi: Asfaltate, Iluminat stradal, Mijloace de transport în comun
Finisaje: Gresie, Parchet
Contorizare: Apometre, Contor gaz
Dotări: Aer condiționat
Ferestre: PVC
IT&C: Internet, Telefon
Izolații termice: Exterior
Mobilat: Nemobilat
Pereți: Faianță, Vopsea lavabilă
Podele: Piatră naturală
Rulouri / Obloane: Aluminiu
Sistem încălzire: Încălzire prin pardoseală, Centrală proprie
Utilități de bază: Supraveghere video
Utilități generale: Apă, Canalizare, CATV, Curent, Gaz
Uși interior: Lemn
Ușă intrare: Metal
Descriere proprietate
PENTHOUSE / DUPLEX CU TERASĂ PANORAMICĂ – COMPLEX HERCESA VIVENDA, ZONA MORARILOR
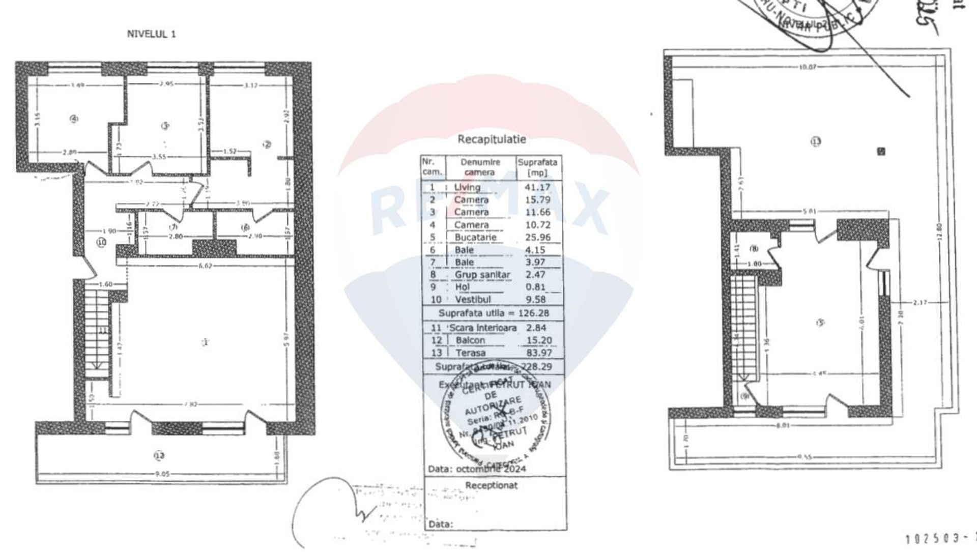
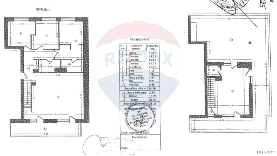
Vă propunem spre vânzare un apartament tip penthouse-duplex, cu 4 camere, situat la etajele 10 și 11 din complexul rezidențial Hercesa Vivenda. Cu o suprafață totală de 228 mp, proprietatea impresionează prin luminozitate, compartimentare excelentă și o terasă superbă cu vedere liberă pe trei laturi ale orașului.
Detalii și compartimentare:
Etaj 10: living generos, foarte luminos, cu balcon propriu și vedere spectaculoasă;
Etaj 11: bucătărie individuală, spațioasă, cu zonă de dining și acces direct către terasa principală;
3 dormitoare bine proporționate, ideale pentru familie;
Terasă panoramică de mari dimensiuni, ideală pentru relaxare, evenimente sau amenajare tip rooftop garden;
Suprafață totală: 228 mp;
Două locuri de parcare subterane incluse în preț.
Avantaje și beneficii:
Priveliște panoramică, liberă, pe trei laturi ale clădirii;
Complex rezidențial modern, sigur și bine administrat;
Localizare excelentă, cu acces rapid către zonele centrale și estice ale Bucureștiului.
Această proprietate reprezintă o oportunitate rară de a locui într-un penthouse luminos și exclusivist, unde confortul modern se completează cu privilegiul unor spații exterioare generoase și al unei vederi spectaculoase asupra orașului.
Descriere proprietate
PENTHOUSE / DUPLEX CU TERASĂ PANORAMICĂ – COMPLEX HERCESA VIVENDA, ZONA MORARILOR
Vă propunem spre vânzare un apartament tip penthouse-duplex, cu 4 camere, situat la etajele 10 și 11 din complexul rezidențial Hercesa Vivenda. Cu o suprafață totală de 228 mp, proprietatea impresionează prin luminozitate, compartimentare excelentă și o terasă superbă cu vedere liberă pe trei laturi ale orașului.
Detalii și compartimentare:
Etaj 10: living generos, foarte luminos, cu balcon propriu și vedere spectaculoasă;
Etaj 11: bucătărie individuală, spațioasă, cu zonă de dining și acces direct către terasa principală;
3 dormitoare bine proporționate, ideale pentru familie;
Terasă panoramică de mari dimensiuni, ideală pentru relaxare, evenimente sau amenajare tip rooftop garden;
Suprafață totală: 228 mp;
Două locuri de parcare subterane incluse în preț.
Avantaje și beneficii:
Priveliște panoramică, liberă, pe trei laturi ale clădirii;
Complex rezidențial modern, sigur și bine administrat;
Localizare excelentă, cu acces rapid către zonele centrale și estice ale Bucureștiului.
Această proprietate reprezintă o oportunitate rară de a locui într-un penthouse luminos și exclusivist, unde confortul modern se completează cu privilegiul unor spații exterioare generoase și al unei vederi spectaculoase asupra orașului.
Transformă-ți viziunea în realitate cu House Staging
Virtual!
Transformă-ți viziunea în realitate cu House
Staging Virtual!
Descoperă puterea creativității tale! Cu ajutorul instrumentului nostru de House Staging
Virtual, poți redecora și personaliza GRATUIT orice cameră din proprietatea de mai sus.
Experimentează cu mobilier, culori, texturi si stiluri diverse si vezi care dintre acestea ti se
potriveste.
Simplu, rapid și distractiv – toate acestea la un singur clic distanță. Începe acum să-ți
amenajezi virtual locuința ideală!
Fiecare birou francizat RE/MAX e deținut și operat independent.
Descarca gratuit ghidul cumparatorului
Contacteaza agent
Fă-ți cont pe Remax.ro!
Adaugi o proprietate la favorite.
Ai văzut o proprietate care ți-a plăcut? Salveaz-o pentru o accesare ulterioară rapidă.
Salvezi căutarile făcute.
Cauți proprietăți după anumite criterii? Acum le poți salva, pentru a verifica rapid proprietățile nou apărute pe site conform criteriilor tale de selecție.
Partajezi proprietatile selectate.
Vrei să te consiliezi cu un apropiat în privința unei anumite proprietăți? Ai posibilitatea să dai share listei de căutări salvate sau listei de favorite.