Alte caracteristici spațiu industrial: Curent trifazic (380V)
Amenajare străzi: Pietruite
Dotări imobil: Acoperiș
Ferestre: PVC
IT&C: Internet, Telefon
Izolații termice: Exterior
Utilități generale: Apă, Canalizare, CATV, Curent, Gaz
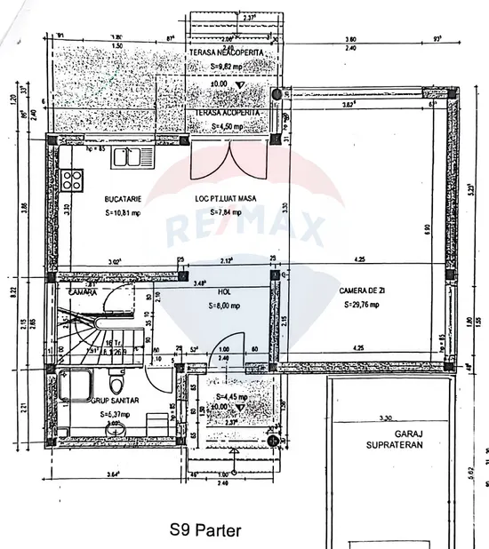
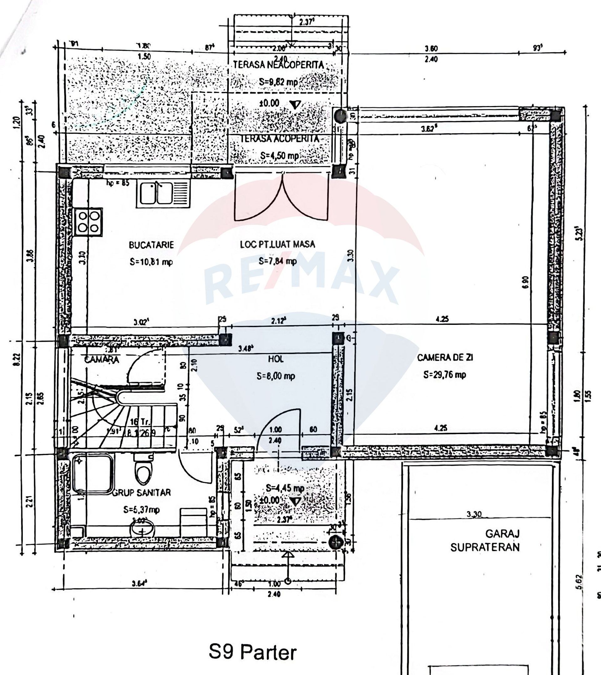
Descriere proprietate
Va propun spre achizitionare o vila individuală, solidă, într-un stadiu de construcție 'la gri', ideala pentru personalizare completă. Situată în cartierul ANL Henri Coandă (UAT Voluntari), pe bulevardul Mircea Veroiu, casa oferă un spațiu bine proportionat și o compartimentare eficientă pentru o familie activă. Beneficiaza de un lot de teren generos de 450 mp cu o deschidere de 18 m.
Cu o suprafata utila de 157 mp si totala de aprox. 200 mp (garaj 17 mp, balconul, terasele 24 mp) vila dispune de camere luminoase si o compartimentare foarte functionala:
-parter-living spatios, bucatarie cu zona de dinning si iesire catre terasa exterioara,baie serviciu, vestibul;
-etaj -3 dormitoare si 2 bai, balcon, spatii depozitare;
-demisol -camera depozitare 10 mp, camera tehnica 5 mp.
Caracteristici constructive,dotari si finisaje:
-fundatii beton armat,
-structura stalpi,grinzi si plansee beton armat,zidarie portanta din caramida 25 cm,
-acoperis sarpanta cu invelitoare tigla- hidroizolatie si termoizolatie vata minerala,
-inchideri exterioare caramida 25 cm si termoizolatie polistiren 10 cm,
-tamplarie exterioara PVC si geam termopan LOW-E;
Toate utilitățile necesare sunt disponibile la limita proprietății (poartă): rețea de apă și canalizare, electricitate, gaze naturale.
Vila dispune de intabulare si se vinde in stadiul existent. Necesita amenajarea interioara personalizata a viitorului proprietar-pardoseli, usi interior, obiecte sanitare s.a.
Pret 235.000 Euro
Cartierul este format din 1.100 de case individuale sau cuplate si ocupa o suprafata de 115 hectare.Beneficiaza de un amplu proiect de urbanizare ce va include numeroase facilitati-supermarket,scoala,gradinita,transport public. s.a. Toate elementele ii confera cartierului un important potential de dezvoltare si crestere.
Descriere proprietate
Va propun spre achizitionare o vila individuală, solidă, într-un stadiu de construcție 'la gri', ideala pentru personalizare completă. Situată în cartierul ANL Henri Coandă (UAT Voluntari), pe bulevardul Mircea Veroiu, casa oferă un spațiu bine proportionat și o compartimentare eficientă pentru o familie activă. Beneficiaza de un lot de teren generos de 450 mp cu o deschidere de 18 m.
Cu o suprafata utila de 157 mp si totala de aprox. 200 mp (garaj 17 mp, balconul, terasele 24 mp) vila dispune de camere luminoase si o compartimentare foarte functionala:
-parter-living spatios, bucatarie cu zona de dinning si iesire catre terasa exterioara,baie serviciu, vestibul;
-etaj -3 dormitoare si 2 bai, balcon, spatii depozitare;
-demisol -camera depozitare 10 mp, camera tehnica 5 mp.
Caracteristici constructive,dotari si finisaje:
-fundatii beton armat,
-structura stalpi,grinzi si plansee beton armat,zidarie portanta din caramida 25 cm,
-acoperis sarpanta cu invelitoare tigla- hidroizolatie si termoizolatie vata minerala,
-inchideri exterioare caramida 25 cm si termoizolatie polistiren 10 cm,
-tamplarie exterioara PVC si geam termopan LOW-E;
Toate utilitățile necesare sunt disponibile la limita proprietății (poartă): rețea de apă și canalizare, electricitate, gaze naturale.
Vila dispune de intabulare si se vinde in stadiul existent. Necesita amenajarea interioara personalizata a viitorului proprietar-pardoseli, usi interior, obiecte sanitare s.a.
Pret 235.000 Euro
Cartierul este format din 1.100 de case individuale sau cuplate si ocupa o suprafata de 115 hectare.Beneficiaza de un amplu proiect de urbanizare ce va include numeroase facilitati-supermarket,scoala,gradinita,transport public. s.a. Toate elementele ii confera cartierului un important potential de dezvoltare si crestere.
Transformă-ți viziunea în realitate cu House Staging
Virtual!
Transformă-ți viziunea în realitate cu House
Staging Virtual!
Descoperă puterea creativității tale! Cu ajutorul instrumentului nostru de House Staging
Virtual, poți redecora și personaliza GRATUIT orice cameră din proprietatea de mai sus.
Experimentează cu mobilier, culori, texturi si stiluri diverse si vezi care dintre acestea ti se
potriveste.
Simplu, rapid și distractiv – toate acestea la un singur clic distanță. Începe acum să-ți
amenajezi virtual locuința ideală!
Fiecare birou francizat RE/MAX e deținut și operat independent.
Descarca gratuit ghidul cumparatorului
Contacteaza agent
Fă-ți cont pe Remax.ro!
Adaugi o proprietate la favorite.
Ai văzut o proprietate care ți-a plăcut? Salveaz-o pentru o accesare ulterioară rapidă.
Salvezi căutarile făcute.
Cauți proprietăți după anumite criterii? Acum le poți salva, pentru a verifica rapid proprietățile nou apărute pe site conform criteriilor tale de selecție.
Partajezi proprietatile selectate.
Vrei să te consiliezi cu un apropiat în privința unei anumite proprietăți? Ai posibilitatea să dai share listei de căutări salvate sau listei de favorite.