Amenajare străzi: Betonate, Mijloace de transport în comun
Dotări imobil: Acoperiș
IT&C: Internet, Telefon
Mobilat: Nemobilat
Utilități generale: Apă, Canalizare, CATV, Curent, Gaz
Descriere proprietate
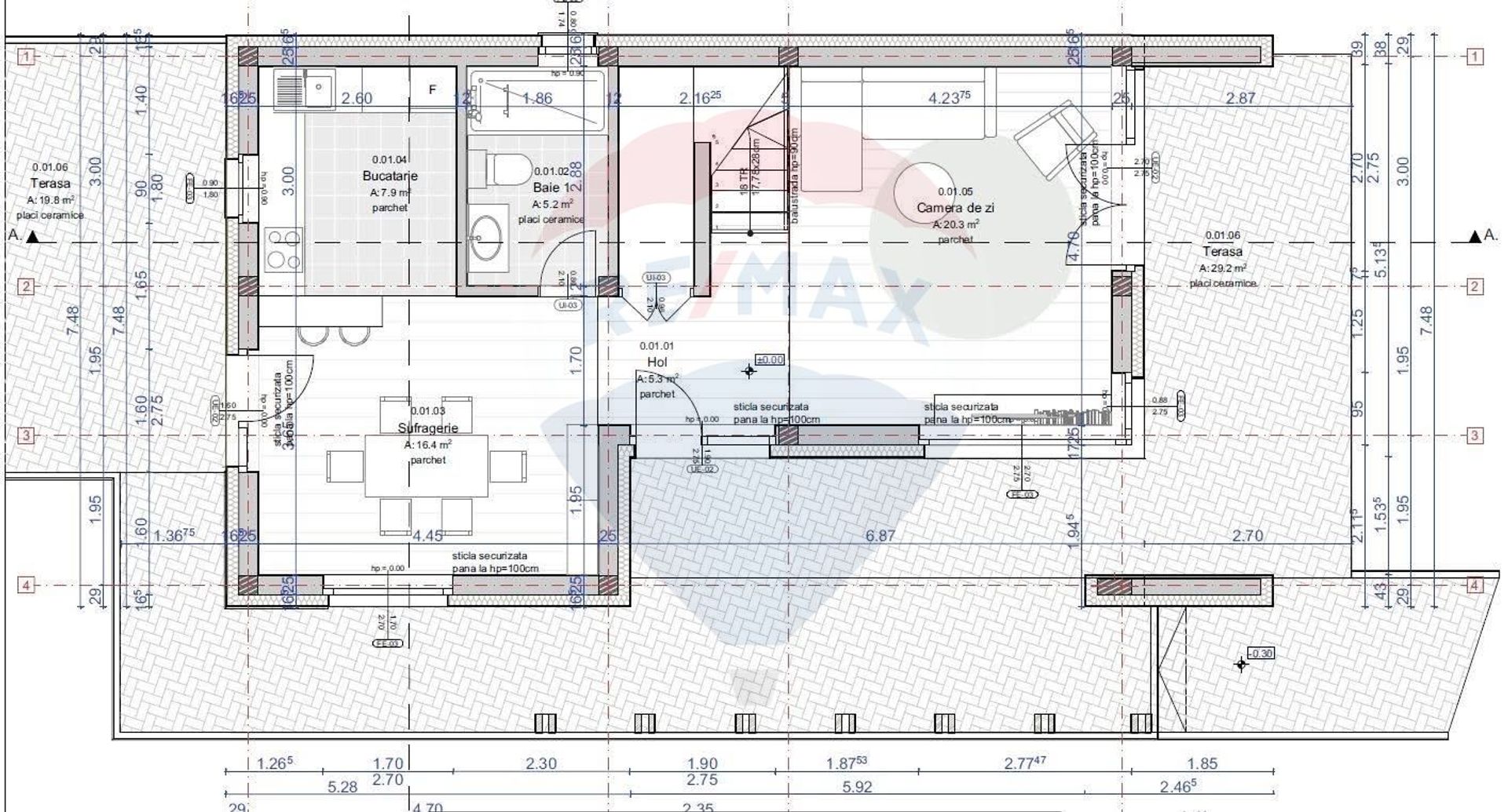
Vă oferim spre vânzare, în reprezentare exclusivă și fără comision la achiziție, o casă individuală situată în Jucu de Sus, pe strada Orizontului. Imobilul are o suprafață utilă de 120 mp, este dispus pe două niveluri (P+1) și este amplasat pe un teren plan, în suprafață de 800 mp.
Compartimentarea este următoarea:
-parter: living, bucătărie, baie, terasă
-etaj: dormitor matrimonial cu baie proprie și dressing, două dormitoare, baie, terasă
Proprietatea se vinde la stadiul „la roșu”, cu posibilitatea continuării lucrărilor împreună cu actualul constructor.
Utilitățile (apă, gaz, curent) sunt deja racordate, iar microstația de epurare este instalată.
Casa nu a fost construită inițial pentru vânzare, însă, din motive personale, proprietarul a decis să nu mai continue proiectul.
Construcția este realizată din cărămidă de 25 cm, iar acoperișul este din țiglă. Terenul este nivelat și delimitat pe două laturi de zid de sprijin.
Autorizația de construire este valabilă până în anul 2028, iar execuția a fost realizată conform proiectului autorizat.
Pentru mai multe informații sau pentru programarea unei vizionări, vă stau cu drag la dispoziție.
Descriere proprietate
Vă oferim spre vânzare, în reprezentare exclusivă și fără comision la achiziție, o casă individuală situată în Jucu de Sus, pe strada Orizontului. Imobilul are o suprafață utilă de 120 mp, este dispus pe două niveluri (P+1) și este amplasat pe un teren plan, în suprafață de 800 mp.
Compartimentarea este următoarea:
-parter: living, bucătărie, baie, terasă
-etaj: dormitor matrimonial cu baie proprie și dressing, două dormitoare, baie, terasă
Proprietatea se vinde la stadiul „la roșu”, cu posibilitatea continuării lucrărilor împreună cu actualul constructor.
Utilitățile (apă, gaz, curent) sunt deja racordate, iar microstația de epurare este instalată.
Casa nu a fost construită inițial pentru vânzare, însă, din motive personale, proprietarul a decis să nu mai continue proiectul.
Construcția este realizată din cărămidă de 25 cm, iar acoperișul este din țiglă. Terenul este nivelat și delimitat pe două laturi de zid de sprijin.
Autorizația de construire este valabilă până în anul 2028, iar execuția a fost realizată conform proiectului autorizat.
Pentru mai multe informații sau pentru programarea unei vizionări, vă stau cu drag la dispoziție.
Transformă-ți viziunea în realitate cu House Staging
Virtual!
Transformă-ți viziunea în realitate cu House
Staging Virtual!
Descoperă puterea creativității tale! Cu ajutorul instrumentului nostru de House Staging
Virtual, poți redecora și personaliza GRATUIT orice cameră din proprietatea de mai sus.
Experimentează cu mobilier, culori, texturi si stiluri diverse si vezi care dintre acestea ti se
potriveste.
Simplu, rapid și distractiv – toate acestea la un singur clic distanță. Începe acum să-ți
amenajezi virtual locuința ideală!
Fiecare birou francizat RE/MAX e deținut și operat independent.
Descarca gratuit ghidul cumparatorului
Contacteaza agent
Fă-ți cont pe Remax.ro!
Adaugi o proprietate la favorite.
Ai văzut o proprietate care ți-a plăcut? Salveaz-o pentru o accesare ulterioară rapidă.
Salvezi căutarile făcute.
Cauți proprietăți după anumite criterii? Acum le poți salva, pentru a verifica rapid proprietățile nou apărute pe site conform criteriilor tale de selecție.
Partajezi proprietatile selectate.
Vrei să te consiliezi cu un apropiat în privința unei anumite proprietăți? Ai posibilitatea să dai share listei de căutări salvate sau listei de favorite.