Amenajare străzi: Asfaltate, Iluminat stradal, Mijloace de transport în comun
Finisaje: Gresie, Parchet
Bucătărie: Deschisă
Contorizare: Contor căldură, Contor electric, Contor gaz
Dotări imobil: Acoperiș, Interfon
Electrocasnice: Hotă
IT&C: Internet, Telefon
Mobilat: Nemobilat
Pereți: Faianță, Vopsea lavabilă
Sistem încălzire: Centrală proprie, Încălzire prin pardoseală
Utilități generale: Apă, CATV, Curent, Fosă septică, Gaz
Ușă intrare: Metal
Uși interior: Lemn
Descriere proprietate
Acasă începe aici – în Săbăreni, într-un complex nou, gândit pentru viitorul tău.
Într-o comună aflată în plină dezvoltare, la doar câteva minute de București, prinde contur un nou complex rezidențial format din 11 case moderne, concepute pentru confort, liniște și siguranță. Primele 3 case sunt deja în construcție, urmând ca restul să fie dezvoltate etapizat, într-un proiect coerent și bine gândit.
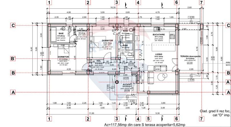
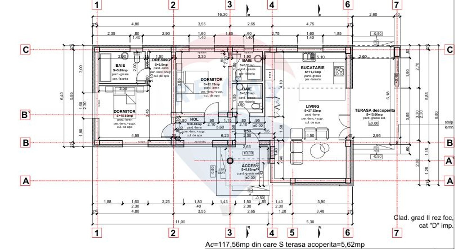
Fiecare locuință este compartimentată inteligent, cu 3 camere, spații luminoase și funcționale, ideale pentru un cuplu tânăr sau o familie cu copii. Casele vor fi dotate cu centrală proprie, încălzire în pardoseală și panouri electrice, oferind eficiență energetică, costuri reduse și confort pe termen lung.
Un alt mare avantaj îl reprezintă terenul generos aferent fiecărei case: aproximativ 422 mp de teren propriu, la care se adaugă 175 mp cotă din drumul de servitute. Accesul se face pe un drum de servitute cu lățimea de 7,30 m, gândit pentru trafic lejer și confortabil, cu acces electric, oferind siguranță și intimitate locatarilor. Spațiul exterior permite amenajarea unei grădini, a unui loc de joacă pentru copii sau a unei zone de relaxare, exact așa cum îți dorești.
Săbăreni nu este doar un loc unde îți cumperi o casă, ci o comunitate în care alegi să crești. Comuna dispune de locuri de joacă pentru copii, zone liniștite și un aer curat, perfect pentru viața de familie. În același timp, accesul rapid către Autostrada A1 și dezvoltarea accelerată a Autostrăzii A0 transformă această zonă într-o oportunitate excelentă de investiție, cu un potențial ridicat de creștere a valorii proprietăților.
Descriere proprietate
Acasă începe aici – în Săbăreni, într-un complex nou, gândit pentru viitorul tău.
Într-o comună aflată în plină dezvoltare, la doar câteva minute de București, prinde contur un nou complex rezidențial format din 11 case moderne, concepute pentru confort, liniște și siguranță. Primele 3 case sunt deja în construcție, urmând ca restul să fie dezvoltate etapizat, într-un proiect coerent și bine gândit.
Fiecare locuință este compartimentată inteligent, cu 3 camere, spații luminoase și funcționale, ideale pentru un cuplu tânăr sau o familie cu copii. Casele vor fi dotate cu centrală proprie, încălzire în pardoseală și panouri electrice, oferind eficiență energetică, costuri reduse și confort pe termen lung.
Un alt mare avantaj îl reprezintă terenul generos aferent fiecărei case: aproximativ 422 mp de teren propriu, la care se adaugă 175 mp cotă din drumul de servitute. Accesul se face pe un drum de servitute cu lățimea de 7,30 m, gândit pentru trafic lejer și confortabil, cu acces electric, oferind siguranță și intimitate locatarilor. Spațiul exterior permite amenajarea unei grădini, a unui loc de joacă pentru copii sau a unei zone de relaxare, exact așa cum îți dorești.
Săbăreni nu este doar un loc unde îți cumperi o casă, ci o comunitate în care alegi să crești. Comuna dispune de locuri de joacă pentru copii, zone liniștite și un aer curat, perfect pentru viața de familie. În același timp, accesul rapid către Autostrada A1 și dezvoltarea accelerată a Autostrăzii A0 transformă această zonă într-o oportunitate excelentă de investiție, cu un potențial ridicat de creștere a valorii proprietăților.
Transformă-ți viziunea în realitate cu House Staging
Virtual!
Transformă-ți viziunea în realitate cu House
Staging Virtual!
Descoperă puterea creativității tale! Cu ajutorul instrumentului nostru de House Staging
Virtual, poți redecora și personaliza GRATUIT orice cameră din proprietatea de mai sus.
Experimentează cu mobilier, culori, texturi si stiluri diverse si vezi care dintre acestea ti se
potriveste.
Simplu, rapid și distractiv – toate acestea la un singur clic distanță. Începe acum să-ți
amenajezi virtual locuința ideală!
Sabareni,
Fiecare birou francizat RE/MAX e deținut și operat independent.
Descarca gratuit ghidul cumparatorului
Contacteaza agent
Fă-ți cont pe Remax.ro!
Adaugi o proprietate la favorite.
Ai văzut o proprietate care ți-a plăcut? Salveaz-o pentru o accesare ulterioară rapidă.
Salvezi căutarile făcute.
Cauți proprietăți după anumite criterii? Acum le poți salva, pentru a verifica rapid proprietățile nou apărute pe site conform criteriilor tale de selecție.
Partajezi proprietatile selectate.
Vrei să te consiliezi cu un apropiat în privința unei anumite proprietăți? Ai posibilitatea să dai share listei de căutări salvate sau listei de favorite.