Alte caracteristici spațiu comercial: Afișare logo pe clădire, Contorizare separată
Finisaje: Grupuri sanitare amenajate și utilate
Climatizare birou: Centrală termică
Utilități teren: Apă, Canalizare, Curent, Gaz
Descriere proprietate
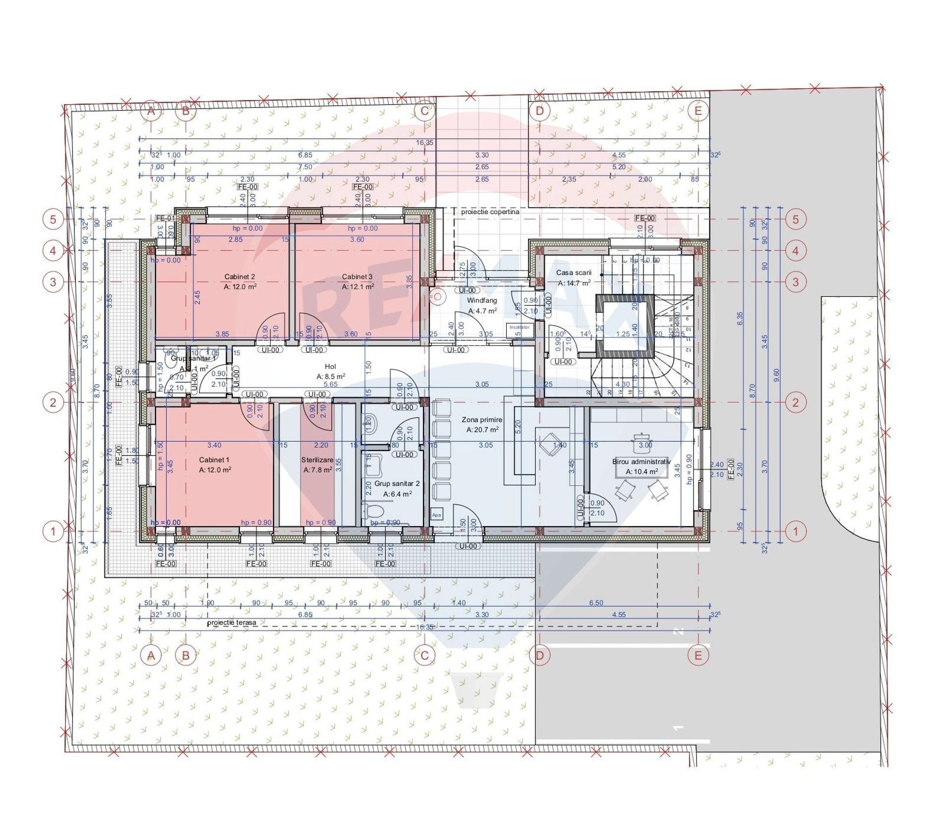
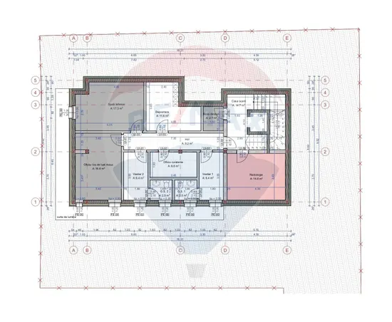
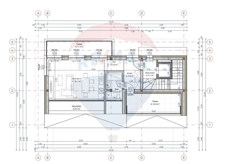
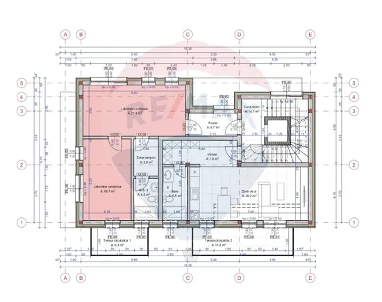
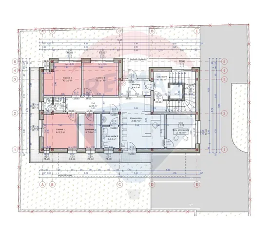
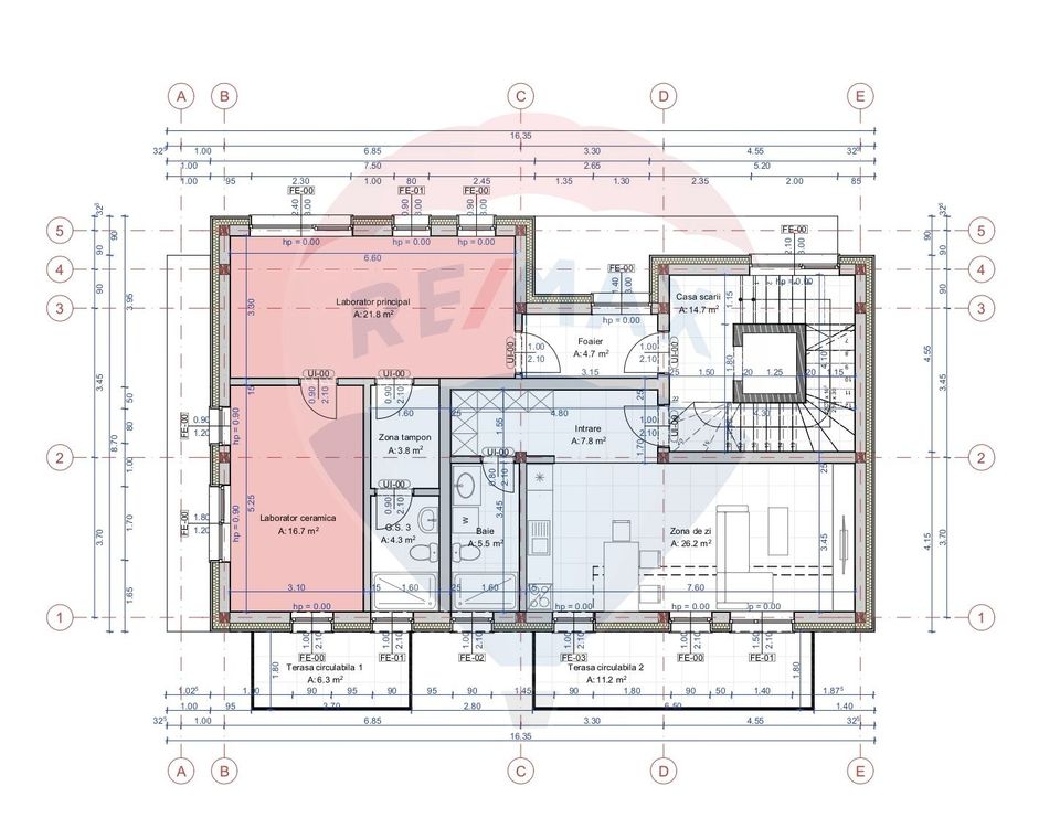
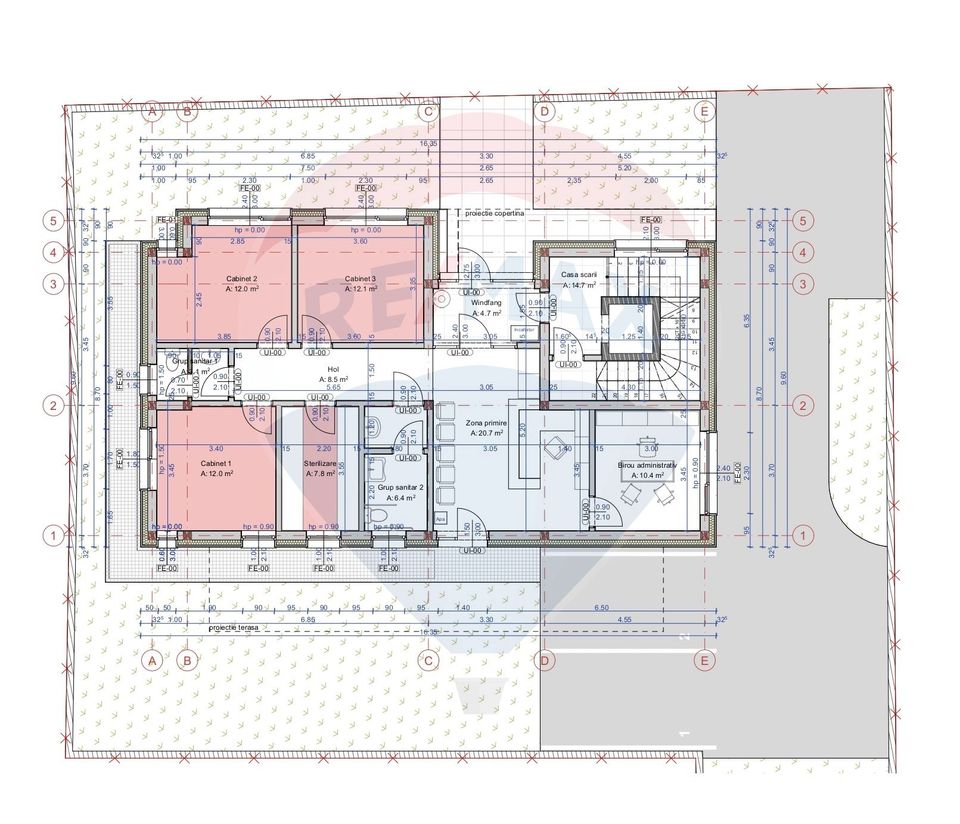
Va propunem spre inchiriere, in reprezentare exclusiva si fara comision din partea chiriasilor, o cladire mixta, edificata pe 4 niveluri (S+P+1+Er) in Grigorescu, strada Iacob Bologa nr.6 din Cluj-Napoca. Constructia va beeficia de 370mp utili, pe un teren de 465mp si va fi impartita in :
-sala asteptare
-6 cabinete cu posibilitate extindere pana la 8-9 cabinete(sali constultatie)
-sala sterilizare
-birouri administrative
-4 grupuri sanitare
-laboratoare
Proiectata pentru a functiona ca si clinica stomatologica cu posibilitate de modificare. Inaltimea tavenelor la 3.6m, cu tot cu tavanul casetat, designul modern, cat si materialele de calitate, fac din aceasta cladire una perfecta pentru a desfasura orice fel de activitati medicale.
Cladirea se preda la stadiul de finisat in 12 luni de la semnarea unui contract.. La cererea chiriasului se mai pot aduce modificari interioare. Se doreste chirias serios, de preferat cu isotric, pentru o colaborare pe termen lung. Pentru mai multe informatii, va rog sa ma contactati.
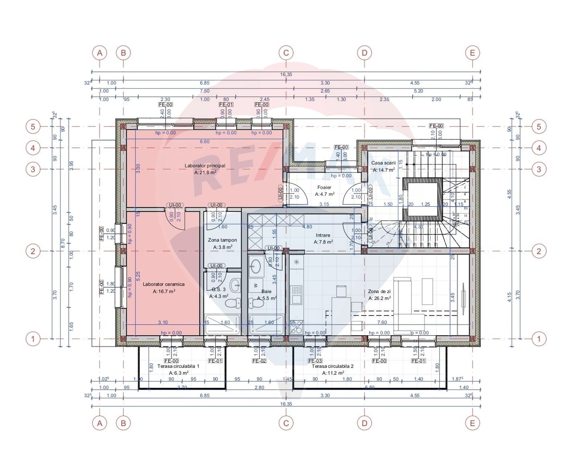
Descriere proprietate
Va propunem spre inchiriere, in reprezentare exclusiva si fara comision din partea chiriasilor, o cladire mixta, edificata pe 4 niveluri (S+P+1+Er) in Grigorescu, strada Iacob Bologa nr.6 din Cluj-Napoca. Constructia va beeficia de 370mp utili, pe un teren de 465mp si va fi impartita in :
-sala asteptare
-6 cabinete cu posibilitate extindere pana la 8-9 cabinete(sali constultatie)
-sala sterilizare
-birouri administrative
-4 grupuri sanitare
-laboratoare
Proiectata pentru a functiona ca si clinica stomatologica cu posibilitate de modificare. Inaltimea tavenelor la 3.6m, cu tot cu tavanul casetat, designul modern, cat si materialele de calitate, fac din aceasta cladire una perfecta pentru a desfasura orice fel de activitati medicale.
Cladirea se preda la stadiul de finisat in 12 luni de la semnarea unui contract.. La cererea chiriasului se mai pot aduce modificari interioare. Se doreste chirias serios, de preferat cu isotric, pentru o colaborare pe termen lung. Pentru mai multe informatii, va rog sa ma contactati.
Transformă-ți viziunea în realitate cu House Staging
Virtual!
Transformă-ți viziunea în realitate cu House
Staging Virtual!
Descoperă puterea creativității tale! Cu ajutorul instrumentului nostru de House Staging
Virtual, poți redecora și personaliza GRATUIT orice cameră din proprietatea de mai sus.
Experimentează cu mobilier, culori, texturi si stiluri diverse si vezi care dintre acestea ti se
potriveste.
Simplu, rapid și distractiv – toate acestea la un singur clic distanță. Începe acum să-ți
amenajezi virtual locuința ideală!
Cluj-Napoca,
Grigorescu
Fiecare birou francizat RE/MAX e deținut și operat independent.
Descarca gratuit ghidul cumparatorului
Contacteaza agent
Fă-ți cont pe Remax.ro!
Adaugi o proprietate la favorite.
Ai văzut o proprietate care ți-a plăcut? Salveaz-o pentru o accesare ulterioară rapidă.
Salvezi căutarile făcute.
Cauți proprietăți după anumite criterii? Acum le poți salva, pentru a verifica rapid proprietățile nou apărute pe site conform criteriilor tale de selecție.
Partajezi proprietatile selectate.
Vrei să te consiliezi cu un apropiat în privința unei anumite proprietăți? Ai posibilitatea să dai share listei de căutări salvate sau listei de favorite.