Alte caracteristici: Acces auto, Oportunitate de investiții
Amenajare străzi: Asfaltate, Iluminat stradal, Mijloace de transport în comun
Descriere proprietate
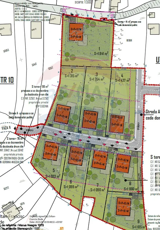
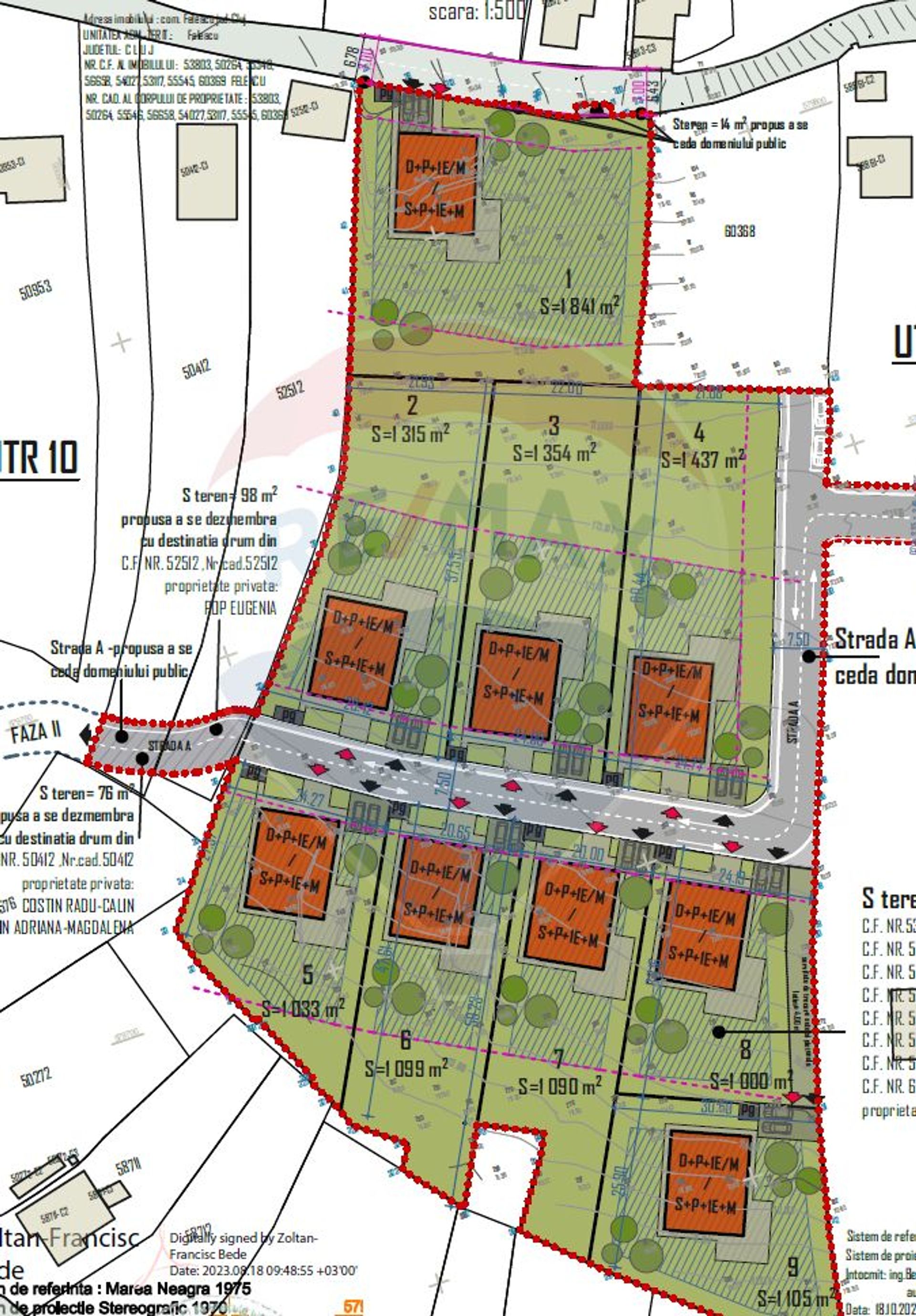
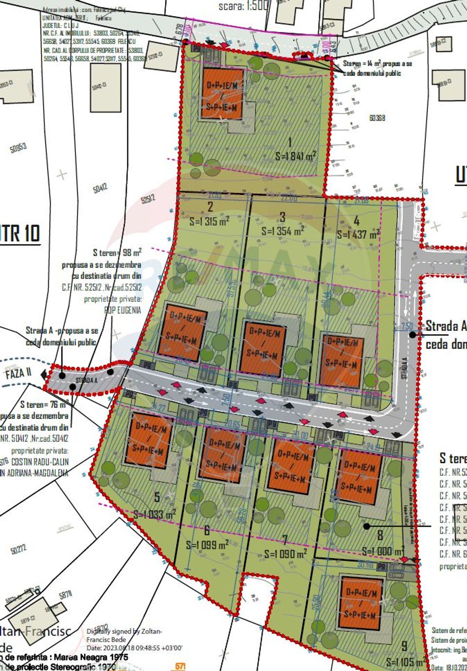
Vă propunem la vânzare în reprezentare exclusivă, un teren intravilan de 720 mp, parte dintr-un PUZ restrâns de 10 parcele, situat în comuna Feleacu — zonă liniștită, cu priveliști atractive și dezvoltare urbanistică recent aprobată.
- Suprafață: 720 mp
- Front: 13,5 m la drum nou (lățime drum 7,5 m)
- Regim urbanistic: PUZ aprobat pentru un ansamblu restrâns de 10 parcele
- Potențial: vecinătate de case cu loturi de peste 1.000 mp, potrivit pentru construcție rezidențială de calitate
- Priveliște: ușoară pantă favorabilă, vedere către pădure și Cheile Turzii
- Stare utilități: PUZ aprobat; în următoarele luni încep lucrările pentru amenajare drumuri și branșare utilități
Avantaje:
- Amplasament liniștit, ideal pentru casă familială
- Investiție sigură datorită PUZ-ului aprobat
- Acces rutier organizat prin drum nou în proiect
Pentru informații suplimentare, vizionare și oferte, contactați-ne cu încredere!
Descriere proprietate
Vă propunem la vânzare în reprezentare exclusivă, un teren intravilan de 720 mp, parte dintr-un PUZ restrâns de 10 parcele, situat în comuna Feleacu — zonă liniștită, cu priveliști atractive și dezvoltare urbanistică recent aprobată.
- Suprafață: 720 mp
- Front: 13,5 m la drum nou (lățime drum 7,5 m)
- Regim urbanistic: PUZ aprobat pentru un ansamblu restrâns de 10 parcele
- Potențial: vecinătate de case cu loturi de peste 1.000 mp, potrivit pentru construcție rezidențială de calitate
- Priveliște: ușoară pantă favorabilă, vedere către pădure și Cheile Turzii
- Stare utilități: PUZ aprobat; în următoarele luni încep lucrările pentru amenajare drumuri și branșare utilități
Avantaje:
- Amplasament liniștit, ideal pentru casă familială
- Investiție sigură datorită PUZ-ului aprobat
- Acces rutier organizat prin drum nou în proiect
Pentru informații suplimentare, vizionare și oferte, contactați-ne cu încredere!
Transformă-ți viziunea în realitate cu House Staging
Virtual!
Transformă-ți viziunea în realitate cu House
Staging Virtual!
Descoperă puterea creativității tale! Cu ajutorul instrumentului nostru de House Staging
Virtual, poți redecora și personaliza GRATUIT orice cameră din proprietatea de mai sus.
Experimentează cu mobilier, culori, texturi si stiluri diverse si vezi care dintre acestea ti se
potriveste.
Simplu, rapid și distractiv – toate acestea la un singur clic distanță. Începe acum să-ți
amenajezi virtual locuința ideală!
Feleacu,
Fiecare birou francizat RE/MAX e deținut și operat independent.
Descarca gratuit ghidul cumparatorului
Contacteaza agent
Fă-ți cont pe Remax.ro!
Adaugi o proprietate la favorite.
Ai văzut o proprietate care ți-a plăcut? Salveaz-o pentru o accesare ulterioară rapidă.
Salvezi căutarile făcute.
Cauți proprietăți după anumite criterii? Acum le poți salva, pentru a verifica rapid proprietățile nou apărute pe site conform criteriilor tale de selecție.
Partajezi proprietatile selectate.
Vrei să te consiliezi cu un apropiat în privința unei anumite proprietăți? Ai posibilitatea să dai share listei de căutări salvate sau listei de favorite.