Alte caracteristici: Acces auto, Oportunitate de investiții
Amenajare străzi: Asfaltate, Iluminat stradal, Mijloace de transport în comun
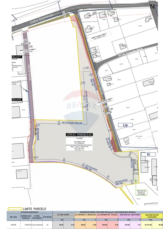
Urbanism: PUZ Aprobat
Utilități teren: Apă, Canalizare, Curent, Gaz
Descriere proprietate
Locație de top pentru logistică și producție!
Situat pe Strada Dezmirului (zona Someșeni), la doar câteva minute de Aeroportul Internațional Avram Iancu. Acces rapid pe DN1C, conexiune directă la linia de cale ferată industrială și la Calea Dezmirului – ideal pentru companii care importă/exportă sau au nevoie de flux rapid de mărfuri și personal.
Zona se transformă RAPID într-un pol industrial modern!
Comisia de Urbanism a Primăriei Cluj-Napoca a avizat recent un parc industrial de 9,5 hectare în aceeași zonă, mai exact pe Strada Cantonului nr. 30 (proiectul include producție, depozitare, cercetare, incubatoare de afaceri și sute de locuri de muncă).
Articolul complet: actualdecluj.ro (februarie 2026).
Aceste proiecte aduc modernizare, siguranță și creștere economică pentru întreaga zonă – inclusiv oportunități reale de angajare pentru comunitatea locală, indiferent de statutul social. Deja funcționează mai multe firme solide în zonă – referințe pozitive disponibile la cerere!
Parametri urbanistici aprobați prin PUZ (gata de construcție imediată):
• Funcțiune principală: Producție industrială + activități complementare (depozitare, cercetare, birouri, servicii cvasi-industriale)
• Regim de construire deschis – clădiri izolate, ventilație excelentă, acces facil, aspect aerisit
• Înălțime maximă: 1-2 subsoluri + Parter + maxim 3 etaje + niveluri retrase (Hmax cornișă = 21 m, Hmax total = 25 m)
• Configurații flexibile: P+3+R, P+1, P+1+R etc.
• POT maxim 60% → amprentă generoasă la sol (perfect pentru hale mari)
• CUT maxim 1,2 → suprafață desfășurată generoasă pe mai multe niveluri
• 80 de locuri de parcare (sau proporțional cu suprafața)
De ce este aceasta o investiție de nota 10?
• PUZ deja aprobat → economisești ani de birocrație
• Indicatori identici cu un mare parc industrial nou (sinergie perfectă)
• Locație logistică de top lângă aeroport + cale ferată
• Zonă în dezvoltare accelerată – prețul terenului va crește semnificativ în următorii 2-3 ani
• Mediu de afaceri curat și profesionist (firme active + proiecte mari aprobate)
Detalii complete, planuri, poze HD și vizionare – disponibile imediat la cerere.
Referințe de la firmele care operează deja în zonă – le oferim cu plăcere.
Interesat să construiești hală, depozit sau parc industrial propriu?
Scrie-mi în mesaj privat sau sună-mă – îți trimit detaliile solicitate în cel mai scurt timp.
Descriere proprietate
Locație de top pentru logistică și producție!
Situat pe Strada Dezmirului (zona Someșeni), la doar câteva minute de Aeroportul Internațional Avram Iancu. Acces rapid pe DN1C, conexiune directă la linia de cale ferată industrială și la Calea Dezmirului – ideal pentru companii care importă/exportă sau au nevoie de flux rapid de mărfuri și personal.
Zona se transformă RAPID într-un pol industrial modern!
Comisia de Urbanism a Primăriei Cluj-Napoca a avizat recent un parc industrial de 9,5 hectare în aceeași zonă, mai exact pe Strada Cantonului nr. 30 (proiectul include producție, depozitare, cercetare, incubatoare de afaceri și sute de locuri de muncă).
Articolul complet: actualdecluj.ro (februarie 2026).
Aceste proiecte aduc modernizare, siguranță și creștere economică pentru întreaga zonă – inclusiv oportunități reale de angajare pentru comunitatea locală, indiferent de statutul social. Deja funcționează mai multe firme solide în zonă – referințe pozitive disponibile la cerere!
Parametri urbanistici aprobați prin PUZ (gata de construcție imediată):
• Funcțiune principală: Producție industrială + activități complementare (depozitare, cercetare, birouri, servicii cvasi-industriale)
• Regim de construire deschis – clădiri izolate, ventilație excelentă, acces facil, aspect aerisit
• Înălțime maximă: 1-2 subsoluri + Parter + maxim 3 etaje + niveluri retrase (Hmax cornișă = 21 m, Hmax total = 25 m)
• Configurații flexibile: P+3+R, P+1, P+1+R etc.
• POT maxim 60% → amprentă generoasă la sol (perfect pentru hale mari)
• CUT maxim 1,2 → suprafață desfășurată generoasă pe mai multe niveluri
• 80 de locuri de parcare (sau proporțional cu suprafața)
De ce este aceasta o investiție de nota 10?
• PUZ deja aprobat → economisești ani de birocrație
• Indicatori identici cu un mare parc industrial nou (sinergie perfectă)
• Locație logistică de top lângă aeroport + cale ferată
• Zonă în dezvoltare accelerată – prețul terenului va crește semnificativ în următorii 2-3 ani
• Mediu de afaceri curat și profesionist (firme active + proiecte mari aprobate)
Detalii complete, planuri, poze HD și vizionare – disponibile imediat la cerere.
Referințe de la firmele care operează deja în zonă – le oferim cu plăcere.
Interesat să construiești hală, depozit sau parc industrial propriu?
Scrie-mi în mesaj privat sau sună-mă – îți trimit detaliile solicitate în cel mai scurt timp.
Transformă-ți viziunea în realitate cu House Staging
Virtual!
Transformă-ți viziunea în realitate cu House
Staging Virtual!
Descoperă puterea creativității tale! Cu ajutorul instrumentului nostru de House Staging
Virtual, poți redecora și personaliza GRATUIT orice cameră din proprietatea de mai sus.
Experimentează cu mobilier, culori, texturi si stiluri diverse si vezi care dintre acestea ti se
potriveste.
Simplu, rapid și distractiv – toate acestea la un singur clic distanță. Începe acum să-ți
amenajezi virtual locuința ideală!
Cluj-Napoca,
Aeroport
Fiecare birou francizat RE/MAX e deținut și operat independent.
Descarca gratuit ghidul cumparatorului
Contacteaza agent
Fă-ți cont pe Remax.ro!
Adaugi o proprietate la favorite.
Ai văzut o proprietate care ți-a plăcut? Salveaz-o pentru o accesare ulterioară rapidă.
Salvezi căutarile făcute.
Cauți proprietăți după anumite criterii? Acum le poți salva, pentru a verifica rapid proprietățile nou apărute pe site conform criteriilor tale de selecție.
Partajezi proprietatile selectate.
Vrei să te consiliezi cu un apropiat în privința unei anumite proprietăți? Ai posibilitatea să dai share listei de căutări salvate sau listei de favorite.