Alte caracteristici spațiu comercial: Afișare logo pe clădire
Finisaje: Grupuri sanitare amenajate și utilate
Climatizare birou: Centrală termică
Utilități teren: Apă, Canalizare, Curent
Descriere proprietate
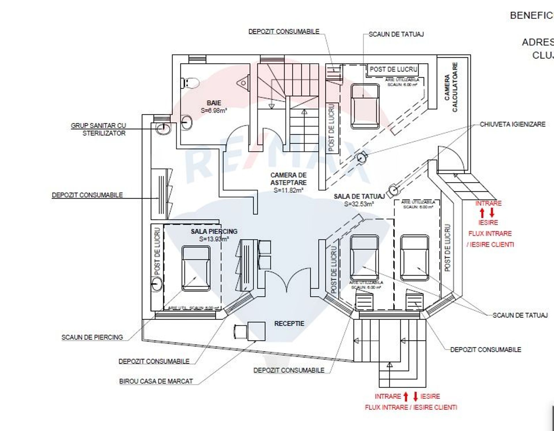
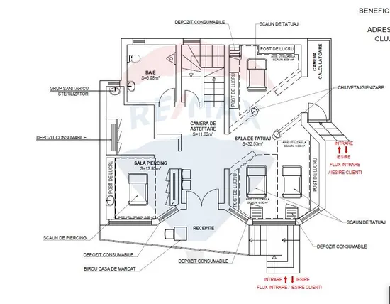
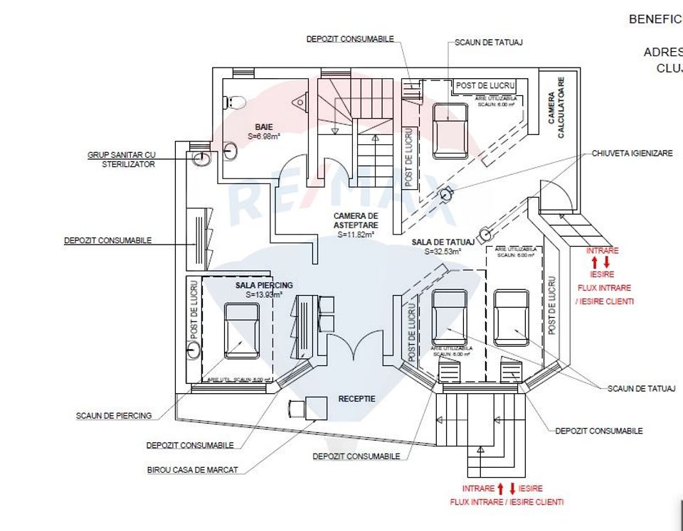
Descoperă acest spațiu comercial situat într-o vilă in zona Plopilor, cu o suprafață utilă de 165 mp care oferă funcționalitate excelentă pentru activități din domeniul beauty, cosmetică, masaj sau servicii medicale. Proprietatea este dispusă pe două niveluri – demisol și parter înalt – fiecare compartimentat eficient pentru a răspunde nevoilor oricărui concept profesional.
Demisolul include două camere spațioase, un grup sanitar, spațiu tehnic și zonă de depozitare, perfectă pentru organizare internă. Parterul oferă o recepție primitoare, hol de așteptare, o cameră cu spațiu de sterilizare, o încăpere cu două unități de lucru, un lobby administrativ și o baie.
Accesul se realizează printr-o poartă automatizată, iar curtea din fața imobilului este frumos pavată și are două locuri de parcare. Proprietatea beneficiază de trei căi de acces, interfon, toate utilitățile racordate (apă, canalizare, gaz, energie electrică) și sistem de încălzire prin centrală termică pe gaz asigurând un confort ridicat pe tot parcursul anului.
Spațiul deține autorizație de funcționare pentru salon de tatuaje (business care se poate prelua împreună cu spațiul de la actualul chiriaș), dar se poate adapta cu ușurință altor activități comerciale, de înfrumusețare sau medicale.
Se poate închiria și unitatea locativă de la primul etaj al casei.
Pentru detalii suplimentare sau pentru a programa o vizionare, proprietatea vă așteaptă să o descoperiți la fața locului.
Descriere proprietate
Descoperă acest spațiu comercial situat într-o vilă in zona Plopilor, cu o suprafață utilă de 165 mp care oferă funcționalitate excelentă pentru activități din domeniul beauty, cosmetică, masaj sau servicii medicale. Proprietatea este dispusă pe două niveluri – demisol și parter înalt – fiecare compartimentat eficient pentru a răspunde nevoilor oricărui concept profesional.
Demisolul include două camere spațioase, un grup sanitar, spațiu tehnic și zonă de depozitare, perfectă pentru organizare internă. Parterul oferă o recepție primitoare, hol de așteptare, o cameră cu spațiu de sterilizare, o încăpere cu două unități de lucru, un lobby administrativ și o baie.
Accesul se realizează printr-o poartă automatizată, iar curtea din fața imobilului este frumos pavată și are două locuri de parcare. Proprietatea beneficiază de trei căi de acces, interfon, toate utilitățile racordate (apă, canalizare, gaz, energie electrică) și sistem de încălzire prin centrală termică pe gaz asigurând un confort ridicat pe tot parcursul anului.
Spațiul deține autorizație de funcționare pentru salon de tatuaje (business care se poate prelua împreună cu spațiul de la actualul chiriaș), dar se poate adapta cu ușurință altor activități comerciale, de înfrumusețare sau medicale.
Se poate închiria și unitatea locativă de la primul etaj al casei.
Pentru detalii suplimentare sau pentru a programa o vizionare, proprietatea vă așteaptă să o descoperiți la fața locului.
Transformă-ți viziunea în realitate cu House Staging
Virtual!
Transformă-ți viziunea în realitate cu House
Staging Virtual!
Descoperă puterea creativității tale! Cu ajutorul instrumentului nostru de House Staging
Virtual, poți redecora și personaliza GRATUIT orice cameră din proprietatea de mai sus.
Experimentează cu mobilier, culori, texturi si stiluri diverse si vezi care dintre acestea ti se
potriveste.
Simplu, rapid și distractiv – toate acestea la un singur clic distanță. Începe acum să-ți
amenajezi virtual locuința ideală!
Cluj-Napoca,
Plopilor
Fiecare birou francizat RE/MAX e deținut și operat independent.
Descarca gratuit ghidul cumparatorului
Contacteaza agent
Fă-ți cont pe Remax.ro!
Adaugi o proprietate la favorite.
Ai văzut o proprietate care ți-a plăcut? Salveaz-o pentru o accesare ulterioară rapidă.
Salvezi căutarile făcute.
Cauți proprietăți după anumite criterii? Acum le poți salva, pentru a verifica rapid proprietățile nou apărute pe site conform criteriilor tale de selecție.
Partajezi proprietatile selectate.
Vrei să te consiliezi cu un apropiat în privința unei anumite proprietăți? Ai posibilitatea să dai share listei de căutări salvate sau listei de favorite.