Alte caracteristici: Acces auto, La șosea, Teren împrejmuit
Amenajare străzi: Asfaltate, Iluminat stradal, Mijloace de transport în comun
Utilități teren: Apă, Curent, Utilități în zonă
Descriere proprietate
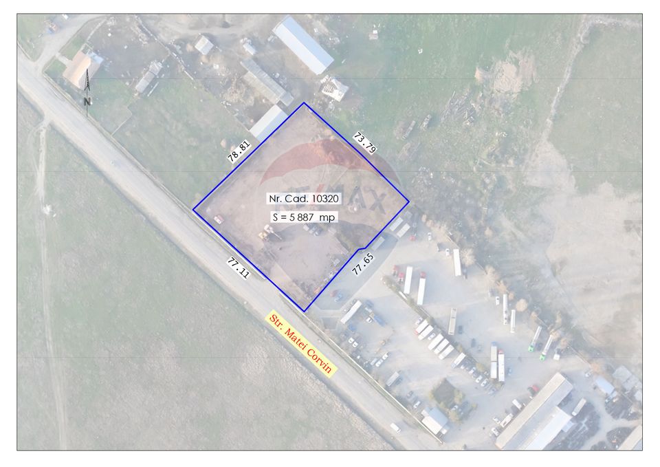
Se oferă spre închiriere o platformă betonată și îngrădită în suprafață de 5.887 mp, situată în Episcopia Bihorului, într-o zona ideală pentru activități logistice, parcare sau depozitare.
Caracteristici principale:
-Suprafață totală: 5887 mp platformă integral betonată
-Împrejmuită complet, acces securizat
-Acces facil pentru tiruri și utilaje grele
-Utilități disponibile pe teren: apă și curent electric
-Drum de acces asfaltat din șoseaua principală
Localizare:
Amplasată în Episcopia Bihorului, foarte aproape de Vama Borș, Centura Oradea și Autostrada A3, proprietatea oferă acces rapid către Ungaria și Europa de Vest.
Vis-a-Vis de Centrul Intermodal din Episcopia Bihorului
Pret negociabil, în funcție de durata contractului și destinația utilizării.
Vă stau la dispoziție pentru detalii suplimentare sau pentru a programa o vizionare.
Descriere proprietate
Se oferă spre închiriere o platformă betonată și îngrădită în suprafață de 5.887 mp, situată în Episcopia Bihorului, într-o zona ideală pentru activități logistice, parcare sau depozitare.
Caracteristici principale:
-Suprafață totală: 5887 mp platformă integral betonată
-Împrejmuită complet, acces securizat
-Acces facil pentru tiruri și utilaje grele
-Utilități disponibile pe teren: apă și curent electric
-Drum de acces asfaltat din șoseaua principală
Localizare:
Amplasată în Episcopia Bihorului, foarte aproape de Vama Borș, Centura Oradea și Autostrada A3, proprietatea oferă acces rapid către Ungaria și Europa de Vest.
Vis-a-Vis de Centrul Intermodal din Episcopia Bihorului
Pret negociabil, în funcție de durata contractului și destinația utilizării.
Vă stau la dispoziție pentru detalii suplimentare sau pentru a programa o vizionare.
Transformă-ți viziunea în realitate cu House Staging
Virtual!
Transformă-ți viziunea în realitate cu House
Staging Virtual!
Descoperă puterea creativității tale! Cu ajutorul instrumentului nostru de House Staging
Virtual, poți redecora și personaliza GRATUIT orice cameră din proprietatea de mai sus.
Experimentează cu mobilier, culori, texturi si stiluri diverse si vezi care dintre acestea ti se
potriveste.
Simplu, rapid și distractiv – toate acestea la un singur clic distanță. Începe acum să-ți
amenajezi virtual locuința ideală!
Oradea,
Episcopia Bihorului
Fiecare birou francizat RE/MAX e deținut și operat independent.
Descarca gratuit ghidul cumparatorului
Contacteaza agent
Fă-ți cont pe Remax.ro!
Adaugi o proprietate la favorite.
Ai văzut o proprietate care ți-a plăcut? Salveaz-o pentru o accesare ulterioară rapidă.
Salvezi căutarile făcute.
Cauți proprietăți după anumite criterii? Acum le poți salva, pentru a verifica rapid proprietățile nou apărute pe site conform criteriilor tale de selecție.
Partajezi proprietatile selectate.
Vrei să te consiliezi cu un apropiat în privința unei anumite proprietăți? Ai posibilitatea să dai share listei de căutări salvate sau listei de favorite.