Alte caracteristici spațiu comercial: Afișare logo pe clădire, Contorizare separată, Acces pentru persoane cu dizabilități, Sistem de ventilație
Finisaje: Mochetă, Ferestre care se deschid, Grupuri sanitare amenajate și utilate
Facilități clădire / proximități: Autobuz, Centru comercial în proximitate
IT&C: Internet, Posibilitatea alegerii operator date / telefonie
Servicii asigurate în clădire: Curățenie exterioară, Curățenie spații comune, Îngrijirea spațiilor verzi, Administrare și management imobiliar
Siguranță și securitate: Control acces securizat pe bază de cartele
Climatizare birou: Centrală termică, Control individual AC pentru fiecare zonă de birou
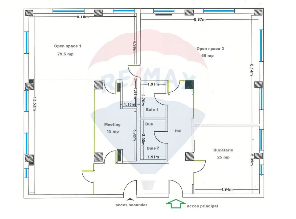
Descriere proprietate
Spatiul de birouri recent amenajat si utilat pentru o firma IT are suprafata totala de 220 mp iar configuratia actuala de tip open space, cu 2 zone mari si luminoase de lucru, meetig room, bucatarie si doua bai, permite usoare reamenajari.
In vecinatatea imediata exista restaurante, supermarket, sali de sport iar accesul este facilitat prin vecinatatea statiilor de autobuz.
Sunt oferite si incluse in pret 3 locuri de parcare in incinta ansamblului rezidential in care este amplasat spatiul.
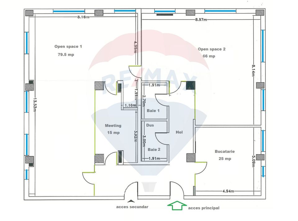
Descriere proprietate
Spatiul de birouri recent amenajat si utilat pentru o firma IT are suprafata totala de 220 mp iar configuratia actuala de tip open space, cu 2 zone mari si luminoase de lucru, meetig room, bucatarie si doua bai, permite usoare reamenajari.
In vecinatatea imediata exista restaurante, supermarket, sali de sport iar accesul este facilitat prin vecinatatea statiilor de autobuz.
Sunt oferite si incluse in pret 3 locuri de parcare in incinta ansamblului rezidential in care este amplasat spatiul.
Transformă-ți viziunea în realitate cu House Staging
Virtual!
Transformă-ți viziunea în realitate cu House
Staging Virtual!
Descoperă puterea creativității tale! Cu ajutorul instrumentului nostru de House Staging
Virtual, poți redecora și personaliza GRATUIT orice cameră din proprietatea de mai sus.
Experimentează cu mobilier, culori, texturi si stiluri diverse si vezi care dintre acestea ti se
potriveste.
Simplu, rapid și distractiv – toate acestea la un singur clic distanță. Începe acum să-ți
amenajezi virtual locuința ideală!
Fiecare birou francizat RE/MAX e deținut și operat independent.
Descarca gratuit ghidul cumparatorului
Contacteaza agent
Fă-ți cont pe Remax.ro!
Adaugi o proprietate la favorite.
Ai văzut o proprietate care ți-a plăcut? Salveaz-o pentru o accesare ulterioară rapidă.
Salvezi căutarile făcute.
Cauți proprietăți după anumite criterii? Acum le poți salva, pentru a verifica rapid proprietățile nou apărute pe site conform criteriilor tale de selecție.
Partajezi proprietatile selectate.
Vrei să te consiliezi cu un apropiat în privința unei anumite proprietăți? Ai posibilitatea să dai share listei de căutări salvate sau listei de favorite.