Amenajare străzi: Asfaltate, Iluminat stradal, Mijloace de transport în comun
Finisaje: Gresie, Parchet
Contorizare: Apometre, Contor electric, Contor gaz
Dotări: Aer condiționat
Ferestre: PVC
IT&C: Internet, Telefon
Pereți: Faianță, Vopsea lavabilă
Sistem încălzire: Calorifere, Centrală proprie
Utilități generale: Apă, Canalizare, CATV, Curent, Gaz
Uși interior: MDF
Ușă intrare: Metal
Descriere proprietate
Avem plăcerea să vă prezentăm un apartament spațios și versatil, situat în Voluntari, chiar pe Bulevardul Voluntari, în imediata apropiere a Primăriei. Proprietatea se află la etajul 2 al unui imobil cu doar două niveluri, oferind o atmosferă intimă și liniștită.
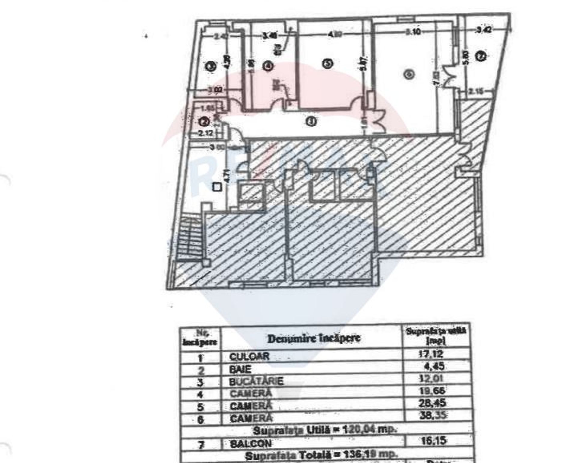
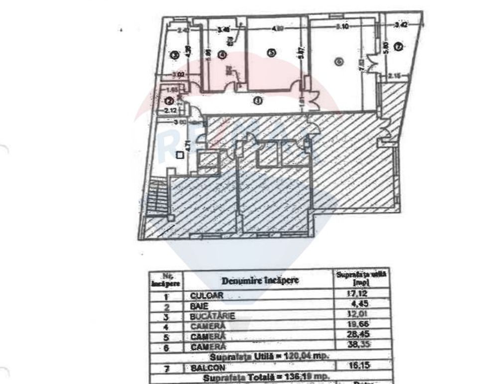
Apartamentul dispune de o suprafață utilă de 120 mp și o suprafață totală de 136 mp, fiind compartimentat în prezent in 3 camere generoase, utilizate ca spații de birouri, o baie și o bucătărie însă poate fi adaptat cu ușurință și pentru uz rezidențial. Configurația permite transformarea într-o locuință elegantă, luminoasă și confortabilă, cu zone de zi ample și dormitoare bine delimitate.
Un avantaj important îl reprezintă faptul că, la același etaj, se află o a doua proprietate cu suprafață și compartimentare similare, cele două putând fi unite pentru a crea un spațiu amplu de peste 250 mp, ideal pentru o companie, un birou de reprezentanță sau o locuință de mari dimensiuni.
Localizarea este excelentă: la doar câțiva pași de stația de autobuz Cocorilor, într-o zonă cu vizibilitate bună și acces rapid către zonele de birouri și centrele comerciale din Pipera. Pipera Plaza se află la aproximativ 10 minute cu mașina, oferind acces facil la restaurante, magazine și servicii.
Un spațiu generos, luminos și plin de potențial, potrivit pentru cei care își doresc libertate de amenajare, confort și o locație strategică în nordul Capitalei.
Te invit să programezi o vizionare pentru a descoperi personal potențialul acestui apartament sau posibilitatea unificării celor două proprietăți într-un spațiu cu adevărat deosebit.
Descriere proprietate
Avem plăcerea să vă prezentăm un apartament spațios și versatil, situat în Voluntari, chiar pe Bulevardul Voluntari, în imediata apropiere a Primăriei. Proprietatea se află la etajul 2 al unui imobil cu doar două niveluri, oferind o atmosferă intimă și liniștită.
Apartamentul dispune de o suprafață utilă de 120 mp și o suprafață totală de 136 mp, fiind compartimentat în prezent in 3 camere generoase, utilizate ca spații de birouri, o baie și o bucătărie însă poate fi adaptat cu ușurință și pentru uz rezidențial. Configurația permite transformarea într-o locuință elegantă, luminoasă și confortabilă, cu zone de zi ample și dormitoare bine delimitate.
Un avantaj important îl reprezintă faptul că, la același etaj, se află o a doua proprietate cu suprafață și compartimentare similare, cele două putând fi unite pentru a crea un spațiu amplu de peste 250 mp, ideal pentru o companie, un birou de reprezentanță sau o locuință de mari dimensiuni.
Localizarea este excelentă: la doar câțiva pași de stația de autobuz Cocorilor, într-o zonă cu vizibilitate bună și acces rapid către zonele de birouri și centrele comerciale din Pipera. Pipera Plaza se află la aproximativ 10 minute cu mașina, oferind acces facil la restaurante, magazine și servicii.
Un spațiu generos, luminos și plin de potențial, potrivit pentru cei care își doresc libertate de amenajare, confort și o locație strategică în nordul Capitalei.
Te invit să programezi o vizionare pentru a descoperi personal potențialul acestui apartament sau posibilitatea unificării celor două proprietăți într-un spațiu cu adevărat deosebit.
Transformă-ți viziunea în realitate cu House Staging
Virtual!
Transformă-ți viziunea în realitate cu House
Staging Virtual!
Descoperă puterea creativității tale! Cu ajutorul instrumentului nostru de House Staging
Virtual, poți redecora și personaliza GRATUIT orice cameră din proprietatea de mai sus.
Experimentează cu mobilier, culori, texturi si stiluri diverse si vezi care dintre acestea ti se
potriveste.
Simplu, rapid și distractiv – toate acestea la un singur clic distanță. Începe acum să-ți
amenajezi virtual locuința ideală!
Fiecare birou francizat RE/MAX e deținut și operat independent.
Descarca gratuit ghidul cumparatorului
Contacteaza agent
Fă-ți cont pe Remax.ro!
Adaugi o proprietate la favorite.
Ai văzut o proprietate care ți-a plăcut? Salveaz-o pentru o accesare ulterioară rapidă.
Salvezi căutarile făcute.
Cauți proprietăți după anumite criterii? Acum le poți salva, pentru a verifica rapid proprietățile nou apărute pe site conform criteriilor tale de selecție.
Partajezi proprietatile selectate.
Vrei să te consiliezi cu un apropiat în privința unei anumite proprietăți? Ai posibilitatea să dai share listei de căutări salvate sau listei de favorite.