Siguranță și securitate: Pază permanentă, Sistem de alarmă
Sistem încălzire: Calorifere, Centrală imobil
Utilități de bază: Supraveghere video
Utilități generale: Apă, Canalizare, CATV, Curent, Gaz
Uși interior: MDF
Ușă intrare: Metal
Ferestre: Aluminiu
Descriere proprietate
Vă propun spre vânzare în sistem de reprezentare exclusiva cu COMISION 0% pentru cumpărător, un apartament cu 2 camere, situat la parterul complexului rezidențial Green Future Sinaia, un proiect premium din una dintre cele mai renumite stațiuni montane din România.
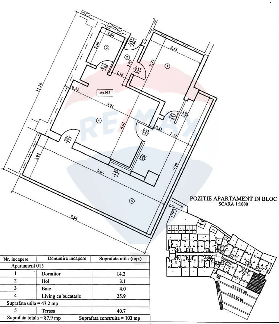
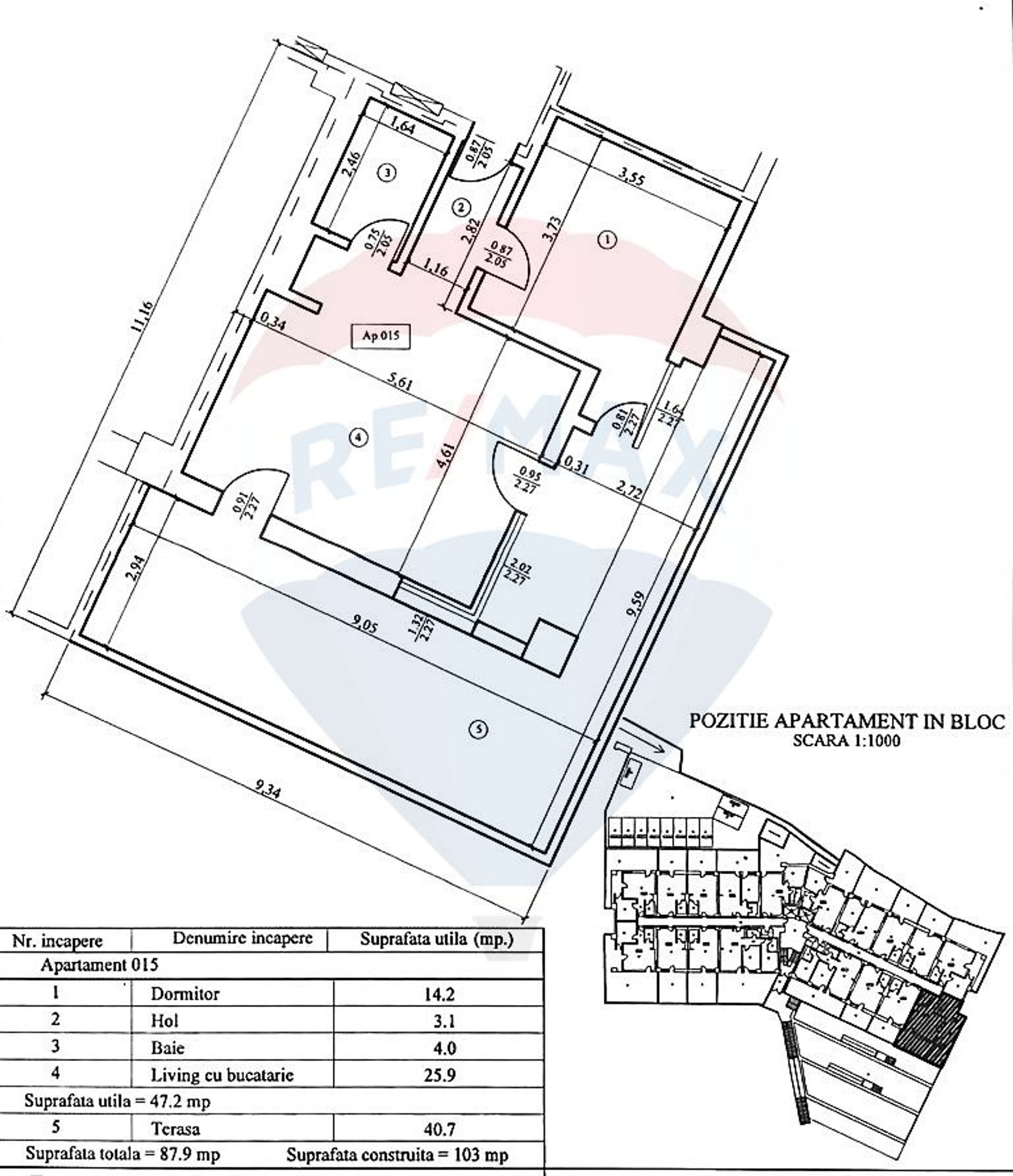
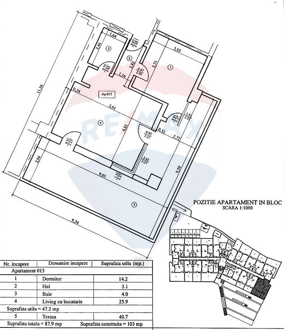
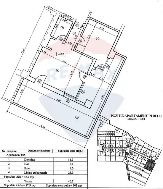
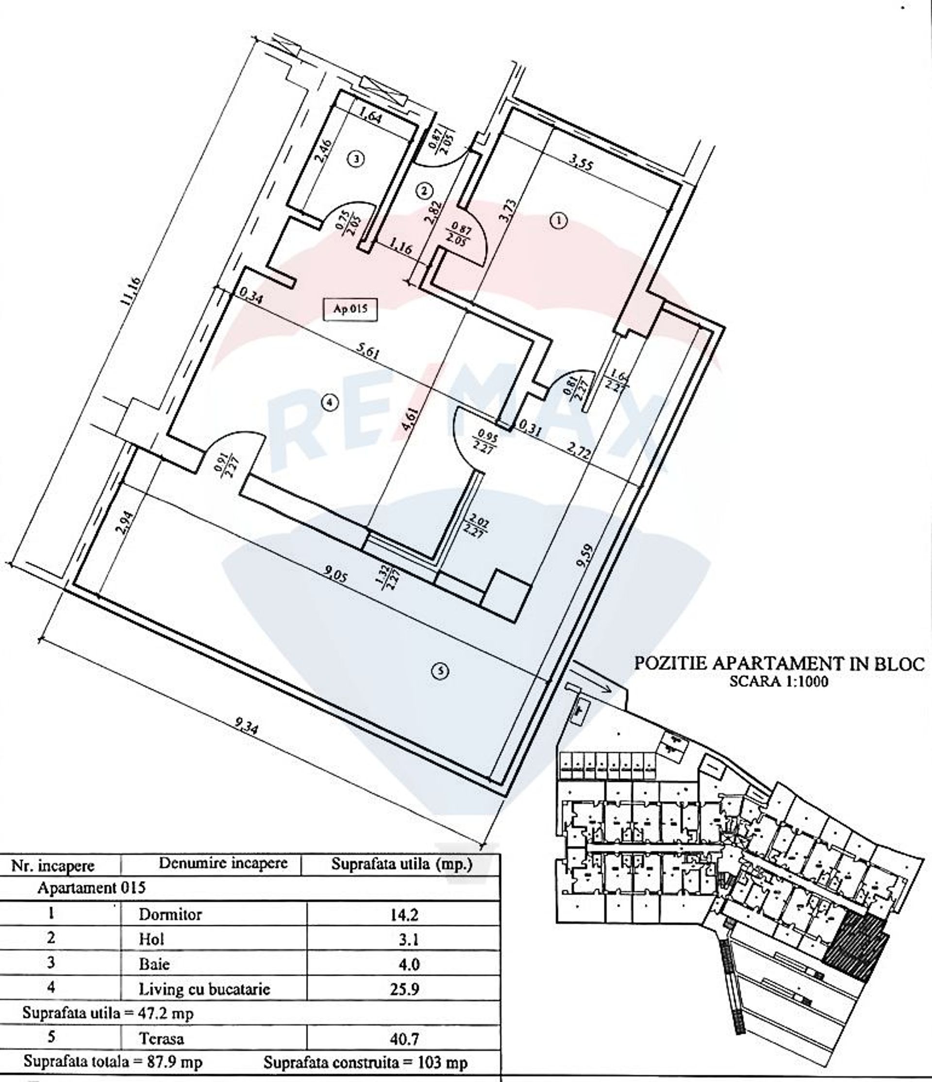
Locuința are o suprafață construită de 103 mp și beneficiază de o terasă impresionantă de 40,7 mp, care încadrează apartamentul și oferă o vedere spectaculoasă către munți. Apartamentul este foarte luminos și însorit datorită ferestrelor mari și poziționării excelente.
Este complet mobilat și utilat, cu mobilier modern și electrocasnice premium, pregătit pentru mutare imediată.
Apartamentul poate fi folosit ca locuință permanentă, apartament de vacanță sau afacere în domeniul turismului pentru ca in prezent, apartamentul este inclus în regim hotelier, având portofoliu de clienți activ, ceea ce îl face o investiție ideală cu randament rapid.
Detalii și avantaje:
- 2 camere – living spațios cu bucătărie open-space + dormitor generos
- Suprafață construită: 103 mp
- Terasă: 40,7 mp – înconjoară apartamentul, vedere superbă către munți
- Etaj: Parter
- Parcare subterană inclusă
- Sistem Smart Home – control al temperaturii și iluminatului
- Fațadă ventilată și izolație termică de calitate superioară
- Ferestre mari, apartament foarte luminos și aerisit
- Finisaje moderne și premium
- Mobilier și electrocasnice noi, incluse în preț
Facilități ale complexului Green Future Sinaia:
- Lifturi moderne
- Restaurant în curs de deschidere (decembrie)
- Piscină interioară încălzită
- Centru SPA și sală de fitness
- Stații de încărcare pentru mașini electrice
- Acces controlat și servicii premium pentru rezidenți
Locație excelentă – Sinaia, Str. Walter Mărăcineanu nr. 20
Complexul este situat în apropierea principalelor atracții turistice:
- Pârtiile de schi și traseele montane
- Castelul Peleș
- Mănăstirea Sinaia
- Cazinoul Sinaia
Stațiunea Sinaia este activă tot timpul anului și oferă un cadru natural spectaculos, fiind una dintre cele mai căutate destinații montane din România.
Pentru mai multe informații, vă stau la dispoziție!
Descriere proprietate
Vă propun spre vânzare în sistem de reprezentare exclusiva cu COMISION 0% pentru cumpărător, un apartament cu 2 camere, situat la parterul complexului rezidențial Green Future Sinaia, un proiect premium din una dintre cele mai renumite stațiuni montane din România.
Locuința are o suprafață construită de 103 mp și beneficiază de o terasă impresionantă de 40,7 mp, care încadrează apartamentul și oferă o vedere spectaculoasă către munți. Apartamentul este foarte luminos și însorit datorită ferestrelor mari și poziționării excelente.
Este complet mobilat și utilat, cu mobilier modern și electrocasnice premium, pregătit pentru mutare imediată.
Apartamentul poate fi folosit ca locuință permanentă, apartament de vacanță sau afacere în domeniul turismului pentru ca in prezent, apartamentul este inclus în regim hotelier, având portofoliu de clienți activ, ceea ce îl face o investiție ideală cu randament rapid.
Detalii și avantaje:
- 2 camere – living spațios cu bucătărie open-space + dormitor generos
- Suprafață construită: 103 mp
- Terasă: 40,7 mp – înconjoară apartamentul, vedere superbă către munți
- Etaj: Parter
- Parcare subterană inclusă
- Sistem Smart Home – control al temperaturii și iluminatului
- Fațadă ventilată și izolație termică de calitate superioară
- Ferestre mari, apartament foarte luminos și aerisit
- Finisaje moderne și premium
- Mobilier și electrocasnice noi, incluse în preț
Facilități ale complexului Green Future Sinaia:
- Lifturi moderne
- Restaurant în curs de deschidere (decembrie)
- Piscină interioară încălzită
- Centru SPA și sală de fitness
- Stații de încărcare pentru mașini electrice
- Acces controlat și servicii premium pentru rezidenți
Locație excelentă – Sinaia, Str. Walter Mărăcineanu nr. 20
Complexul este situat în apropierea principalelor atracții turistice:
- Pârtiile de schi și traseele montane
- Castelul Peleș
- Mănăstirea Sinaia
- Cazinoul Sinaia
Stațiunea Sinaia este activă tot timpul anului și oferă un cadru natural spectaculos, fiind una dintre cele mai căutate destinații montane din România.
Pentru mai multe informații, vă stau la dispoziție!
Transformă-ți viziunea în realitate cu House Staging
Virtual!
Transformă-ți viziunea în realitate cu House
Staging Virtual!
Descoperă puterea creativității tale! Cu ajutorul instrumentului nostru de House Staging
Virtual, poți redecora și personaliza GRATUIT orice cameră din proprietatea de mai sus.
Experimentează cu mobilier, culori, texturi si stiluri diverse si vezi care dintre acestea ti se
potriveste.
Simplu, rapid și distractiv – toate acestea la un singur clic distanță. Începe acum să-ți
amenajezi virtual locuința ideală!
Sinaia,
Central
Fiecare birou francizat RE/MAX e deținut și operat independent.
Descarca gratuit ghidul cumparatorului
Contacteaza agent
Fă-ți cont pe Remax.ro!
Adaugi o proprietate la favorite.
Ai văzut o proprietate care ți-a plăcut? Salveaz-o pentru o accesare ulterioară rapidă.
Salvezi căutarile făcute.
Cauți proprietăți după anumite criterii? Acum le poți salva, pentru a verifica rapid proprietățile nou apărute pe site conform criteriilor tale de selecție.
Partajezi proprietatile selectate.
Vrei să te consiliezi cu un apropiat în privința unei anumite proprietăți? Ai posibilitatea să dai share listei de căutări salvate sau listei de favorite.