Sistem încălzire: Centrală proprie, Încălzire prin pardoseală
Utilități generale: Apă, Curent
Uși interior: Lemn
Ușă intrare: Metal
Descriere proprietate
Va prezentam spre vanzare , cu 0% comision la cumparator , o casa nou construita in cartierul Greenfield Residance Vanatori.
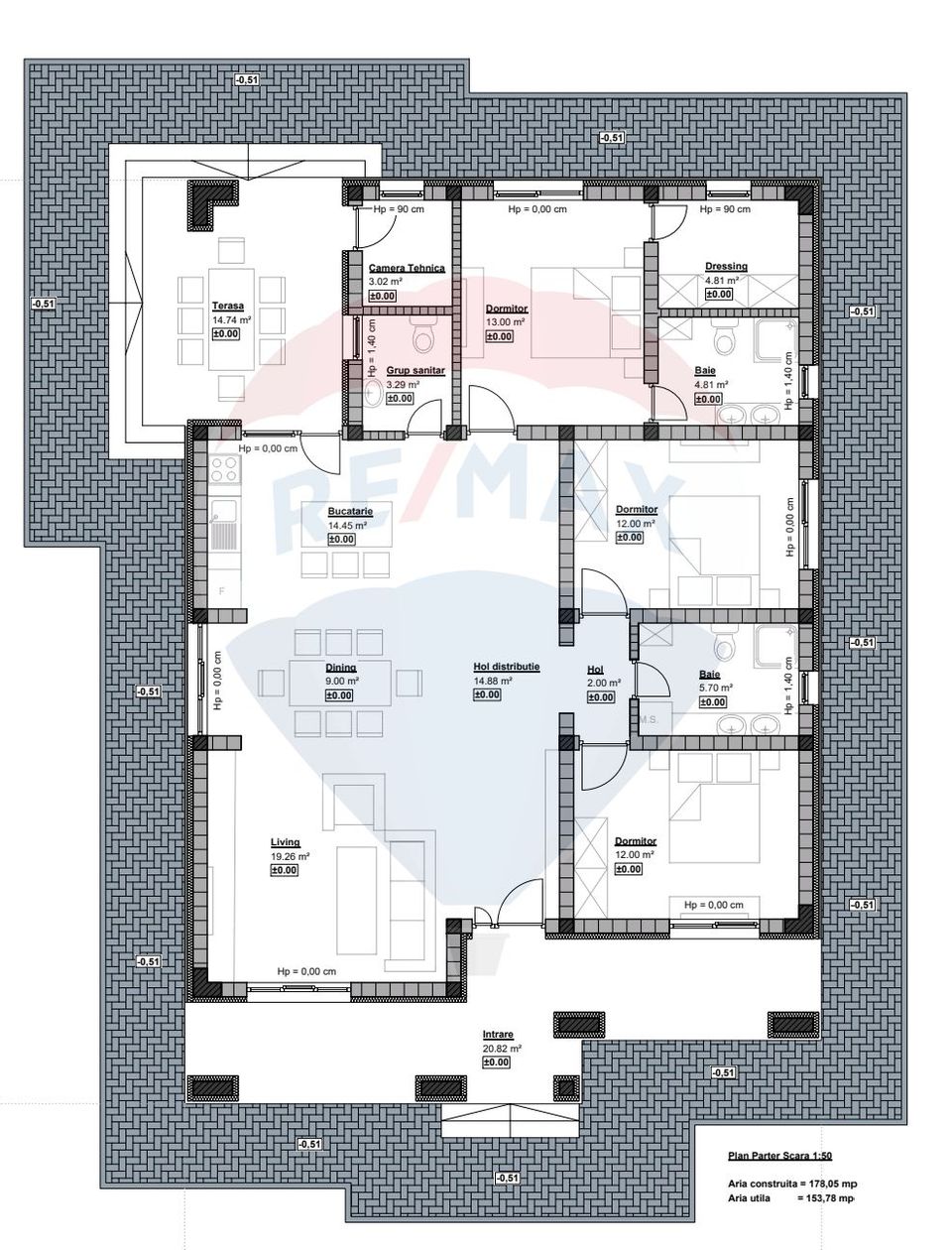
Aceasta este amplasata pe un teren intravilan in suprafata totala de 500mp cu o amprenta la sol de 178mp , respectiv 154mp utili.
Compartimentarea imobilului este desfasurata astfel : living , dining , bucatarie , 2 bai , 3 dormitoare din care unul cu baie proprie si dressing , camera tehnica , terasa (vezi schita atasata).
Pentru mai multe detalii sau stabilirea unei vizionari astept sa ma contactati!
Descriere proprietate
Va prezentam spre vanzare , cu 0% comision la cumparator , o casa nou construita in cartierul Greenfield Residance Vanatori.
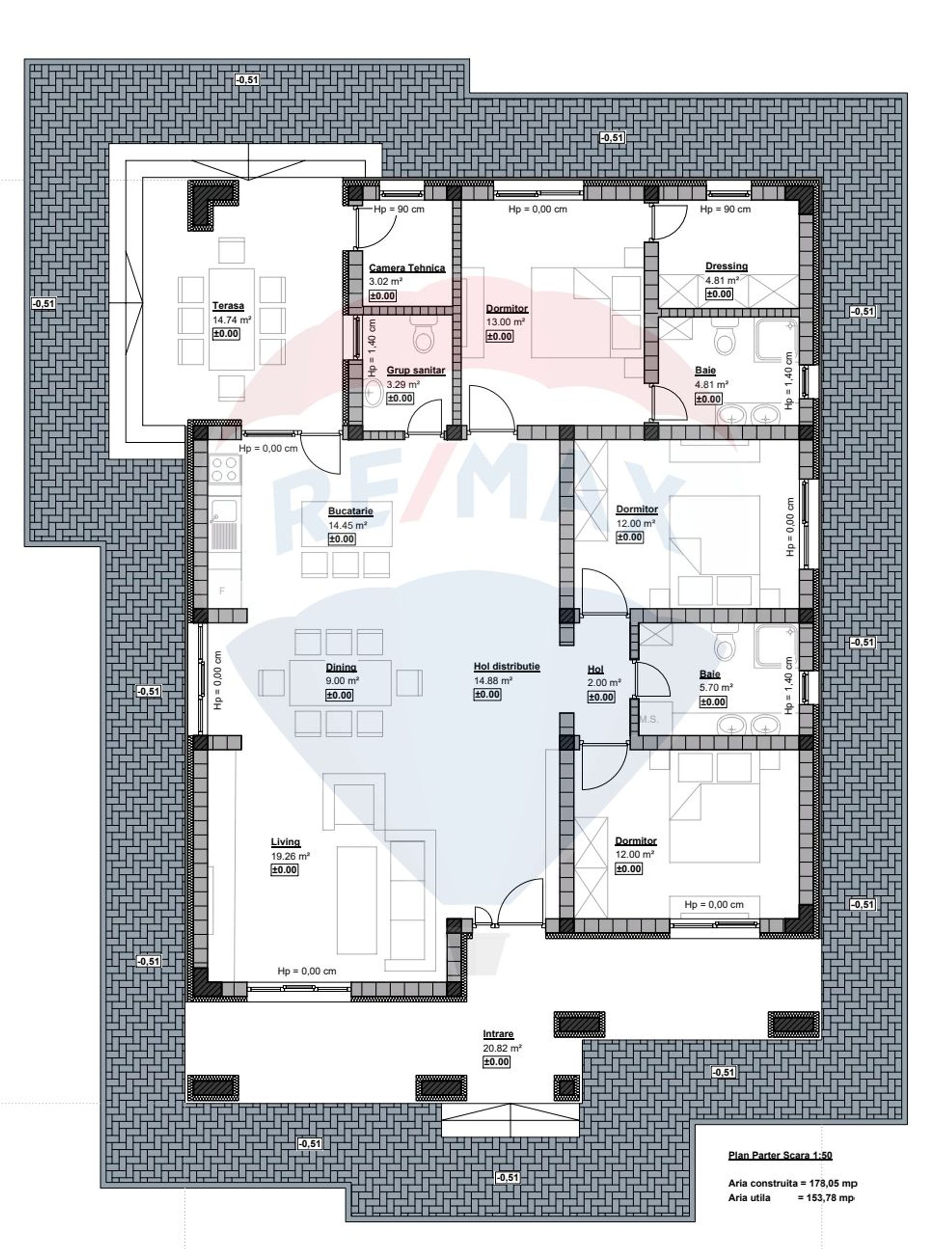
Aceasta este amplasata pe un teren intravilan in suprafata totala de 500mp cu o amprenta la sol de 178mp , respectiv 154mp utili.
Compartimentarea imobilului este desfasurata astfel : living , dining , bucatarie , 2 bai , 3 dormitoare din care unul cu baie proprie si dressing , camera tehnica , terasa (vezi schita atasata).
Pentru mai multe detalii sau stabilirea unei vizionari astept sa ma contactati!
Transformă-ți viziunea în realitate cu House Staging
Virtual!
Transformă-ți viziunea în realitate cu House
Staging Virtual!
Descoperă puterea creativității tale! Cu ajutorul instrumentului nostru de House Staging
Virtual, poți redecora și personaliza GRATUIT orice cameră din proprietatea de mai sus.
Experimentează cu mobilier, culori, texturi si stiluri diverse si vezi care dintre acestea ti se
potriveste.
Simplu, rapid și distractiv – toate acestea la un singur clic distanță. Începe acum să-ți
amenajezi virtual locuința ideală!
Fiecare birou francizat RE/MAX e deținut și operat independent.
Descarca gratuit ghidul cumparatorului
Contacteaza agent
Fă-ți cont pe Remax.ro!
Adaugi o proprietate la favorite.
Ai văzut o proprietate care ți-a plăcut? Salveaz-o pentru o accesare ulterioară rapidă.
Salvezi căutarile făcute.
Cauți proprietăți după anumite criterii? Acum le poți salva, pentru a verifica rapid proprietățile nou apărute pe site conform criteriilor tale de selecție.
Partajezi proprietatile selectate.
Vrei să te consiliezi cu un apropiat în privința unei anumite proprietăți? Ai posibilitatea să dai share listei de căutări salvate sau listei de favorite.