Alte caracteristici spațiu industrial: Curent trifazic (380V)
Amenajare străzi: Asfaltate, Iluminat stradal, Mijloace de transport în comun
Contorizare: Apometre, Contor electric, Contor gaz
Dotări imobil: Videointerfon
Ferestre: PVC
Izolații termice: Exterior
Mobilat: Nemobilat
Sistem încălzire: Centrală proprie, Încălzire prin pardoseală
Utilități generale: Apă, Canalizare, Curent, Gaz
Ușă intrare: Metal
Descriere proprietate
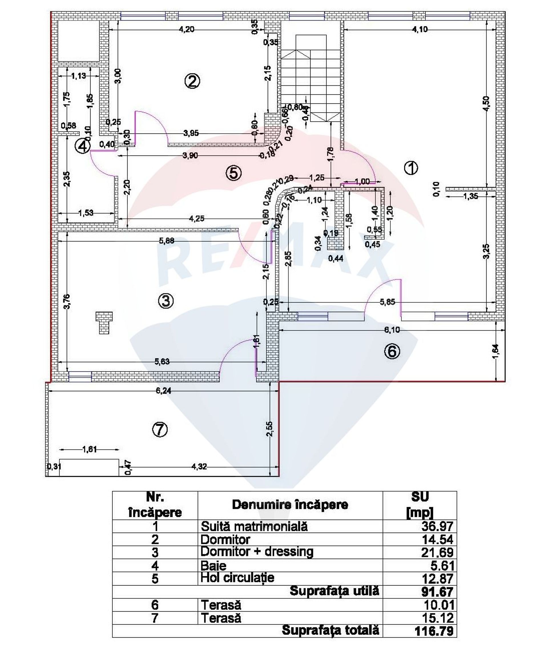
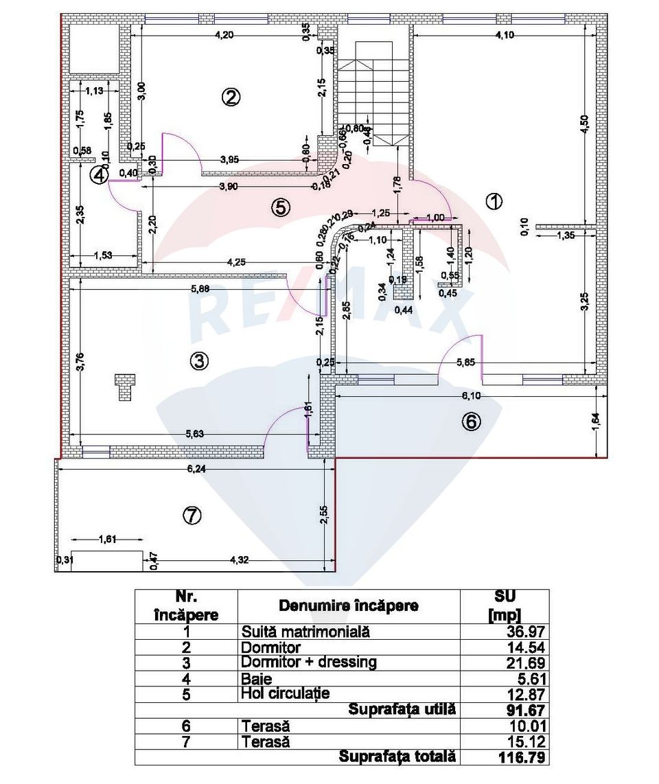
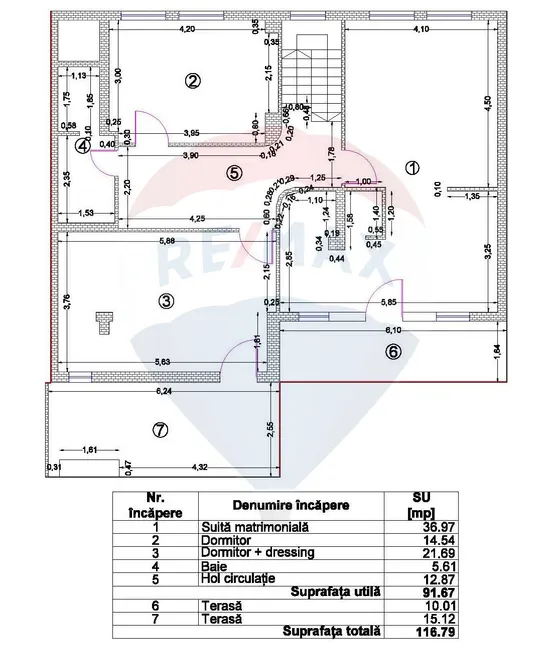
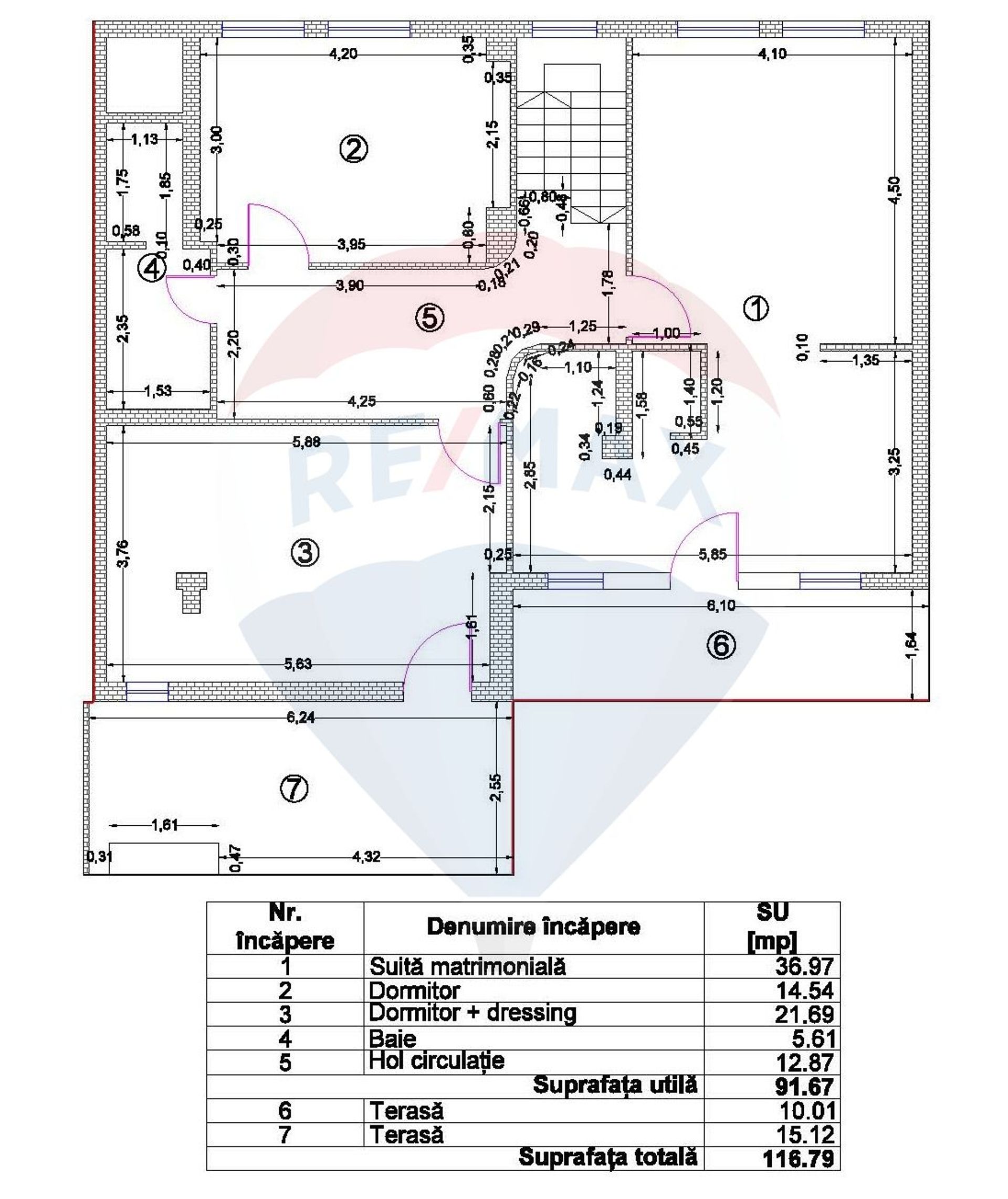
Un apartament absolut deosebit isi asteapta viitorul proprietar. Are o configuratie de 5 camere tip duplex, cu scara interioara, este situat la etajele superioare (4+5) ale unui bloc boutique cu doar 13 apartamente si este compartimentat dupa cum urmeaza:
La nivelul inferior avem o zona de zi foarte spatioasa (57 mp) care include living si dining, o bucatarie de aproape 20 mp (care poate fi inchisa sau deschisa, spatiul permite adaptarea in functie de preferinte), o camera (care poate fi folosita conform nevoilor cumparatorului ca birou, dormitor suplimentar, sala de sport sau spatiu de joaca), o baie cu dus, o terasa de 34 mp, si un balcon. Accesul catre terasa a fost gandit foarte practic, circular, astfel incat aceasta se poate accesa atat din bucatarie, baie sau zona de zi. Acest lucru creeaza o unitate perfecta a spatiului pe timpul perioadei calde si ofera eleganta si confort.
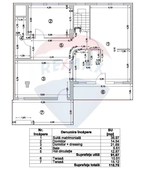
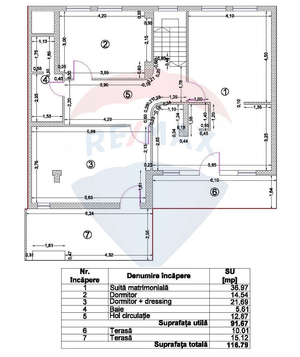
La nivelul superior avem 3 dormitoare intre care o suita matrimoniala de aproape 37 mp cu baie proprie si dressing imens si un al doilea dormitor si el cu dressing, impreuna avand aproape 22 mp. Al treilea dormitor poate fi o camera ideala pentru copii, fiind situat pe partea boltita a tavanului foarte inalt. In punctul cel mai inalt tavanul are 3.5m inatime, spatiul fiind unic din acest punct de vedere. S-a dorit obtinerea unor incinte non standard, care sa satisfaca nevoile acelor clienti care vor sa iasa din norme si sa aiba o casa unicat. Tot aici la nivelul superior avem o baie secundara, iar fiecare dintre dormitoarele mari are propria terasa de 10 si respectiv 15 mp.
Imaginile sunt cu titlu de prezentare, pentru a va putea face o idee mai clara despre cum este dispus spatiul si cum ar putea fi amenajat. Pretul afisat este pentru spatiul nefinisat. Dezvoltatorul a preferat sa lase libere imaginatia si preferintele viitorului proprietar, pentru a putea adapta spatiul nevoilor sale, existand posibilitatea atat a schimbarii complete a designului interior, cat si a reconfigurarii complete a interioarelor. Desigur, proiectul afisat exista si poate fi contractat suplimentar, daca va veti indragosti de ce a gandit arhitectul care s-a ocupat de design.
Apartamentul beneficiaza de curent trifazic, usa de intrare blindata MAESTRO Italia si este izolat fonic atat in pardoseli, cat si in pereti si plansee. Structura de rezistenta este din beton armat in sistem de cadre, peretii exteriori din caramida Porotherm de 24 cm, peretii de separatie dintre apartamente din caramida Porotherm de 12 cm, iar fatada este izolata cu termosistem de 10 cm.
La pretul afisat se dauga TVA. Sunt incluse in pret doua locuri de parcare in subteran plus o boxa pentru depozitare.
Zona este in continua dezvoltare, in imediata vecinatate deschizandu-se de curand cea mai mare plaja urbana din Europa, Lagoon Park. Scola germana este, de asemenea, foarte aproape. Este un loc preferat de cei care isi doresc sa locuiasca in nordul orasului, avand acces facil catre cele doua aeroporturi si iesirea din oras catre munte. In zona sunt mai multe restaurante cunoscute, unitati medicale, cluburi de fitness, magazine, LIDL fiind la 5 minute de mers pe jos. Zona este conectata cu restul orasului prin liniile de autobuz 112, 149, 205 si 261.
Pentru mai multe detalii si stabilirea unei vizionari va stau la dispozitie.
Descriere proprietate
Un apartament absolut deosebit isi asteapta viitorul proprietar. Are o configuratie de 5 camere tip duplex, cu scara interioara, este situat la etajele superioare (4+5) ale unui bloc boutique cu doar 13 apartamente si este compartimentat dupa cum urmeaza:
La nivelul inferior avem o zona de zi foarte spatioasa (57 mp) care include living si dining, o bucatarie de aproape 20 mp (care poate fi inchisa sau deschisa, spatiul permite adaptarea in functie de preferinte), o camera (care poate fi folosita conform nevoilor cumparatorului ca birou, dormitor suplimentar, sala de sport sau spatiu de joaca), o baie cu dus, o terasa de 34 mp, si un balcon. Accesul catre terasa a fost gandit foarte practic, circular, astfel incat aceasta se poate accesa atat din bucatarie, baie sau zona de zi. Acest lucru creeaza o unitate perfecta a spatiului pe timpul perioadei calde si ofera eleganta si confort.
La nivelul superior avem 3 dormitoare intre care o suita matrimoniala de aproape 37 mp cu baie proprie si dressing imens si un al doilea dormitor si el cu dressing, impreuna avand aproape 22 mp. Al treilea dormitor poate fi o camera ideala pentru copii, fiind situat pe partea boltita a tavanului foarte inalt. In punctul cel mai inalt tavanul are 3.5m inatime, spatiul fiind unic din acest punct de vedere. S-a dorit obtinerea unor incinte non standard, care sa satisfaca nevoile acelor clienti care vor sa iasa din norme si sa aiba o casa unicat. Tot aici la nivelul superior avem o baie secundara, iar fiecare dintre dormitoarele mari are propria terasa de 10 si respectiv 15 mp.
Imaginile sunt cu titlu de prezentare, pentru a va putea face o idee mai clara despre cum este dispus spatiul si cum ar putea fi amenajat. Pretul afisat este pentru spatiul nefinisat. Dezvoltatorul a preferat sa lase libere imaginatia si preferintele viitorului proprietar, pentru a putea adapta spatiul nevoilor sale, existand posibilitatea atat a schimbarii complete a designului interior, cat si a reconfigurarii complete a interioarelor. Desigur, proiectul afisat exista si poate fi contractat suplimentar, daca va veti indragosti de ce a gandit arhitectul care s-a ocupat de design.
Apartamentul beneficiaza de curent trifazic, usa de intrare blindata MAESTRO Italia si este izolat fonic atat in pardoseli, cat si in pereti si plansee. Structura de rezistenta este din beton armat in sistem de cadre, peretii exteriori din caramida Porotherm de 24 cm, peretii de separatie dintre apartamente din caramida Porotherm de 12 cm, iar fatada este izolata cu termosistem de 10 cm.
La pretul afisat se dauga TVA. Sunt incluse in pret doua locuri de parcare in subteran plus o boxa pentru depozitare.
Zona este in continua dezvoltare, in imediata vecinatate deschizandu-se de curand cea mai mare plaja urbana din Europa, Lagoon Park. Scola germana este, de asemenea, foarte aproape. Este un loc preferat de cei care isi doresc sa locuiasca in nordul orasului, avand acces facil catre cele doua aeroporturi si iesirea din oras catre munte. In zona sunt mai multe restaurante cunoscute, unitati medicale, cluburi de fitness, magazine, LIDL fiind la 5 minute de mers pe jos. Zona este conectata cu restul orasului prin liniile de autobuz 112, 149, 205 si 261.
Pentru mai multe detalii si stabilirea unei vizionari va stau la dispozitie.
Transformă-ți viziunea în realitate cu House Staging
Virtual!
Transformă-ți viziunea în realitate cu House
Staging Virtual!
Descoperă puterea creativității tale! Cu ajutorul instrumentului nostru de House Staging
Virtual, poți redecora și personaliza GRATUIT orice cameră din proprietatea de mai sus.
Experimentează cu mobilier, culori, texturi si stiluri diverse si vezi care dintre acestea ti se
potriveste.
Simplu, rapid și distractiv – toate acestea la un singur clic distanță. Începe acum să-ți
amenajezi virtual locuința ideală!
Bucuresti,
Damaroaia
Fiecare birou francizat RE/MAX e deținut și operat independent.
Descarca gratuit ghidul cumparatorului
Contacteaza agent
Fă-ți cont pe Remax.ro!
Adaugi o proprietate la favorite.
Ai văzut o proprietate care ți-a plăcut? Salveaz-o pentru o accesare ulterioară rapidă.
Salvezi căutarile făcute.
Cauți proprietăți după anumite criterii? Acum le poți salva, pentru a verifica rapid proprietățile nou apărute pe site conform criteriilor tale de selecție.
Partajezi proprietatile selectate.
Vrei să te consiliezi cu un apropiat în privința unei anumite proprietăți? Ai posibilitatea să dai share listei de căutări salvate sau listei de favorite.