Spațiu de birouri de 167mp de închiriat în zona Gruia

Spatii de birouri clasa inchiriere, 167 mp in Cluj-Napoca, Gruia - vezi locația pe hartă

ID: RMX173199
EXCLUSIVITATE
COMISION 0%
Reducere de preț

Preț de închiriere (+ 21% TVA):
1.300 €
7.78 € /mp
Rate de la: /lună simulează credit

T: 0371784228
  • Camere: 4 camere
  • Unitate Suprafață: mp
  • Reper:
  • Disponibilitate: Imediat
  • Locuri de parcare: 0
  • Etaj: Demisol+Parter / P+7E
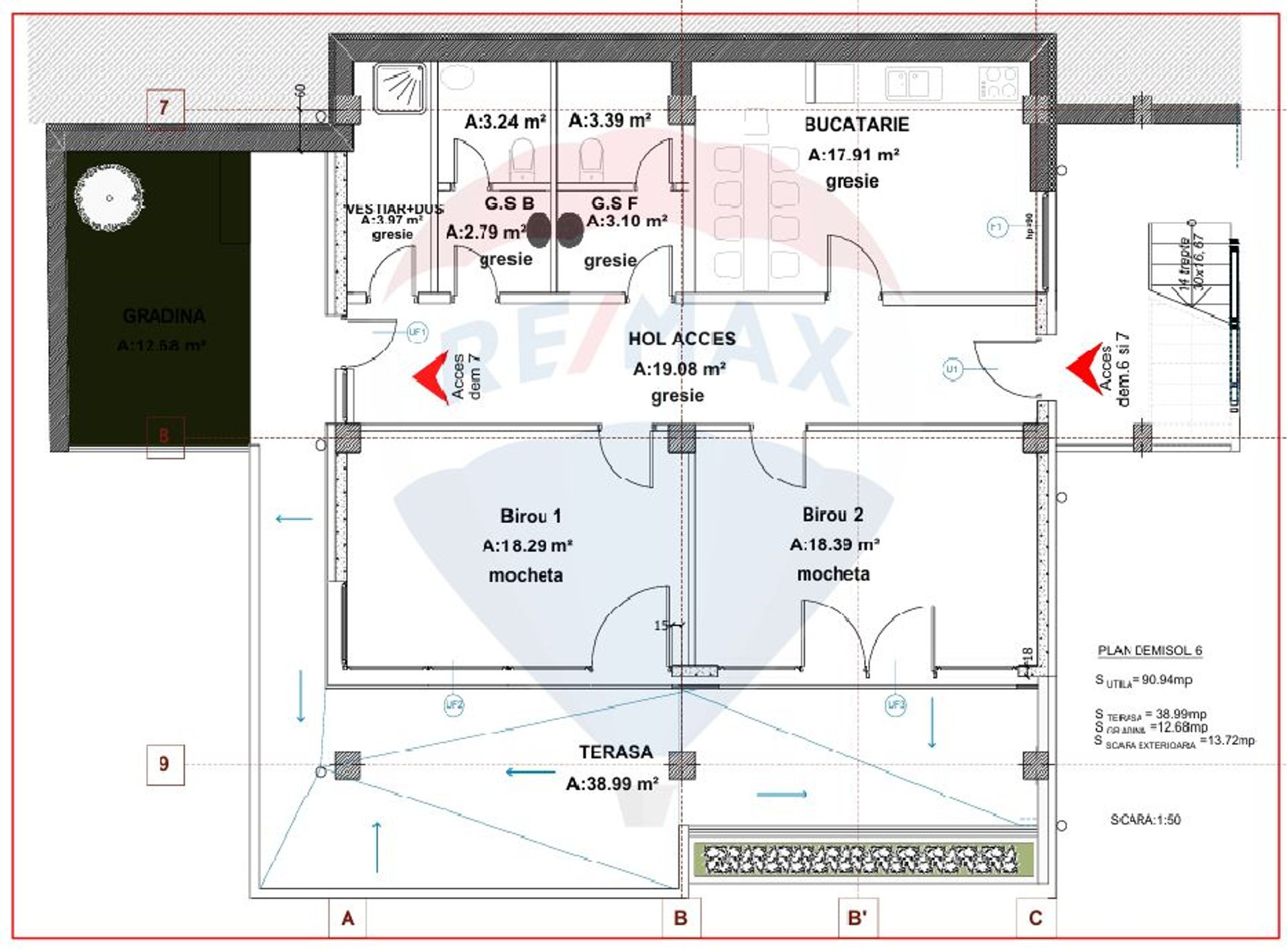
  • Supr. birou: 97.58 mp
  • Etaje clădire: 7
  • Suprafaţă utilă: 167 mp
  • Comp.: Compartimentat
  • Tip imobil: Clădire birouri
  • An construcţie: 2000
  • Alte caracteristici spațiu comercial: Afișare logo pe clădire, Contorizare separată, Sistem de ventilație
  • Finisaje: Ferestre care se deschid, Gresie, Grupuri sanitare amenajate și utilate, Mochetă, Tavan fals
  • Climatizare birou: Centrală termică, Control individual AC pentru fiecare zonă de birou
  • IT&C: Internet, Telefon
  • Servicii asigurate în clădire: Salubritate
  • Siguranță și securitate: Acces securizat parcare, Control acces securizat pe bază de cartele
Descriere proprietate

Avem plăcerea să vă prezentăm, în exclusivitate, cu 0% comision pentru chiriaș, un spațiu de birouri unic prin priveliștea absolut spectaculoasă asupra întregului oraș Cluj-Napoca, aflat într-o zonă liniștită și plină de verdeață, în cartierul Gruia.

Spațiul se desfășoară pe două niveluri (demisol -6 și -7) și este compartimentat eficient în 4 camere cu suprafețe între 18 și 31 mp, bucătărie complet utilată, grupuri sanitare moderne, holuri pe fiecare etaj, precum și o zonă de relaxare cu grădină și terase acoperite.

Fiecare birou beneficiază de lumină naturală din plin, ferestre ample sau pereți de sticlă și acces direct la terasă, unde panorama asupra orașului vă va cuceri de la prima vizită. Pe timp de noapte, priveliștea devine cu adevărat spectaculoasă – un cadru care face munca peste program mai plăcută și mai inspirațională.

Spațiul este pregătit pentru ocupare imediată și dispune de toate utilitățile necesare: gaz, energie electrică, aer condiționat, centrală termică proprie (toate contorizate separat). Toaletele sunt moderne și includ o cameră cu vestiar și duș, iar bucătăria este complet echipată. De asemenea, câteva piese de mobilier existente pot fi păstrate sau înlăturate în funcție de preferințele chiriașului.

Un spațiu de birou unde funcționalitatea se îmbină cu liniștea și cu una dintre cele mai frumoase panorame din Cluj.
Vă invităm să ne contactați pentru programarea unei vizionări.

Descoperă puterea creativității tale! Cu ajutorul instrumentului nostru de House Staging Virtual, poți redecora și personaliza GRATUIT orice cameră din proprietatea de mai sus. Experimentează cu mobilier, culori, texturi si stiluri diverse si vezi care dintre acestea ti se potriveste.

Simplu, rapid și distractiv – toate acestea la un singur clic distanță. Începe acum să-ți amenajezi virtual locuința ideală!
Fiecare birou francizat RE/MAX e deținut și operat independent.