Amenajare străzi: Asfaltate, Iluminat stradal, Mijloace de transport în comun
Finisaje: Parchet
Contorizare: Apometre, Contor căldură, Contor electric, Contor gaz
Dotări imobil: Videointerfon
IT&C: Internet, Telefon
Izolații termice: Exterior
Mobilat: Nemobilat
Pereți: Vopsea lavabilă
Sistem încălzire: Centrală proprie
Utilități generale: Apă, Canalizare, CATV, Curent, Gaz
Descriere proprietate
Descoperă noua ta locuință într-un cartier modern din Bartolomeu, Brașov, parte din proiectul Maurer Avantgarden 3 – Faza V. Apartamentele sunt gândite pentru confort, funcționalitate și viață de comunitate, oferind spații adaptabile și finisaje premium, alese chiar de tine.
Detalii apartament:
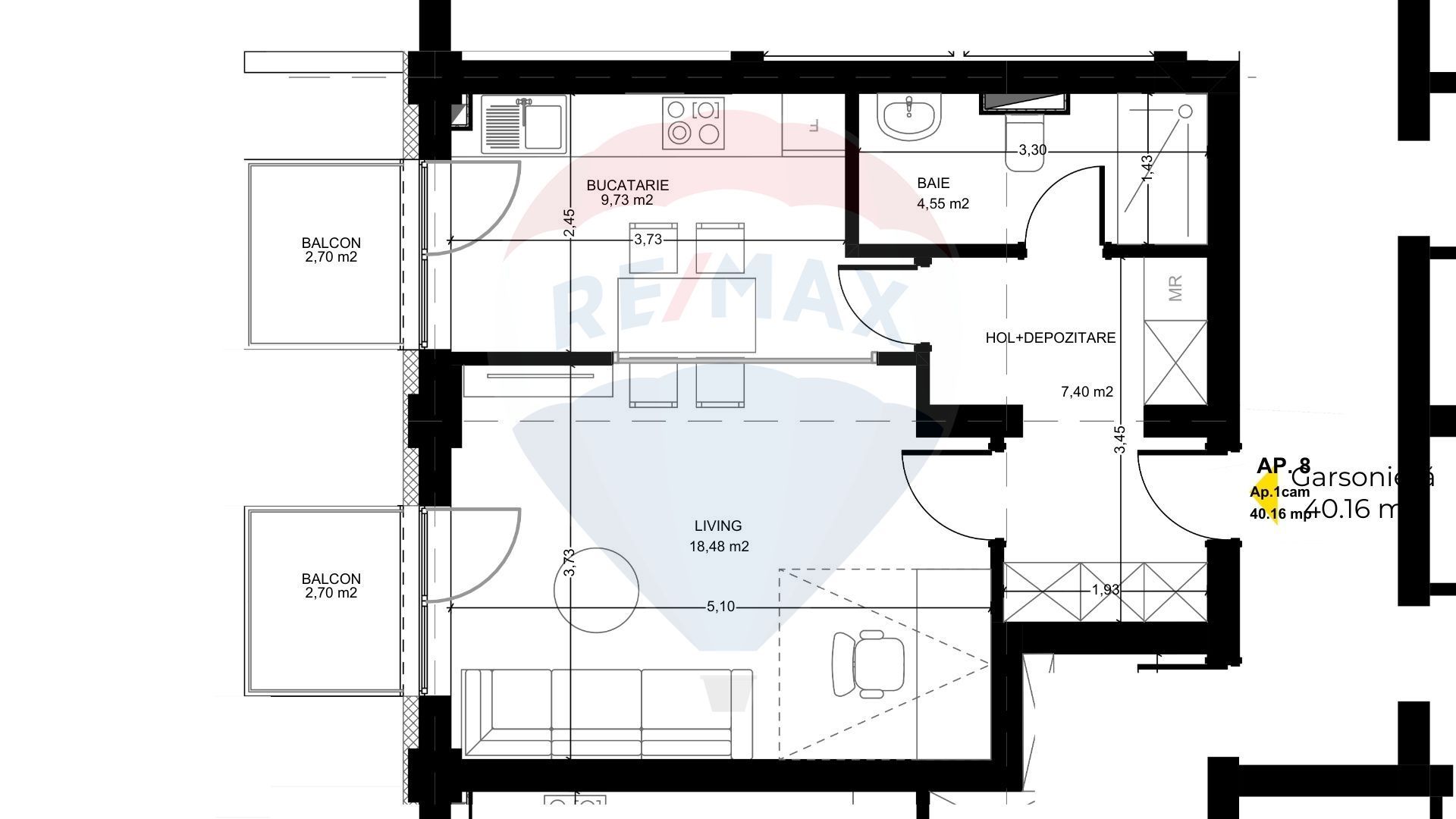
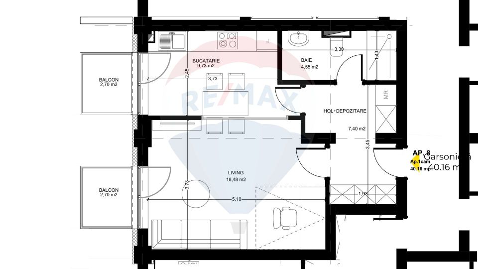
Suprafață utilă: 40,16 mp
Balcon: 2,70 mp - 2 balcoane
Suprafață construită: 45.56 mp
Compartimentare: decomandat
Camere: 1
Dotări și beneficii:
Boxă la demisol inclusă în preț
Parcare subterană obligatorie: 10.500 € + TVA
Finisaje premium, personalizabile de către cumpărător
Băile livrate complet utilate – chiuvetă, cadă/duș, vas WC incluse
2 lifturi pentru confort și acces rapid
Casa scării și spațiile comune cu design modern și elegant
Apartamente multifuncționale – adaptabile pentru nevoile familiei sau chiar business
Termen de livrare:
Noiembrie 2027 (Blocurile din Faza V – B108 )
Prețuri & modalități de plată:
90,800 € – plată integrală la semnarea antecontractului (promoție valabilă 01.08–31.12.2025)
93.200 € – în 3 tranșe ( 30% Transa 1 la semnarea antecontractului, 40% Transa 2 la rosu, 30% Transa 3 la receptia apartamentului)
95.800 € – prin credit bancar
( 30% Transa 1 la semanrea antecontractului, 70% Transa 2 credit ipotecar)
Toate prețurile includ TVA 21% conform legislației în vigoare.
Parcarea subterană se achiziționează separat: 7.500 € + TVA.
Vecinătăți & puncte de interes (Bartolomeu, Brașov):
Shopping & servicii: Lidl, Carrefour, Mega Image
Educație: școli, grădinițe și creșe în apropiere, inclusiv unități private în cartier
Transport: stații RATBV în zonă, acces rapid către Centura Brașovului și DN13
Agrement & relaxare: spații verzi, locuri de joacă moderne, piste de biciclete, zone pietonale
Sănătate: farmacii, clinici medicale și stomatologice în proximitate
Un apartament modern și spațios, într-un ansamblu rezidențial cu reputație și comunitate activă – ideal pentru locuire sau investiție!
Contactează-ne pentru detalii și programarea unei vizionări!
Descriere proprietate
Descoperă noua ta locuință într-un cartier modern din Bartolomeu, Brașov, parte din proiectul Maurer Avantgarden 3 – Faza V. Apartamentele sunt gândite pentru confort, funcționalitate și viață de comunitate, oferind spații adaptabile și finisaje premium, alese chiar de tine.
Detalii apartament:
Suprafață utilă: 40,16 mp
Balcon: 2,70 mp - 2 balcoane
Suprafață construită: 45.56 mp
Compartimentare: decomandat
Camere: 1
Dotări și beneficii:
Boxă la demisol inclusă în preț
Parcare subterană obligatorie: 10.500 € + TVA
Finisaje premium, personalizabile de către cumpărător
Băile livrate complet utilate – chiuvetă, cadă/duș, vas WC incluse
2 lifturi pentru confort și acces rapid
Casa scării și spațiile comune cu design modern și elegant
Apartamente multifuncționale – adaptabile pentru nevoile familiei sau chiar business
Termen de livrare:
Noiembrie 2027 (Blocurile din Faza V – B108 )
Prețuri & modalități de plată:
90,800 € – plată integrală la semnarea antecontractului (promoție valabilă 01.08–31.12.2025)
93.200 € – în 3 tranșe ( 30% Transa 1 la semnarea antecontractului, 40% Transa 2 la rosu, 30% Transa 3 la receptia apartamentului)
95.800 € – prin credit bancar
( 30% Transa 1 la semanrea antecontractului, 70% Transa 2 credit ipotecar)
Toate prețurile includ TVA 21% conform legislației în vigoare.
Parcarea subterană se achiziționează separat: 7.500 € + TVA.
Vecinătăți & puncte de interes (Bartolomeu, Brașov):
Shopping & servicii: Lidl, Carrefour, Mega Image
Educație: școli, grădinițe și creșe în apropiere, inclusiv unități private în cartier
Transport: stații RATBV în zonă, acces rapid către Centura Brașovului și DN13
Agrement & relaxare: spații verzi, locuri de joacă moderne, piste de biciclete, zone pietonale
Sănătate: farmacii, clinici medicale și stomatologice în proximitate
Un apartament modern și spațios, într-un ansamblu rezidențial cu reputație și comunitate activă – ideal pentru locuire sau investiție!
Contactează-ne pentru detalii și programarea unei vizionări!
Transformă-ți viziunea în realitate cu House Staging
Virtual!
Transformă-ți viziunea în realitate cu House
Staging Virtual!
Descoperă puterea creativității tale! Cu ajutorul instrumentului nostru de House Staging
Virtual, poți redecora și personaliza GRATUIT orice cameră din proprietatea de mai sus.
Experimentează cu mobilier, culori, texturi si stiluri diverse si vezi care dintre acestea ti se
potriveste.
Simplu, rapid și distractiv – toate acestea la un singur clic distanță. Începe acum să-ți
amenajezi virtual locuința ideală!
Fiecare birou francizat RE/MAX e deținut și operat independent.
Descarca gratuit ghidul cumparatorului
Contacteaza agent
Fă-ți cont pe Remax.ro!
Adaugi o proprietate la favorite.
Ai văzut o proprietate care ți-a plăcut? Salveaz-o pentru o accesare ulterioară rapidă.
Salvezi căutarile făcute.
Cauți proprietăți după anumite criterii? Acum le poți salva, pentru a verifica rapid proprietățile nou apărute pe site conform criteriilor tale de selecție.
Partajezi proprietatile selectate.
Vrei să te consiliezi cu un apropiat în privința unei anumite proprietăți? Ai posibilitatea să dai share listei de căutări salvate sau listei de favorite.