Amenajare străzi: Asfaltate, Iluminat stradal, Mijloace de transport în comun
Contorizare: Apometre, Contor electric, Contor gaz
Dotări imobil: Acoperiș, Dressing
Ferestre: Aluminiu
IT&C: Internet, Telefon
Izolații termice: Exterior
Mobilat: Nemobilat
Utilități generale: Apă, Canalizare, CATV, Curent, Gaz
Descriere proprietate
Comision 0%
Vă propun spre vânzare o Vilă la cheie, în Iași - zona Mănăstirii Bucium pe strada Fundacul Păun.
Această construcție este asezată pe un teren de 614mp (cu posibilitatea achiziționării terenului alăturat de încă 614mp) și este construită în regim D+P+1E.
Are o suprafață utilă de 200mp distribuiți astfel:
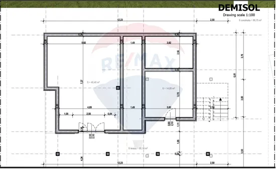
- Demisol (54mp): 2 incăperi cu intrări separate
- Parter (73mp): Hol, leaving, Dining Room, Grup Sanitar, Bucătărie cu cămară + Terasă de 27mp
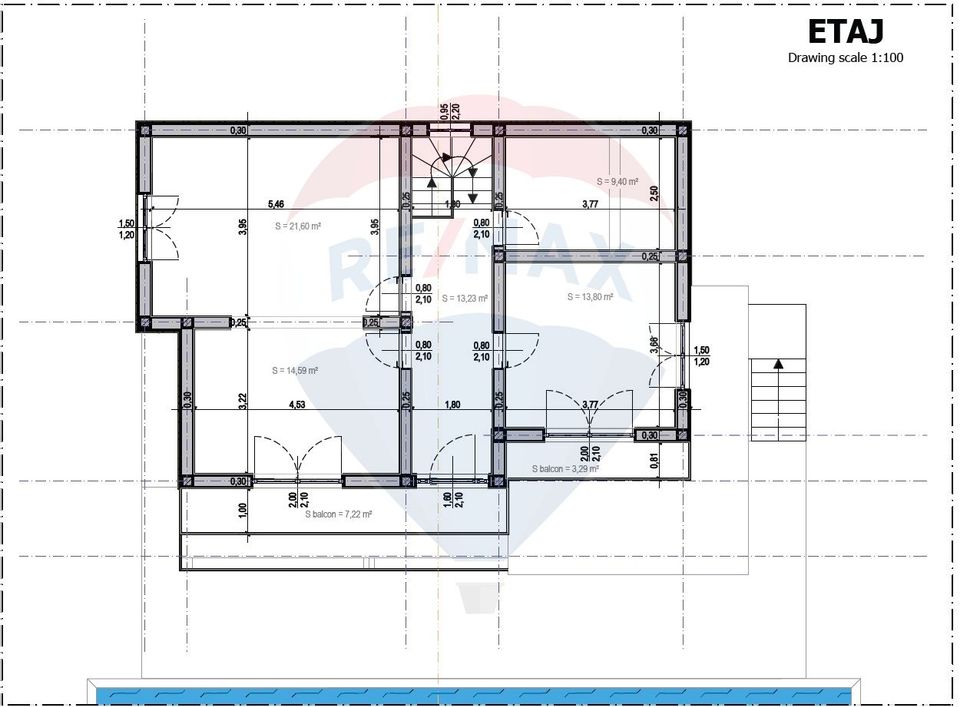
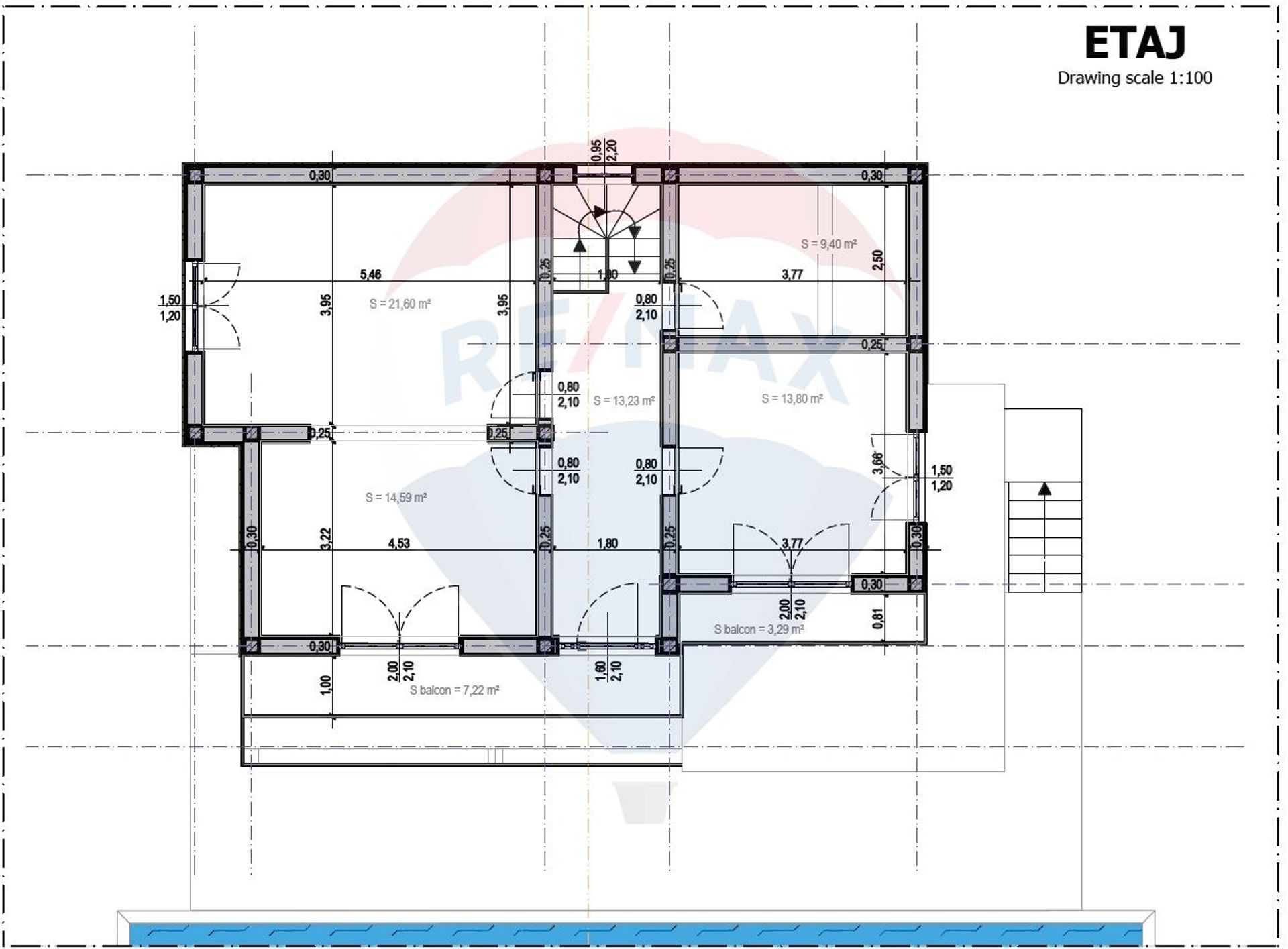
- Etaj (73mp): Hol, 3 dormitoare, Grup Sanitar, + două Balcoane de 10.5 mp
Se află la stadiul de finisaje, casa se predă la cheie - noul proprietar având posibilitatea să iși aleagă tipul de finisaje.
Are două locuri de parcare amenajate la strada betonată, dispune de toate utilitățile - Apă, Curent Electric, Gaz și Canalizare.
Este orientată spre un peisaj superb către dealurile Bucium, fiind intr-o zonă rezidențială exclusivistă, doar pentru locuințe individuale cu acces facil spre șoseaua Bucium.
Acest imobil se poate achiziționa și impreună cu terenul alăturat, tot de 614mp.
Notă*: Piscina din randări este doar pentru a expune posibilitățile de personalizare a casei și nu intră în prețul prezentat.
Pentru mai multe detalii si pentru a programa o vizionare vă stau la dispoziție
Descriere proprietate
Comision 0%
Vă propun spre vânzare o Vilă la cheie, în Iași - zona Mănăstirii Bucium pe strada Fundacul Păun.
Această construcție este asezată pe un teren de 614mp (cu posibilitatea achiziționării terenului alăturat de încă 614mp) și este construită în regim D+P+1E.
Are o suprafață utilă de 200mp distribuiți astfel:
- Demisol (54mp): 2 incăperi cu intrări separate
- Parter (73mp): Hol, leaving, Dining Room, Grup Sanitar, Bucătărie cu cămară + Terasă de 27mp
- Etaj (73mp): Hol, 3 dormitoare, Grup Sanitar, + două Balcoane de 10.5 mp
Se află la stadiul de finisaje, casa se predă la cheie - noul proprietar având posibilitatea să iși aleagă tipul de finisaje.
Are două locuri de parcare amenajate la strada betonată, dispune de toate utilitățile - Apă, Curent Electric, Gaz și Canalizare.
Este orientată spre un peisaj superb către dealurile Bucium, fiind intr-o zonă rezidențială exclusivistă, doar pentru locuințe individuale cu acces facil spre șoseaua Bucium.
Acest imobil se poate achiziționa și impreună cu terenul alăturat, tot de 614mp.
Notă*: Piscina din randări este doar pentru a expune posibilitățile de personalizare a casei și nu intră în prețul prezentat.
Pentru mai multe detalii si pentru a programa o vizionare vă stau la dispoziție
Transformă-ți viziunea în realitate cu House Staging
Virtual!
Transformă-ți viziunea în realitate cu House
Staging Virtual!
Descoperă puterea creativității tale! Cu ajutorul instrumentului nostru de House Staging
Virtual, poți redecora și personaliza GRATUIT orice cameră din proprietatea de mai sus.
Experimentează cu mobilier, culori, texturi si stiluri diverse si vezi care dintre acestea ti se
potriveste.
Simplu, rapid și distractiv – toate acestea la un singur clic distanță. Începe acum să-ți
amenajezi virtual locuința ideală!
Fiecare birou francizat RE/MAX e deținut și operat independent.
Descarca gratuit ghidul cumparatorului
Contacteaza agent
Fă-ți cont pe Remax.ro!
Adaugi o proprietate la favorite.
Ai văzut o proprietate care ți-a plăcut? Salveaz-o pentru o accesare ulterioară rapidă.
Salvezi căutarile făcute.
Cauți proprietăți după anumite criterii? Acum le poți salva, pentru a verifica rapid proprietățile nou apărute pe site conform criteriilor tale de selecție.
Partajezi proprietatile selectate.
Vrei să te consiliezi cu un apropiat în privința unei anumite proprietăți? Ai posibilitatea să dai share listei de căutări salvate sau listei de favorite.