Alte caracteristici: Acces auto, Oportunitate de investiții
Amenajare străzi: Asfaltate, Iluminat stradal, Mijloace de transport în comun
Urbanism: Autorizație de construcție
Utilități teren: Apă, Canalizare, Curent, Gaz, Utilități în zonă
Descriere proprietate
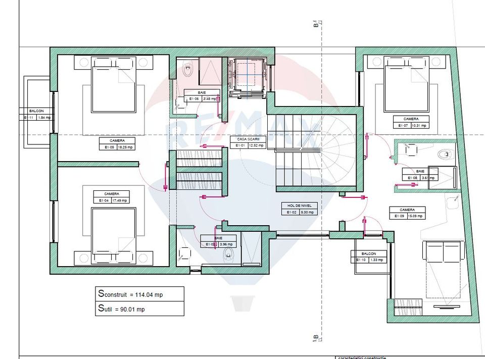
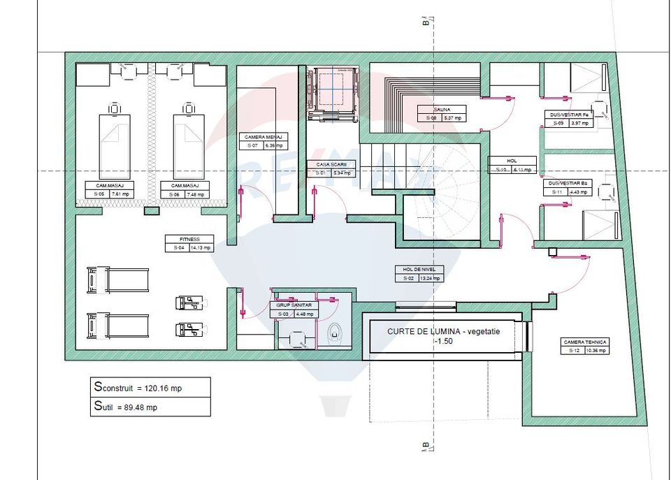
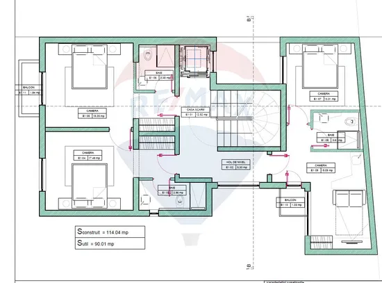
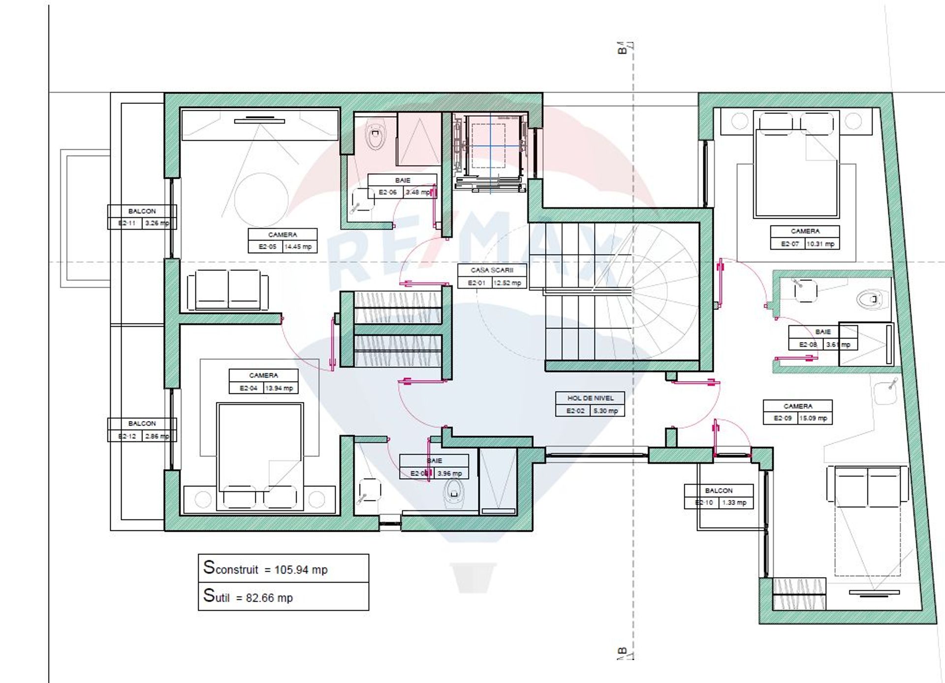
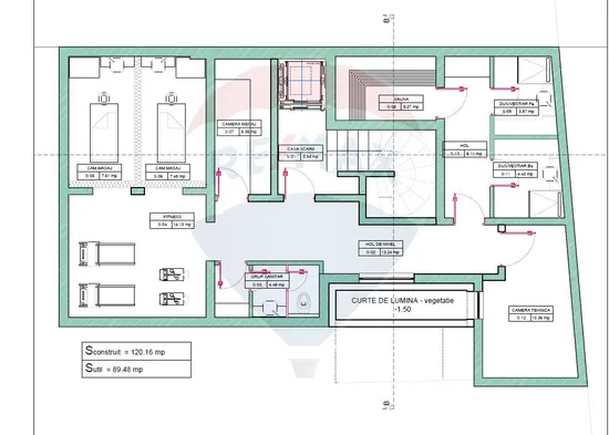
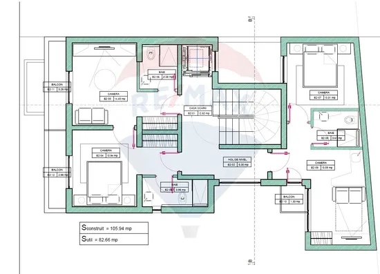
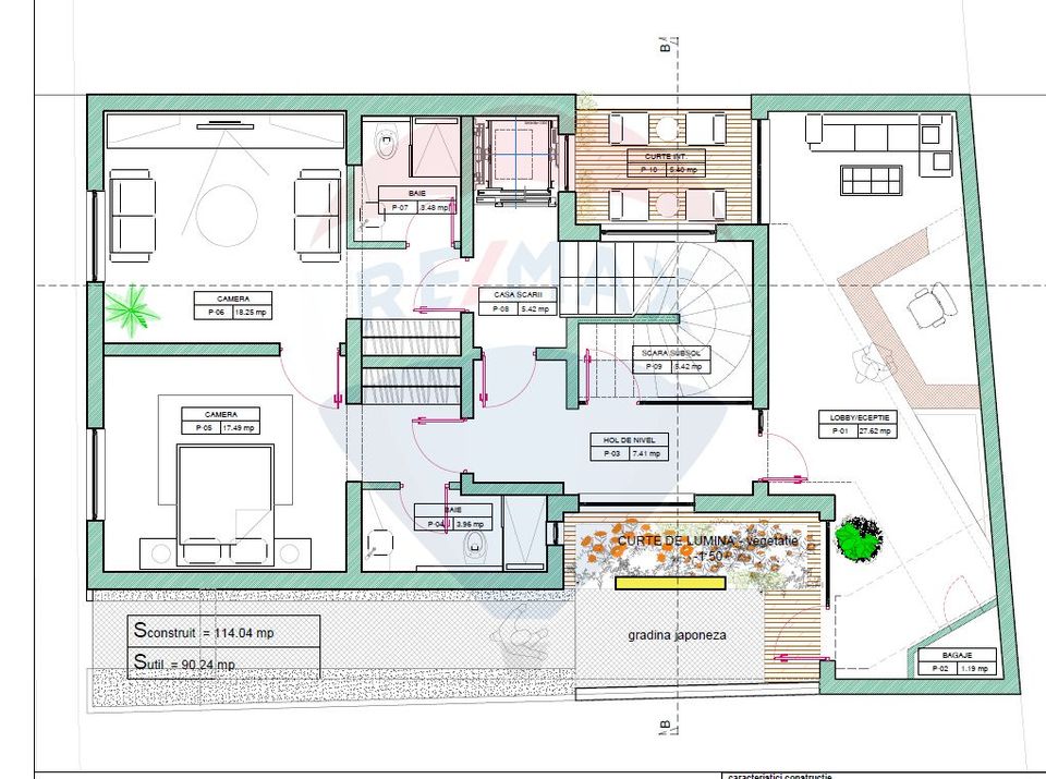
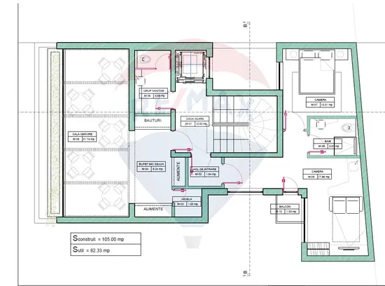
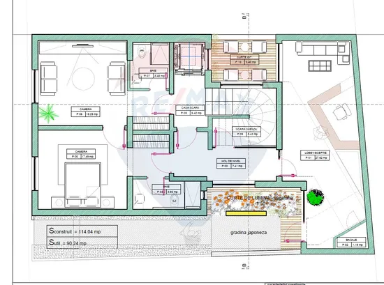
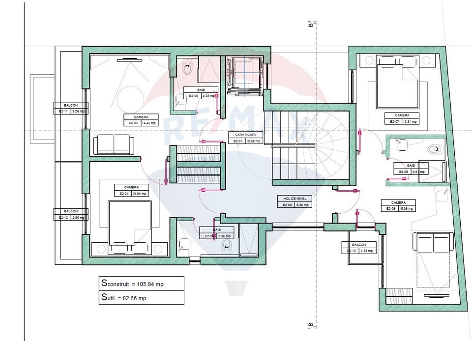
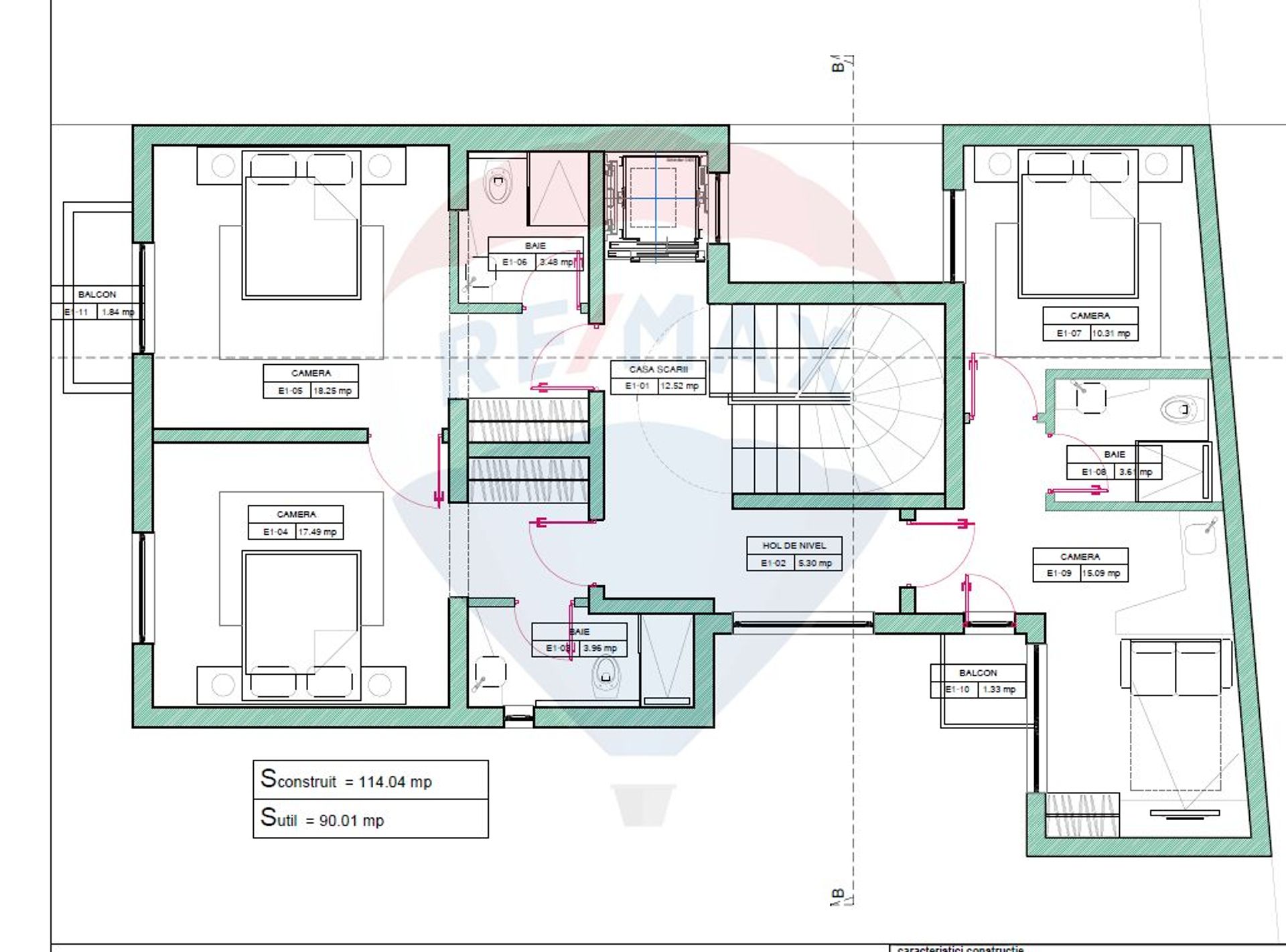
Va propunem spre vanzare un imobil cu proiect si autorizatie valabila pentru S+P+2+M disponibil imediat.
Terenul are o suprafata de 150 mp iar constructia existenta este din caramida - casa in suprafata de 300 mp + pod, cu autorizatie si proiect pentru suprafata construita de 560 mp. Autorizatie valabila pana in octombrie 2026.
Beneficiati de 2 variante de proiect, astfel:
1. horeca - la subsol avand propunere pentru camere tehnice, spalatorie sau loc de luat masa, etajele superioare impartite in camere de hotel iar mansarda fie camere, fie spatiu de luat masa.
2. locuinta - la subsol camera tehnica, camere menaj + sauna, parter cu garaj, birou si o zona de lounge cu living, chicineta si curte acoperita; etajele cu dormitoare spatioase si mansarda cu zona de zi impartita in living, dining si bucatarie deschisa.
O oportunitate de investitie pe termen lung, fie pentru hotel, fie inchiriere in regim hotelier la nivel inalt sau o locuinta premium pentru o familie conectata la dinamica urbana.
Oferim consultanta gratuita in accesarea unui credit bancar!
Descriere proprietate
Va propunem spre vanzare un imobil cu proiect si autorizatie valabila pentru S+P+2+M disponibil imediat.
Terenul are o suprafata de 150 mp iar constructia existenta este din caramida - casa in suprafata de 300 mp + pod, cu autorizatie si proiect pentru suprafata construita de 560 mp. Autorizatie valabila pana in octombrie 2026.
Beneficiati de 2 variante de proiect, astfel:
1. horeca - la subsol avand propunere pentru camere tehnice, spalatorie sau loc de luat masa, etajele superioare impartite in camere de hotel iar mansarda fie camere, fie spatiu de luat masa.
2. locuinta - la subsol camera tehnica, camere menaj + sauna, parter cu garaj, birou si o zona de lounge cu living, chicineta si curte acoperita; etajele cu dormitoare spatioase si mansarda cu zona de zi impartita in living, dining si bucatarie deschisa.
O oportunitate de investitie pe termen lung, fie pentru hotel, fie inchiriere in regim hotelier la nivel inalt sau o locuinta premium pentru o familie conectata la dinamica urbana.
Oferim consultanta gratuita in accesarea unui credit bancar!
Transformă-ți viziunea în realitate cu House Staging
Virtual!
Transformă-ți viziunea în realitate cu House
Staging Virtual!
Descoperă puterea creativității tale! Cu ajutorul instrumentului nostru de House Staging
Virtual, poți redecora și personaliza GRATUIT orice cameră din proprietatea de mai sus.
Experimentează cu mobilier, culori, texturi si stiluri diverse si vezi care dintre acestea ti se
potriveste.
Simplu, rapid și distractiv – toate acestea la un singur clic distanță. Începe acum să-ți
amenajezi virtual locuința ideală!
Bucuresti,
Dorobanti
Fiecare birou francizat RE/MAX e deținut și operat independent.
Descarca gratuit ghidul cumparatorului
Contacteaza agent
Fă-ți cont pe Remax.ro!
Adaugi o proprietate la favorite.
Ai văzut o proprietate care ți-a plăcut? Salveaz-o pentru o accesare ulterioară rapidă.
Salvezi căutarile făcute.
Cauți proprietăți după anumite criterii? Acum le poți salva, pentru a verifica rapid proprietățile nou apărute pe site conform criteriilor tale de selecție.
Partajezi proprietatile selectate.
Vrei să te consiliezi cu un apropiat în privința unei anumite proprietăți? Ai posibilitatea să dai share listei de căutări salvate sau listei de favorite.