Alte caracteristici: Acces auto, Oportunitate de investiții, Studiu Geo, Teren împrejmuit
Amenajare străzi: Asfaltate, Iluminat stradal, Mijloace de transport în comun
Urbanism: Autorizație de construcție
Utilități teren: Apă, Canalizare, Curent, Gaz
Descriere proprietate
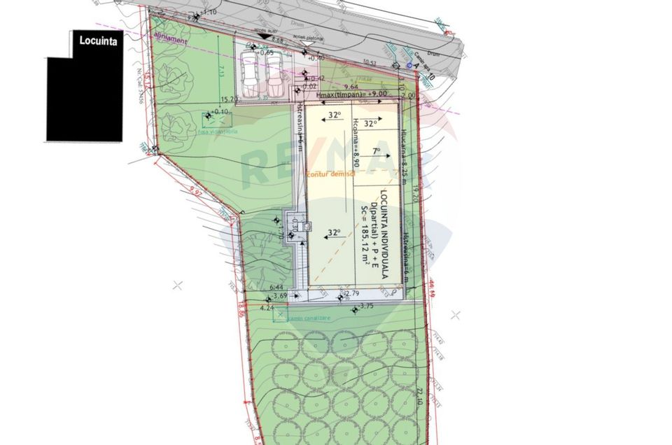
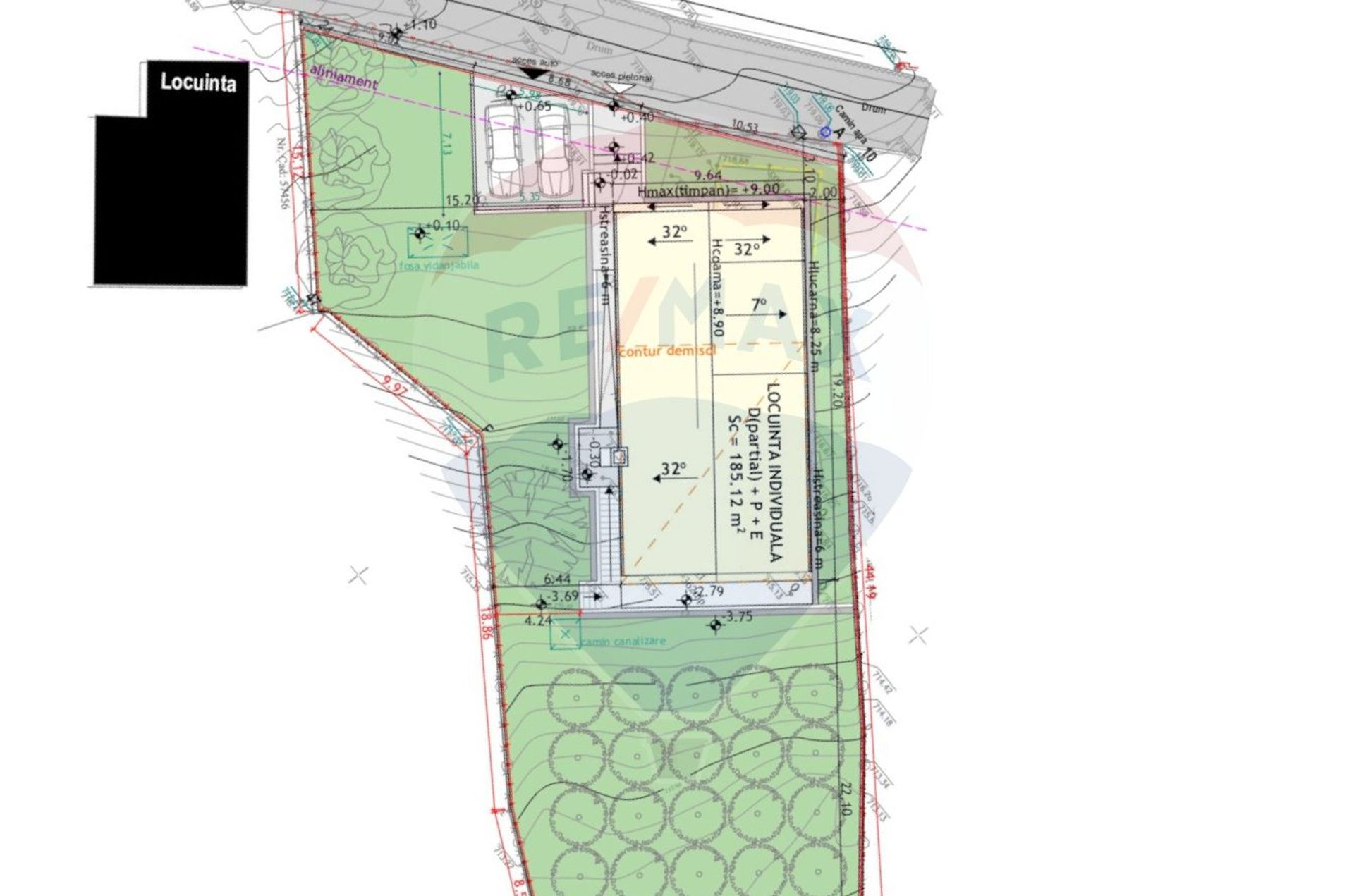
Vă propunem un teren în suprafață de 953 mp, cu autorizație de construire valabilă până în 27 aprilie 2026, pentru un imobil D+P+E conform coeficienților din prezentare.
Toate utilitățile sunt pe teren, inclusiv canalizare, dublată de fosa septică.
Pe teren este edificată fundația (incluzând ziduri de consolidare și demisol parțial) pe o suprafață de aproximativ 185 mp.
Oferta este supusă unei abordări foarte flexibile.
Vă așteptăm la vizionare!
Descriere proprietate
Vă propunem un teren în suprafață de 953 mp, cu autorizație de construire valabilă până în 27 aprilie 2026, pentru un imobil D+P+E conform coeficienților din prezentare.
Toate utilitățile sunt pe teren, inclusiv canalizare, dublată de fosa septică.
Pe teren este edificată fundația (incluzând ziduri de consolidare și demisol parțial) pe o suprafață de aproximativ 185 mp.
Oferta este supusă unei abordări foarte flexibile.
Vă așteptăm la vizionare!
Transformă-ți viziunea în realitate cu House Staging
Virtual!
Transformă-ți viziunea în realitate cu House
Staging Virtual!
Descoperă puterea creativității tale! Cu ajutorul instrumentului nostru de House Staging
Virtual, poți redecora și personaliza GRATUIT orice cameră din proprietatea de mai sus.
Experimentează cu mobilier, culori, texturi si stiluri diverse si vezi care dintre acestea ti se
potriveste.
Simplu, rapid și distractiv – toate acestea la un singur clic distanță. Începe acum să-ți
amenajezi virtual locuința ideală!
Feleacu,
Fiecare birou francizat RE/MAX e deținut și operat independent.
Descarca gratuit ghidul cumparatorului
Contacteaza agent
Fă-ți cont pe Remax.ro!
Adaugi o proprietate la favorite.
Ai văzut o proprietate care ți-a plăcut? Salveaz-o pentru o accesare ulterioară rapidă.
Salvezi căutarile făcute.
Cauți proprietăți după anumite criterii? Acum le poți salva, pentru a verifica rapid proprietățile nou apărute pe site conform criteriilor tale de selecție.
Partajezi proprietatile selectate.
Vrei să te consiliezi cu un apropiat în privința unei anumite proprietăți? Ai posibilitatea să dai share listei de căutări salvate sau listei de favorite.