Alte caracteristici spațiu comercial: Acces pentru persoane cu dizabilități, Afișare logo pe clădire, Contorizare separată, Sistem de ventilație
Finisaje: Cortină de sticlă, Ferestre care se deschid, Ferestre înclinate, Gresie, Grupuri sanitare amenajate și utilate, Lift cu destinație programată, Mochetă, Parchet, Podea înălțată, Post trafo, Tavan fals
Climatizare birou: Aport de aer proaspăt, Centrală termică, Control individual AC pentru fiecare zonă de birou, Sistem climatizare 4 țevi
Detalii tehnice: Parcare biciclete
Elemente ECO: Echipamente moderne / silențioase
Facilități clădire / proximități: Autobuz, Cafenea la parter
IT&C: Internet, Posibilitatea alegerii operator date / telefonie, Telefon
Servicii asigurate în clădire: Administrare și management imobiliar, Curățenie exterioară, Curățenie parcare, Curățenie spații comune, Îndepărtarea zăpezii, Îngrijirea spațiilor verzi, Salubritate, Servicii de întreținere și reparații lifturi
Siguranță și securitate: Acces securizat parcare, Cameră server, Control acces securizat pe bază de cartele, Control al accesului pe zone, Detectoare de fum/incendiu, Server room cu rack, ventilație, control acces, Sistem de alarmă
Sistem electric: Control electric individual pe zona de birou
Descriere proprietate
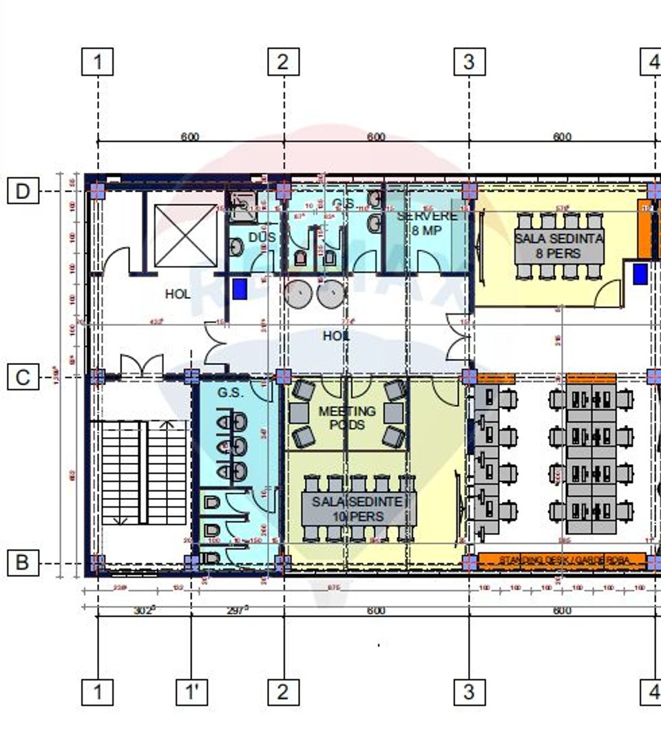
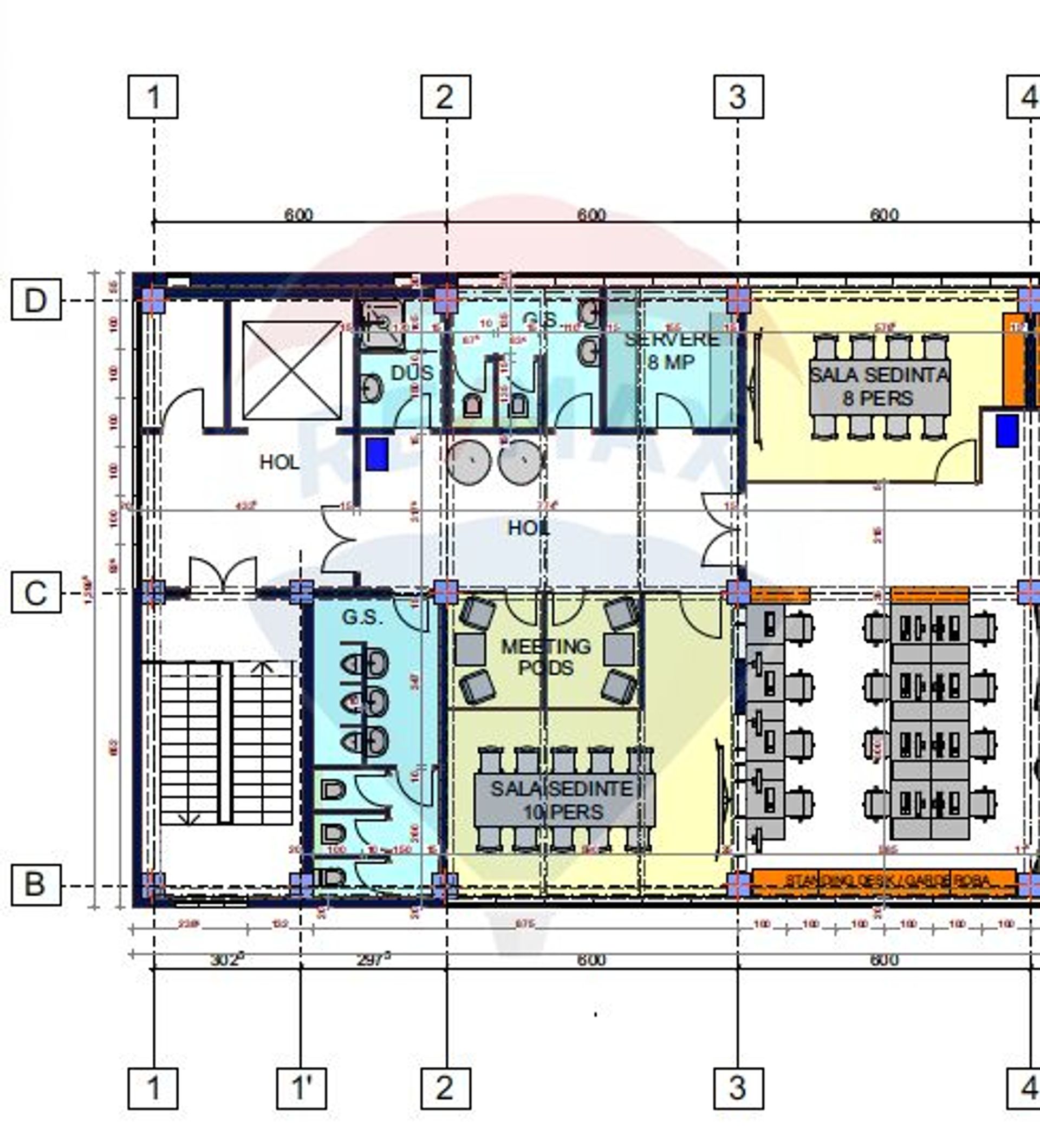
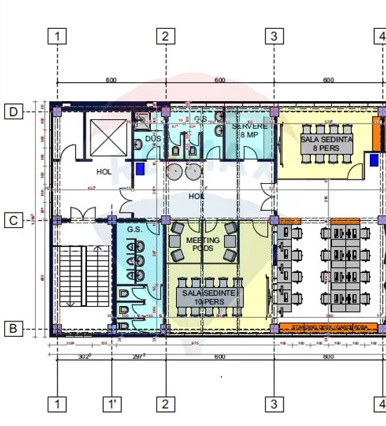
Spațiu de birouri de închiriat – 330 mp, extensibil la 400 mp.
Situat la etajul 3 din 5 al unei clădiri de birouri moderne, din zona Mărăsti, acest spațiu de 330 mp poate fi extins ușor până la 400 mp, în funcție de nevoile companiei tale.
Compartimentare flexibilă: open space generos, sală de conferință, 4 birouri individuale, 2 grupuri sanitare, bucătărie complet utilată cu zonă de servirea mesei, server room.
- Finisaje moderne și design interior cu accente industriale și moderne
- Luminozitate excelentă datorită suprafețelor vitrate mari
- Podea tehnologică și mocheta profesională
- Dotări tehnice: 2 lifturi de persoane, sistem de climatizare VRV multi-zonă, iluminat LED eficient energetic, infrastructură IT completă – fibră optică, sistem de control acces securizat
Facilități în clădire: restaurant, sală de fitness
Localizare excelentă: zonă foarte bine cotată, cu acces facil la mijloacele de transport în comun, apropiere de magazine, restaurante și alte servicii esențiale
Ideal pentru companii din domeniul IT, call-center, consultanță, sau orice organizație care caută un spațiu reprezentativ, confortabil și adaptabil la nevoile echipei.
Pret inchiriere spatii birouri 10 euro/mp+TVA. Costuri administrative de 2,5 euro/mp+TVA.
Spatiul dispune de 4 locuri de parcare exterioare situate in curte, acces securizat cu barieră. Acestea se inchiriază separat de pretul chiriei, la 50 euro/loc parcare/luna+TVA.
Descoperă un spațiu de birouri generos și elegant, ideal pentru companii care pun accent pe imagine, confort și eficienta.
Contactează-mă pentru detalii, planuri sau o vizionare!
Descriere proprietate
Spațiu de birouri de închiriat – 330 mp, extensibil la 400 mp.
Situat la etajul 3 din 5 al unei clădiri de birouri moderne, din zona Mărăsti, acest spațiu de 330 mp poate fi extins ușor până la 400 mp, în funcție de nevoile companiei tale.
Compartimentare flexibilă: open space generos, sală de conferință, 4 birouri individuale, 2 grupuri sanitare, bucătărie complet utilată cu zonă de servirea mesei, server room.
- Finisaje moderne și design interior cu accente industriale și moderne
- Luminozitate excelentă datorită suprafețelor vitrate mari
- Podea tehnologică și mocheta profesională
- Dotări tehnice: 2 lifturi de persoane, sistem de climatizare VRV multi-zonă, iluminat LED eficient energetic, infrastructură IT completă – fibră optică, sistem de control acces securizat
Facilități în clădire: restaurant, sală de fitness
Localizare excelentă: zonă foarte bine cotată, cu acces facil la mijloacele de transport în comun, apropiere de magazine, restaurante și alte servicii esențiale
Ideal pentru companii din domeniul IT, call-center, consultanță, sau orice organizație care caută un spațiu reprezentativ, confortabil și adaptabil la nevoile echipei.
Pret inchiriere spatii birouri 10 euro/mp+TVA. Costuri administrative de 2,5 euro/mp+TVA.
Spatiul dispune de 4 locuri de parcare exterioare situate in curte, acces securizat cu barieră. Acestea se inchiriază separat de pretul chiriei, la 50 euro/loc parcare/luna+TVA.
Descoperă un spațiu de birouri generos și elegant, ideal pentru companii care pun accent pe imagine, confort și eficienta.
Contactează-mă pentru detalii, planuri sau o vizionare!
Transformă-ți viziunea în realitate cu House Staging
Virtual!
Transformă-ți viziunea în realitate cu House
Staging Virtual!
Descoperă puterea creativității tale! Cu ajutorul instrumentului nostru de House Staging
Virtual, poți redecora și personaliza GRATUIT orice cameră din proprietatea de mai sus.
Experimentează cu mobilier, culori, texturi si stiluri diverse si vezi care dintre acestea ti se
potriveste.
Simplu, rapid și distractiv – toate acestea la un singur clic distanță. Începe acum să-ți
amenajezi virtual locuința ideală!
Cluj-Napoca,
Marasti
Fiecare birou francizat RE/MAX e deținut și operat independent.
Descarca gratuit ghidul cumparatorului
Contacteaza agent
Fă-ți cont pe Remax.ro!
Adaugi o proprietate la favorite.
Ai văzut o proprietate care ți-a plăcut? Salveaz-o pentru o accesare ulterioară rapidă.
Salvezi căutarile făcute.
Cauți proprietăți după anumite criterii? Acum le poți salva, pentru a verifica rapid proprietățile nou apărute pe site conform criteriilor tale de selecție.
Partajezi proprietatile selectate.
Vrei să te consiliezi cu un apropiat în privința unei anumite proprietăți? Ai posibilitatea să dai share listei de căutări salvate sau listei de favorite.