Amenajare străzi: Asfaltate, Iluminat stradal, Mijloace de transport în comun
Dotări imobil: Acoperiș
Utilități generale: Apă, Canalizare, Curent, Gaz
Uși interior: PVC
Ușă intrare: PVC
Descriere proprietate
Oportunitate de investiție unică: vilă spațioasă în Siminicea cu 12 camere si teren intravilan de 2869 mp, județul Suceava.
Descoperiți o proprietate cu potențial imens în centrul comunei Siminicea, județul Suceava.
Situată strategic la doar 5 minute de orașul Dumbrăveni și la 20 de minute de Suceava, această vilă modernă oferă o combinație ideală de confort și accesibilitate.
Caracteristici cheie ale proprietății:
• Configurație flexibilă: Vilă cu parter și două etaje, fiecare nivel având intrare separată prin casa scării, perfectă pentru transformare în locuințe multifamiliale, spații de închiriat sau birouri.
• Utilități disponibile: Conectată la rețelele locale de apă, canalizare, gaz și electricitate, eliminând necesitatea costurilor mari de infrastructură.
• Proprietate la stadiul de „roșu”: Oferă oportunitatea personalizării fiecărei încăperi în funcție de preferințele noului proprietar.
• Localizare centrală: Aproape de magazine alimentare, instituții publice și alte facilități locale, creând o atractivitate sporită pentru potențiali chiriași sau utilizatori.
De ce să investiți în această proprietate?
1. Versatilitate: Poate fi adaptată cu ușurință pentru a genera venituri pasive prin închiriere sau pentru a acomoda nevoile unei familii extinse.
2. Localizare strategică: Apropierea de orașe importante și de facilități esențiale face din această proprietate o alegere ideală pentru locuință sau afaceri.
3. Preț accesibil: Achiziționați o vilă la roșu, economisind astfel costurile cu o construcție nouă de la zero.
Investiți astăzi în viitorul dumneavoastră, într-o zonă în continuă dezvoltare!
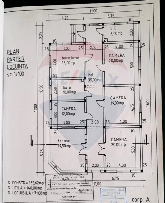
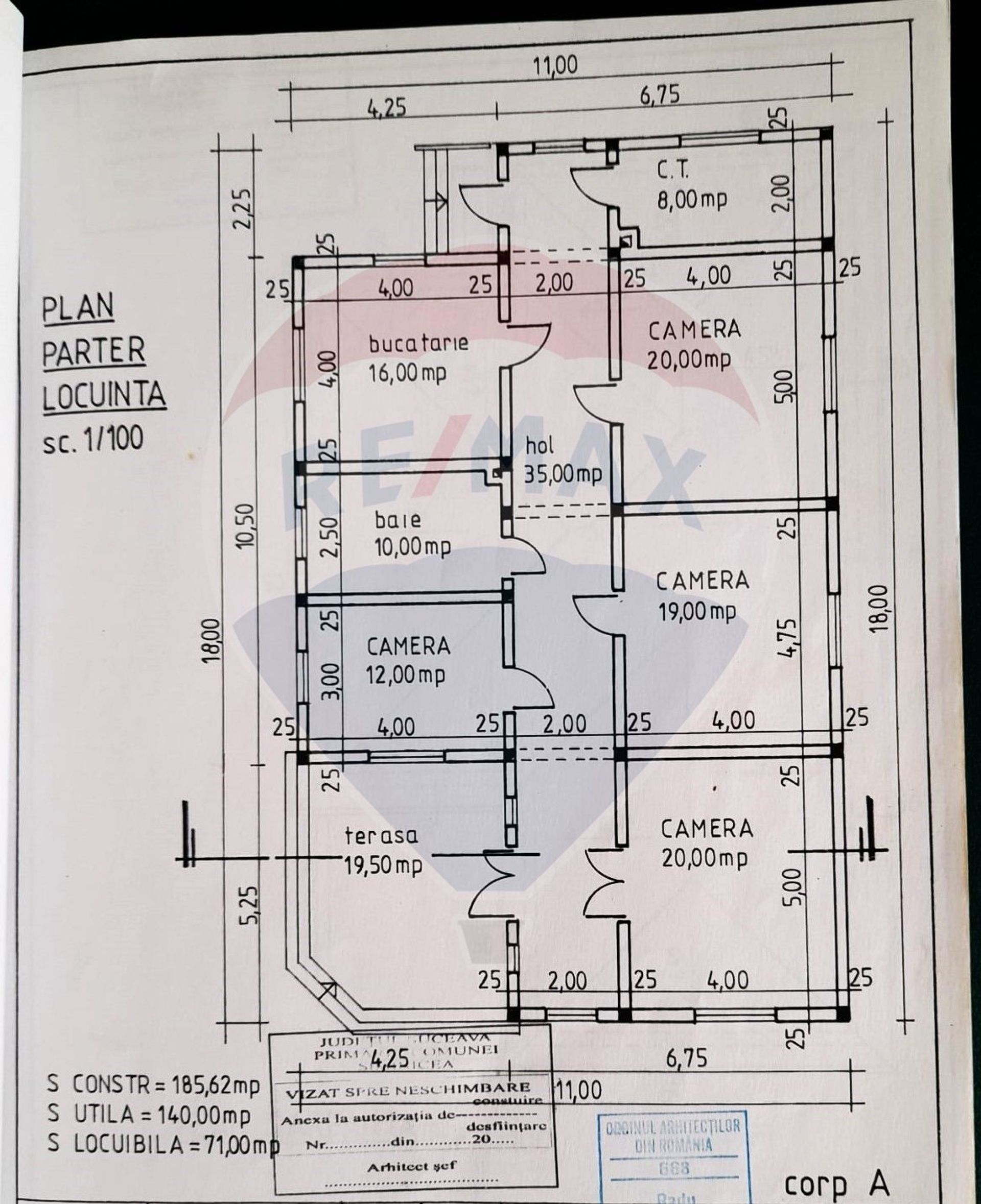
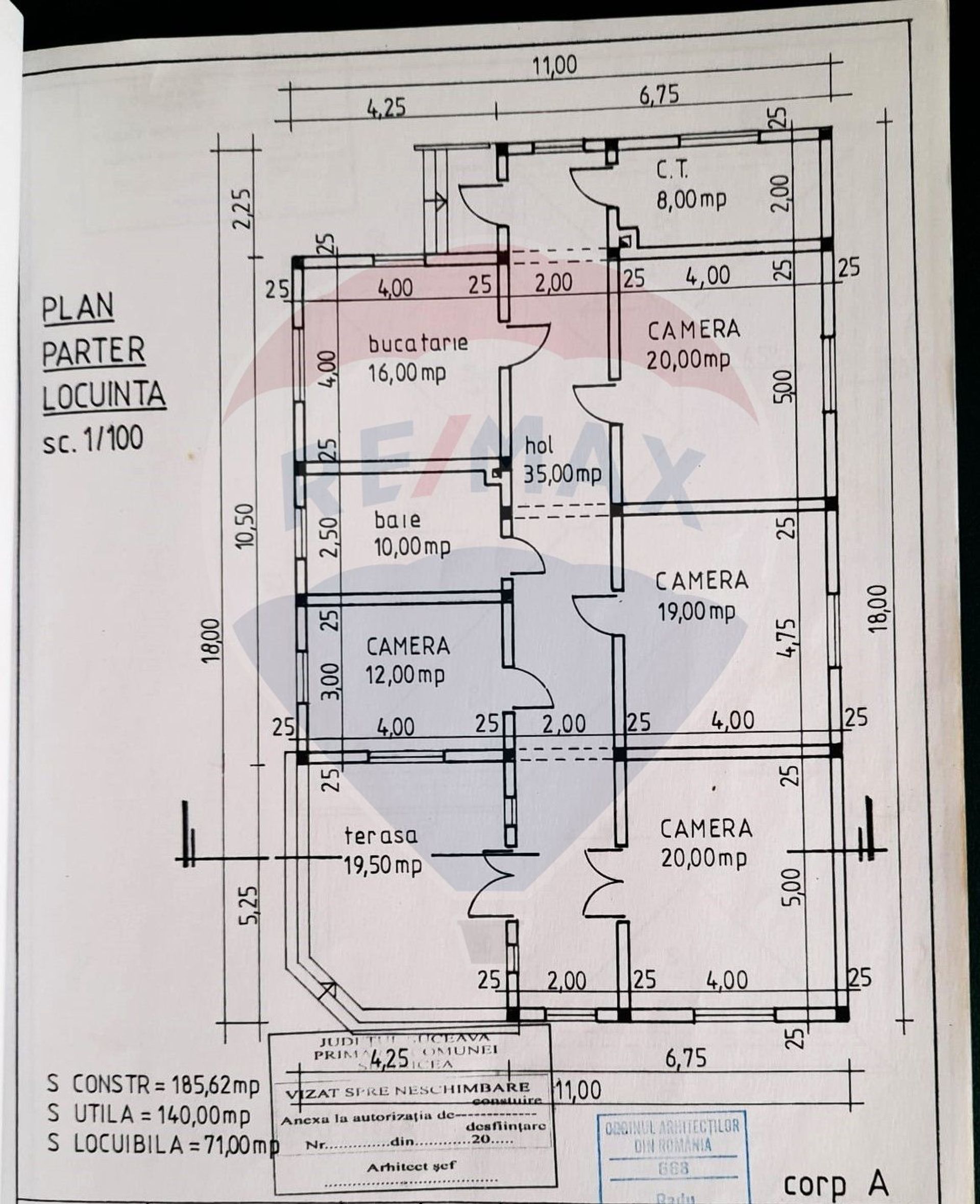
LA PARTER găsim 2 intrări separate, un hol principal cu acces la fiecare cameră, respectiv la o sufragerie, 3 dormitoare, o bucătărie, o baie, o cameră tehnică, o terasă si casa scării cu acces separat pentru fiecare nivel in parte.
LA ETAJ avem un hol generos care ne oferă acces la fiecare cameră, respectiv la o sufragerie, 3 dormitoare, o bucătărie și o baie.
LA Mansardă avem un hol generos care ne oferă acces la fiecare cameră, respectiv la o sufragerie, 3 dormitoare, o bucătărie și o baie.
Avem două dormitoare cu balcon propriu.
Casa este construita pe o structura de beton armat cu BCA.
Acoperișul este din tabla tip Lindab.
Tâmplăria este din termopan la fel și ușile de la intrare sunt tot din termopan.
Utilitățile (gaz, apa, canalizare) sunt de la comună la limita proprietății.
Curent monofazat-contract cu E-on.
Proprietatea mai are are trei anexe si o casă bătrânească:
Casa bătrânească de 82mp
Anexa 1 : magazie depozitare de 20 mp
Anexa 2 : grajd +șura de 51mp
Anexa 3 : garaj de 22 mp
Indicatorii de performanță energetică a imobilului sunt:
- clasa energetică: B
Contactează agentul imobiliar pentru informații suplimentare și pentru vizionarea proprietății.
Descriere proprietate
Oportunitate de investiție unică: vilă spațioasă în Siminicea cu 12 camere si teren intravilan de 2869 mp, județul Suceava.
Descoperiți o proprietate cu potențial imens în centrul comunei Siminicea, județul Suceava.
Situată strategic la doar 5 minute de orașul Dumbrăveni și la 20 de minute de Suceava, această vilă modernă oferă o combinație ideală de confort și accesibilitate.
Caracteristici cheie ale proprietății:
• Configurație flexibilă: Vilă cu parter și două etaje, fiecare nivel având intrare separată prin casa scării, perfectă pentru transformare în locuințe multifamiliale, spații de închiriat sau birouri.
• Utilități disponibile: Conectată la rețelele locale de apă, canalizare, gaz și electricitate, eliminând necesitatea costurilor mari de infrastructură.
• Proprietate la stadiul de „roșu”: Oferă oportunitatea personalizării fiecărei încăperi în funcție de preferințele noului proprietar.
• Localizare centrală: Aproape de magazine alimentare, instituții publice și alte facilități locale, creând o atractivitate sporită pentru potențiali chiriași sau utilizatori.
De ce să investiți în această proprietate?
1. Versatilitate: Poate fi adaptată cu ușurință pentru a genera venituri pasive prin închiriere sau pentru a acomoda nevoile unei familii extinse.
2. Localizare strategică: Apropierea de orașe importante și de facilități esențiale face din această proprietate o alegere ideală pentru locuință sau afaceri.
3. Preț accesibil: Achiziționați o vilă la roșu, economisind astfel costurile cu o construcție nouă de la zero.
Investiți astăzi în viitorul dumneavoastră, într-o zonă în continuă dezvoltare!
LA PARTER găsim 2 intrări separate, un hol principal cu acces la fiecare cameră, respectiv la o sufragerie, 3 dormitoare, o bucătărie, o baie, o cameră tehnică, o terasă si casa scării cu acces separat pentru fiecare nivel in parte.
LA ETAJ avem un hol generos care ne oferă acces la fiecare cameră, respectiv la o sufragerie, 3 dormitoare, o bucătărie și o baie.
LA Mansardă avem un hol generos care ne oferă acces la fiecare cameră, respectiv la o sufragerie, 3 dormitoare, o bucătărie și o baie.
Avem două dormitoare cu balcon propriu.
Casa este construita pe o structura de beton armat cu BCA.
Acoperișul este din tabla tip Lindab.
Tâmplăria este din termopan la fel și ușile de la intrare sunt tot din termopan.
Utilitățile (gaz, apa, canalizare) sunt de la comună la limita proprietății.
Curent monofazat-contract cu E-on.
Proprietatea mai are are trei anexe si o casă bătrânească:
Casa bătrânească de 82mp
Anexa 1 : magazie depozitare de 20 mp
Anexa 2 : grajd +șura de 51mp
Anexa 3 : garaj de 22 mp
Indicatorii de performanță energetică a imobilului sunt:
- clasa energetică: B
Contactează agentul imobiliar pentru informații suplimentare și pentru vizionarea proprietății.
Transformă-ți viziunea în realitate cu House Staging
Virtual!
Transformă-ți viziunea în realitate cu House
Staging Virtual!
Descoperă puterea creativității tale! Cu ajutorul instrumentului nostru de House Staging
Virtual, poți redecora și personaliza GRATUIT orice cameră din proprietatea de mai sus.
Experimentează cu mobilier, culori, texturi si stiluri diverse si vezi care dintre acestea ti se
potriveste.
Simplu, rapid și distractiv – toate acestea la un singur clic distanță. Începe acum să-ți
amenajezi virtual locuința ideală!
Siminicea,
Fiecare birou francizat RE/MAX e deținut și operat independent.
Descarca gratuit ghidul cumparatorului
Contacteaza agent
Fă-ți cont pe Remax.ro!
Adaugi o proprietate la favorite.
Ai văzut o proprietate care ți-a plăcut? Salveaz-o pentru o accesare ulterioară rapidă.
Salvezi căutarile făcute.
Cauți proprietăți după anumite criterii? Acum le poți salva, pentru a verifica rapid proprietățile nou apărute pe site conform criteriilor tale de selecție.
Partajezi proprietatile selectate.
Vrei să te consiliezi cu un apropiat în privința unei anumite proprietăți? Ai posibilitatea să dai share listei de căutări salvate sau listei de favorite.