Amenajare străzi: Asfaltate, Iluminat stradal, Mijloace de transport în comun
Contorizare: Apometre, Contor electric, Contor gaz
Dotări imobil: Interfon
Ferestre: Lemn, PVC
Mobilat: Nemobilat
Pereți: Faianță, Var
Sistem încălzire: Calorifere, Centrală proprie
Utilități generale: Apă, Canalizare, Curent, Gaz
Uși interior: Panel
Ușă intrare: Lemn
Finisaje: Parchet
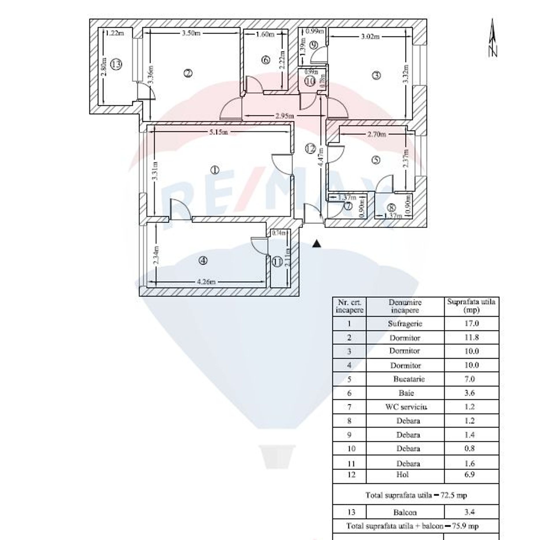
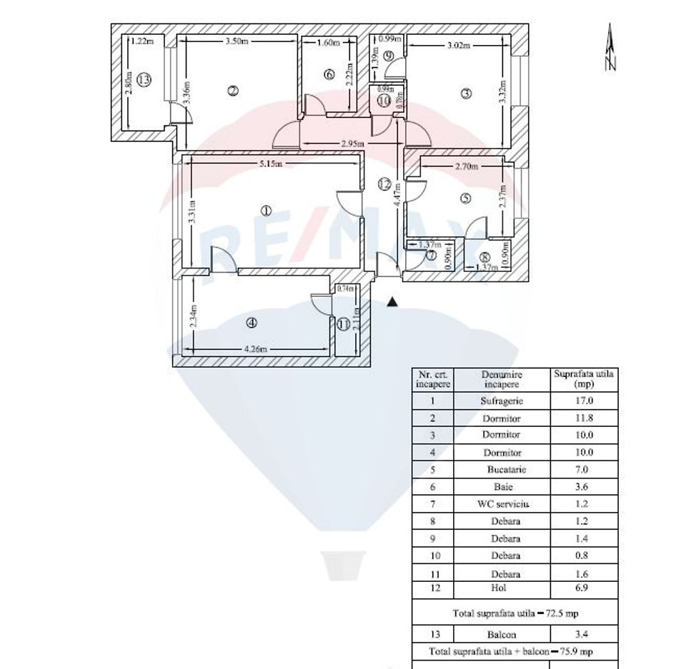
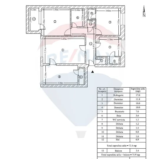
Descriere proprietate
Îți prezentăm spre vânzare un apartament cu 4 camere și dependințe, situat la ultimul etaj al unui bloc solid cu 4 niveluri într-o zonă ultracentarală a orașului Galați, situat pe str. Domnească cu vedere către intersecția celor mai mari străzi ale orașului.
Această proprietate beneficiază de camere luminoase și dependințe bine compartimentate, cu o suprafață totala de 98 mp și 76 mp utili – ideală pentru familii care au nevoie de spațiu și funcționalitate.
Avantajele care îl fac special:
- Poziționare ultracentrală, într-o zonă ideală pentru viața de familie – aproape de școli, grădinițe, parcuri, magazine, instituții publice, dar și de tot ce înseamnă cultură și relaxare urbană;
- La câțiva pași de Faleza Dunării – locul perfect pentru plimbări de seară sau activități în aer liber cu cei dragi;
- Ultimul etaj – mai multă liniște, lumină naturală și intimitate, fără vecini deasupra;
- Acoperișul existent – oferă un plus de protecție în orice anotimp;
- Necesită renovare – dar acest lucru îți oferă libertatea de a personaliza fiecare colț exact cum îți dorești, fără compromisuri legate de gusturile altora.
Documentație verificată, pretabil pentru credite imobiliare, fiind disponibil imediat!
Programeaza o vizionare la nr de tel. din anunt!
Descriere proprietate
Îți prezentăm spre vânzare un apartament cu 4 camere și dependințe, situat la ultimul etaj al unui bloc solid cu 4 niveluri într-o zonă ultracentarală a orașului Galați, situat pe str. Domnească cu vedere către intersecția celor mai mari străzi ale orașului.
Această proprietate beneficiază de camere luminoase și dependințe bine compartimentate, cu o suprafață totala de 98 mp și 76 mp utili – ideală pentru familii care au nevoie de spațiu și funcționalitate.
Avantajele care îl fac special:
- Poziționare ultracentrală, într-o zonă ideală pentru viața de familie – aproape de școli, grădinițe, parcuri, magazine, instituții publice, dar și de tot ce înseamnă cultură și relaxare urbană;
- La câțiva pași de Faleza Dunării – locul perfect pentru plimbări de seară sau activități în aer liber cu cei dragi;
- Ultimul etaj – mai multă liniște, lumină naturală și intimitate, fără vecini deasupra;
- Acoperișul existent – oferă un plus de protecție în orice anotimp;
- Necesită renovare – dar acest lucru îți oferă libertatea de a personaliza fiecare colț exact cum îți dorești, fără compromisuri legate de gusturile altora.
Documentație verificată, pretabil pentru credite imobiliare, fiind disponibil imediat!
Programeaza o vizionare la nr de tel. din anunt!
Transformă-ți viziunea în realitate cu House Staging
Virtual!
Transformă-ți viziunea în realitate cu House
Staging Virtual!
Descoperă puterea creativității tale! Cu ajutorul instrumentului nostru de House Staging
Virtual, poți redecora și personaliza GRATUIT orice cameră din proprietatea de mai sus.
Experimentează cu mobilier, culori, texturi si stiluri diverse si vezi care dintre acestea ti se
potriveste.
Simplu, rapid și distractiv – toate acestea la un singur clic distanță. Începe acum să-ți
amenajezi virtual locuința ideală!
Galati,
Central
Fiecare birou francizat RE/MAX e deținut și operat independent.
Descarca gratuit ghidul cumparatorului
Contacteaza agent
Fă-ți cont pe Remax.ro!
Adaugi o proprietate la favorite.
Ai văzut o proprietate care ți-a plăcut? Salveaz-o pentru o accesare ulterioară rapidă.
Salvezi căutarile făcute.
Cauți proprietăți după anumite criterii? Acum le poți salva, pentru a verifica rapid proprietățile nou apărute pe site conform criteriilor tale de selecție.
Partajezi proprietatile selectate.
Vrei să te consiliezi cu un apropiat în privința unei anumite proprietăți? Ai posibilitatea să dai share listei de căutări salvate sau listei de favorite.