Finisaje: Ferestre care se deschid, Gresie, Parchet, Tavan fals
Climatizare birou: Control individual AC pentru fiecare zonă de birou
Facilități clădire / proximități: Autobuz
IT&C: Internet, Telefon
Siguranță și securitate: Detectoare de fum/incendiu, Extinctoare sprinkler, Sistem de alarmă
Descriere proprietate
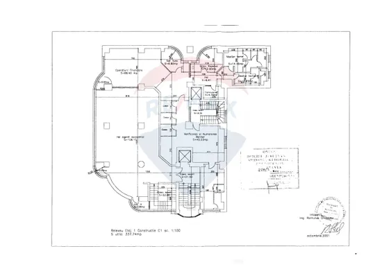
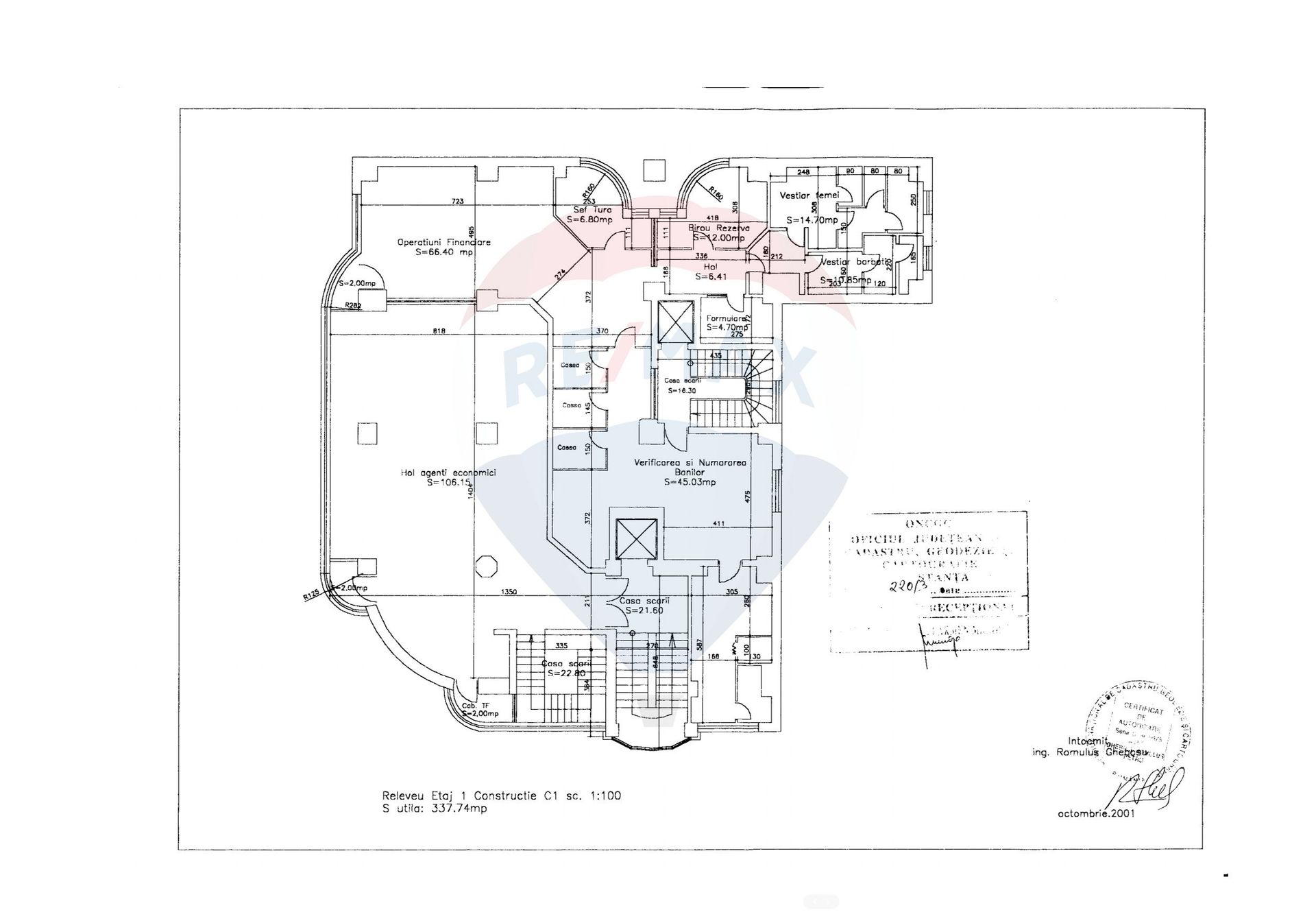
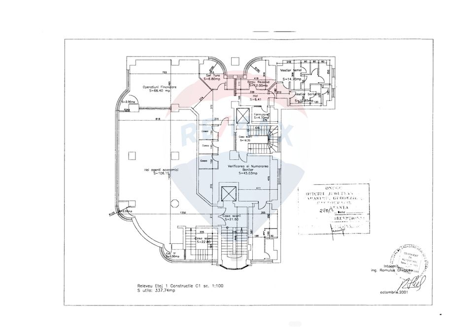
Spațiu de închiriat – 338 mp utili, ultracentral, Constanța
Vă oferim spre închiriere un spațiu generos și modern, cu o suprafață utilă de 338 mp, situat în zona ultracentrală a orașului Constanța, pe strada Bogdan Vodă. Proprietatea este amplasată la etajul 1 al unei clădiri cu regim de înălțime D+P+6E, având acces facil direct din strada principală.
• Caracteristici principale:
Compartimentare funcțională: spațiul este organizat în mai multe încăperi, inclusiv birouri, grupuri sanitare, vestiare, holuri, oferind flexibilitate în configurarea mediului de lucru.
Utilități complete: toate dotările necesare sunt disponibile, inclusiv un tablou electric separat, pentru a asigura un mediu de lucru eficient și sigur.
Suprafață generoasă: cele 338 mp permit organizarea eficientă a zonelor de lucru, fiind ideal pentru activități diverse precum:
- Consultanță financiară;
- IT & software development;
- Activități comerciale sau servicii profesionale;
- Vânzări și suport clienți.
• Facilități suplimentare:
Pentru nevoi logistice, există posibilitatea închirierii demisolului, cu o suprafață utilă de 286 mp, perfect pentru arhivare, depozitare sau alte utilizări. Accesul la subsol este asigurat atât prin lift, cât și pe scări.
• Avantaje:
Localizare premium: poziționarea ultracentrală oferă acces facil și vizibilitate excelentă.
Flexibilitate: spațiul poate fi personalizat în funcție de cerințele activității dumneavoastră.
Confort și funcționalitate: proiectat pentru a satisface nevoile unui mediu profesional de lucru.
Pentru detalii suplimentare sau pentru a programa o vizionare, vă rugăm să ne contactați. Acest spațiu reprezintă o oportunitate excelentă pentru companiile care doresc să se dezvolte într-un mediu profesional de top.
Descriere proprietate
Spațiu de închiriat – 338 mp utili, ultracentral, Constanța
Vă oferim spre închiriere un spațiu generos și modern, cu o suprafață utilă de 338 mp, situat în zona ultracentrală a orașului Constanța, pe strada Bogdan Vodă. Proprietatea este amplasată la etajul 1 al unei clădiri cu regim de înălțime D+P+6E, având acces facil direct din strada principală.
• Caracteristici principale:
Compartimentare funcțională: spațiul este organizat în mai multe încăperi, inclusiv birouri, grupuri sanitare, vestiare, holuri, oferind flexibilitate în configurarea mediului de lucru.
Utilități complete: toate dotările necesare sunt disponibile, inclusiv un tablou electric separat, pentru a asigura un mediu de lucru eficient și sigur.
Suprafață generoasă: cele 338 mp permit organizarea eficientă a zonelor de lucru, fiind ideal pentru activități diverse precum:
- Consultanță financiară;
- IT & software development;
- Activități comerciale sau servicii profesionale;
- Vânzări și suport clienți.
• Facilități suplimentare:
Pentru nevoi logistice, există posibilitatea închirierii demisolului, cu o suprafață utilă de 286 mp, perfect pentru arhivare, depozitare sau alte utilizări. Accesul la subsol este asigurat atât prin lift, cât și pe scări.
• Avantaje:
Localizare premium: poziționarea ultracentrală oferă acces facil și vizibilitate excelentă.
Flexibilitate: spațiul poate fi personalizat în funcție de cerințele activității dumneavoastră.
Confort și funcționalitate: proiectat pentru a satisface nevoile unui mediu profesional de lucru.
Pentru detalii suplimentare sau pentru a programa o vizionare, vă rugăm să ne contactați. Acest spațiu reprezintă o oportunitate excelentă pentru companiile care doresc să se dezvolte într-un mediu profesional de top.
Transformă-ți viziunea în realitate cu House Staging
Virtual!
Transformă-ți viziunea în realitate cu House
Staging Virtual!
Descoperă puterea creativității tale! Cu ajutorul instrumentului nostru de House Staging
Virtual, poți redecora și personaliza GRATUIT orice cameră din proprietatea de mai sus.
Experimentează cu mobilier, culori, texturi si stiluri diverse si vezi care dintre acestea ti se
potriveste.
Simplu, rapid și distractiv – toate acestea la un singur clic distanță. Începe acum să-ți
amenajezi virtual locuința ideală!
Tur virtual
Constanta,
Central
Fiecare birou francizat RE/MAX e deținut și operat independent.
Descarca gratuit ghidul cumparatorului
Contacteaza agent
Fă-ți cont pe Remax.ro!
Adaugi o proprietate la favorite.
Ai văzut o proprietate care ți-a plăcut? Salveaz-o pentru o accesare ulterioară rapidă.
Salvezi căutarile făcute.
Cauți proprietăți după anumite criterii? Acum le poți salva, pentru a verifica rapid proprietățile nou apărute pe site conform criteriilor tale de selecție.
Partajezi proprietatile selectate.
Vrei să te consiliezi cu un apropiat în privința unei anumite proprietăți? Ai posibilitatea să dai share listei de căutări salvate sau listei de favorite.