Spațiu comercial de vânzare în zona centrală, situat pe o arteră intens circulată a orașului.
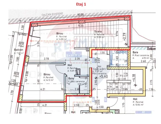
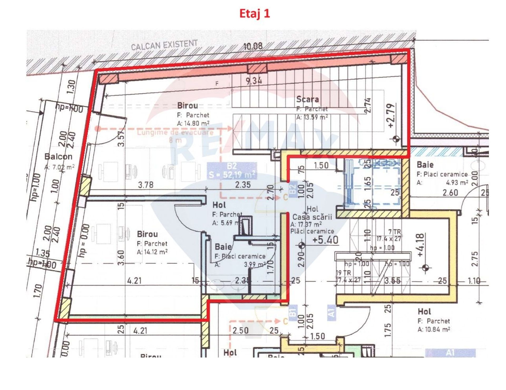
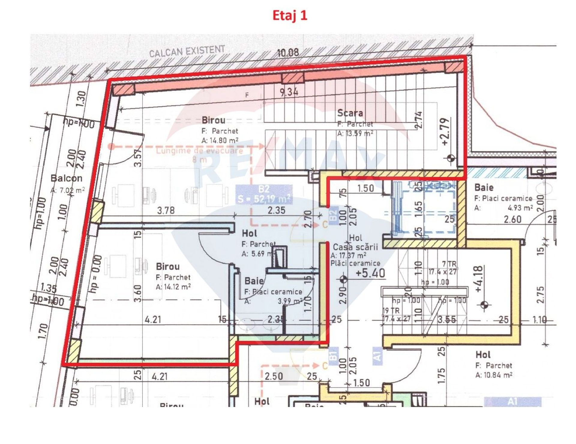
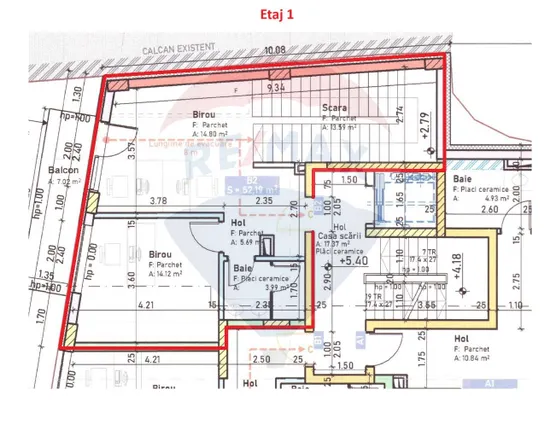
Proprietatea este situată la parterul unui bloc în construcție, ce cuprinde 11 apartamente și este compartimentată astfel:
Parter - Sală vânzare, grup sanitar, scări
Etaj - Două birouri, grup sanitar, hol, scări.
Accesul se poate face atât din scara blocului cât și din strada principală (3 vitrine x 3.9 m)
* Prețul nu includ TVA (21%)
______________________________________________________________________________________
Spațiul se predă la stadiul semifinisat cu următoarele dotări incluse:
- Instalațiile termice, electrice și sanitare executate și trase la poziție
- Sistem de încălzire cu centrala termica comuna, in condensare.
- Sistem de încălzire in pardoseala Rehau.
- Dispozitive de contorizare separate a consumului individual.
- Pereții gletuiți cu 2 straturi de glet
- Șapă
- Tâmplărie PVC,7 camere, tripan, baghetă caldă și filtru de protecție solară.
- Ușă metalică antiefracție, cu izolare termică și fonică, închidere in minim 6 puncte
- Termoizolație de 15 cm .
- Interfața smart de control al temperaturii interioare.
- Lift pentru persoane si lift auto.
- Iluminat exterior si spatiile comune cu becuri LED.
Spațiile comune:
- Parking subteran cu acces securizat si lift
- Locuri de parcare dotate cu stații de încărcare pentru mașini electrice
- Locuri de parcare pentru biciclete
- Acces securizat in clădire
- Spațiu verde amenajat
______________________________________________________________________________________
Pentru mai multe informații vă rugăm să ne contactați.
Descriere proprietate
Spațiu comercial de vânzare în zona centrală, situat pe o arteră intens circulată a orașului.
Proprietatea este situată la parterul unui bloc în construcție, ce cuprinde 11 apartamente și este compartimentată astfel:
Parter - Sală vânzare, grup sanitar, scări
Etaj - Două birouri, grup sanitar, hol, scări.
Accesul se poate face atât din scara blocului cât și din strada principală (3 vitrine x 3.9 m)
* Prețul nu includ TVA (21%)
______________________________________________________________________________________
Spațiul se predă la stadiul semifinisat cu următoarele dotări incluse:
- Instalațiile termice, electrice și sanitare executate și trase la poziție
- Sistem de încălzire cu centrala termica comuna, in condensare.
- Sistem de încălzire in pardoseala Rehau.
- Dispozitive de contorizare separate a consumului individual.
- Pereții gletuiți cu 2 straturi de glet
- Șapă
- Tâmplărie PVC,7 camere, tripan, baghetă caldă și filtru de protecție solară.
- Ușă metalică antiefracție, cu izolare termică și fonică, închidere in minim 6 puncte
- Termoizolație de 15 cm .
- Interfața smart de control al temperaturii interioare.
- Lift pentru persoane si lift auto.
- Iluminat exterior si spatiile comune cu becuri LED.
Spațiile comune:
- Parking subteran cu acces securizat si lift
- Locuri de parcare dotate cu stații de încărcare pentru mașini electrice
- Locuri de parcare pentru biciclete
- Acces securizat in clădire
- Spațiu verde amenajat
______________________________________________________________________________________
Pentru mai multe informații vă rugăm să ne contactați.
Transformă-ți viziunea în realitate cu House Staging
Virtual!
Transformă-ți viziunea în realitate cu House
Staging Virtual!
Descoperă puterea creativității tale! Cu ajutorul instrumentului nostru de House Staging
Virtual, poți redecora și personaliza GRATUIT orice cameră din proprietatea de mai sus.
Experimentează cu mobilier, culori, texturi si stiluri diverse si vezi care dintre acestea ti se
potriveste.
Simplu, rapid și distractiv – toate acestea la un singur clic distanță. Începe acum să-ți
amenajezi virtual locuința ideală!
Fiecare birou francizat RE/MAX e deținut și operat independent.
Descarca gratuit ghidul cumparatorului
Contacteaza agent
Fă-ți cont pe Remax.ro!
Adaugi o proprietate la favorite.
Ai văzut o proprietate care ți-a plăcut? Salveaz-o pentru o accesare ulterioară rapidă.
Salvezi căutarile făcute.
Cauți proprietăți după anumite criterii? Acum le poți salva, pentru a verifica rapid proprietățile nou apărute pe site conform criteriilor tale de selecție.
Partajezi proprietatile selectate.
Vrei să te consiliezi cu un apropiat în privința unei anumite proprietăți? Ai posibilitatea să dai share listei de căutări salvate sau listei de favorite.