Alte caracteristici: Acces auto, Oportunitate de investiții
Amenajare străzi: Mijloace de transport în comun, Pietruite
Utilități teren: Apă
Descriere proprietate
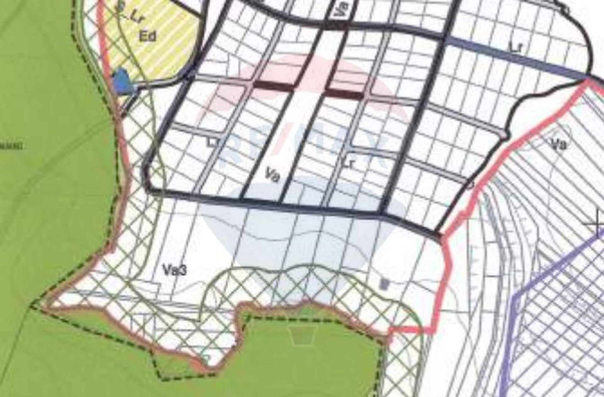
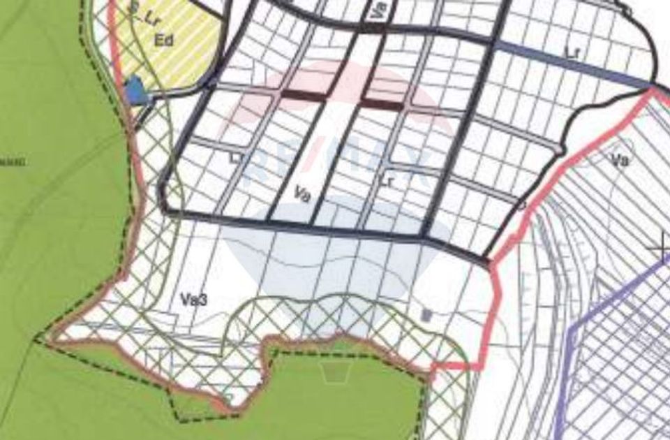
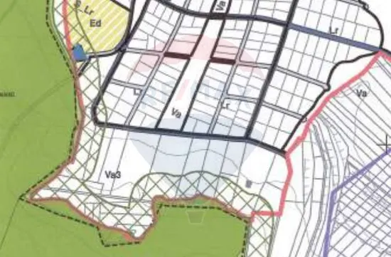
Vă oferim pentru achiziționare 4 parcele de teren (de la 611,45 mp la 872,60 mp din care nu mai trebuie cedat!!!) situate în Chinteni, zonă de locuințe rurale cu regim redus de înălțime (UTR Lr), unde se pot construi locuințe unifamiliale sau de tip duplex, amplasate izolat pe parcelă și anexe ale acestora (garaje, filegorii, împrejmuiri, amenajări exterioare, platforme carosabile și pietonale).
Parcelele sunt dimensionate conform regulamentului de urbanism al zonei, urmând să se poată autoriza pentru construire fără alte demersuri de urbanizare (PUZ, PUD etc).
Accesul la parcele se face de pe drum cadastrat, actualmente pietruit, iar utilitățile sunt la o distanță de 300 m.
Ținând cont de:
- locație;
- stadiu final al reglementărilor de urbanism – revizuire PUG cu implementare certă;
- autorizare construcție fără alte demersuri;
- preț extrem de accesibil comparativ cu alte oferte;
- documente 100% clare și în regulă pentru tranzacționare imediată.
Vă invit la analiză și vizionare!
Descriere proprietate
Vă oferim pentru achiziționare 4 parcele de teren (de la 611,45 mp la 872,60 mp din care nu mai trebuie cedat!!!) situate în Chinteni, zonă de locuințe rurale cu regim redus de înălțime (UTR Lr), unde se pot construi locuințe unifamiliale sau de tip duplex, amplasate izolat pe parcelă și anexe ale acestora (garaje, filegorii, împrejmuiri, amenajări exterioare, platforme carosabile și pietonale).
Parcelele sunt dimensionate conform regulamentului de urbanism al zonei, urmând să se poată autoriza pentru construire fără alte demersuri de urbanizare (PUZ, PUD etc).
Accesul la parcele se face de pe drum cadastrat, actualmente pietruit, iar utilitățile sunt la o distanță de 300 m.
Ținând cont de:
- locație;
- stadiu final al reglementărilor de urbanism – revizuire PUG cu implementare certă;
- autorizare construcție fără alte demersuri;
- preț extrem de accesibil comparativ cu alte oferte;
- documente 100% clare și în regulă pentru tranzacționare imediată.
Vă invit la analiză și vizionare!
Transformă-ți viziunea în realitate cu House Staging
Virtual!
Transformă-ți viziunea în realitate cu House
Staging Virtual!
Descoperă puterea creativității tale! Cu ajutorul instrumentului nostru de House Staging
Virtual, poți redecora și personaliza GRATUIT orice cameră din proprietatea de mai sus.
Experimentează cu mobilier, culori, texturi si stiluri diverse si vezi care dintre acestea ti se
potriveste.
Simplu, rapid și distractiv – toate acestea la un singur clic distanță. Începe acum să-ți
amenajezi virtual locuința ideală!
Video prezentare
Chinteni,
Fiecare birou francizat RE/MAX e deținut și operat independent.
Descarca gratuit ghidul cumparatorului
Contacteaza agent
Fă-ți cont pe Remax.ro!
Adaugi o proprietate la favorite.
Ai văzut o proprietate care ți-a plăcut? Salveaz-o pentru o accesare ulterioară rapidă.
Salvezi căutarile făcute.
Cauți proprietăți după anumite criterii? Acum le poți salva, pentru a verifica rapid proprietățile nou apărute pe site conform criteriilor tale de selecție.
Partajezi proprietatile selectate.
Vrei să te consiliezi cu un apropiat în privința unei anumite proprietăți? Ai posibilitatea să dai share listei de căutări salvate sau listei de favorite.