Architecture: Windows that open, Hone, Bathrooms furnished and equipped
Air conditioning: Fresh air supply, Boiler, Individual AC controls for each office, Split Units
IT&C: Internet, Telephone
Safety and security: Server room, Alarm system
Description
The space is located ultracentrally, on Teatrului Street no. 6, in a secluded inner courtyard that provides easy access, but without direct exposure to traffic and noise. This positioning makes it suitable for professional activities that involve recurring meetings with clients and require a quiet setting: legal, consulting, psychotherapy, private services or similar activities.
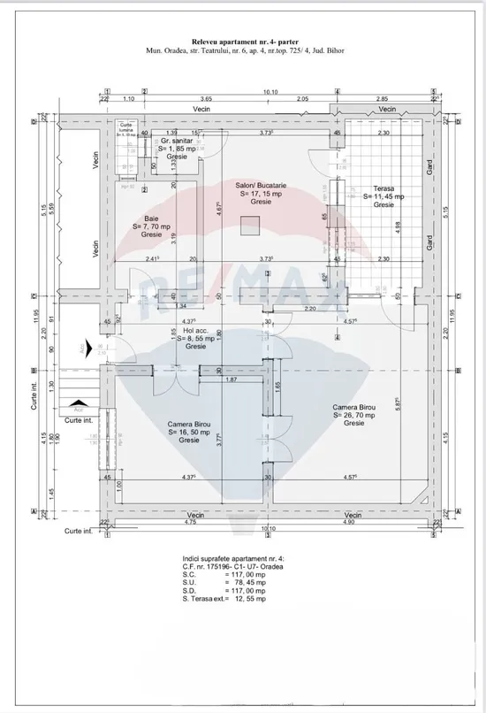
The property was completely renovated in 2023 and is fully functional. It has a usable area of 78.45 sqm, is located on the ground floor and is divided into two well-proportioned offices, two bathrooms, kitchen and access hallway. In addition, there is a private terrace of 12.55 sqm, as well as two boxes in the basement. The space is sold in its current form, according to the images, without the need for additional works or subsequent investments.
The partitioning is clear and efficient, allowing the activity to be carried out without interference between the work and meeting areas. The finishes and features have been chosen with a focus on durability, functionality and easy maintenance, not on temporary decorative elements. The property is ready for immediate use, which significantly reduces commissioning time and costs.
Technical details:
- Solid wood doors, replicas of the originals
- Colors from Benjamin Moore
- Nicolazzi Italia lights (bronze-blown aluminum)
- Nicolazzi Italia batteries (solid stainless bronze)
- Custom kitchen, granite countertop, Samsung equipment
- Kitchen ventilation Elicent, Italy (adjustable ceramic tubes)
- Anti-slip + anti-reflective tiles, 2 cm thick, crafted in a traditional oven, Greece
- Solid wood office furniture, cherry countertop, to order
- Sony TV
- TECE underfloor heating, power plant and boiler
- New electrical system
- Video systems & security from Bitroot, in-app control
- Windows + entrance door Gealan, S900 profile, Tripan glass
- Electric blinds with remote control
- Electric pergola on the terrace
- Mitsubishi air conditioning
- External insulation with graphite wool
- Anti-mold treatment with perimeter injection and at a depth of 20 cm, with Chemical Injection Damp Proofing technology
The design elements and objects in the common areas have been selected coherently and contribute to a professional ambience without unnecessarily cluttering the space. The focus is on functionality, comfort and a correct image for activities with direct interaction with the public.
The property is a suitable option for those looking for an ultra-central, fully functional office space with a private terrace and predictable operating costs.
For more information or to schedule a viewing, I invite you to contact me at the number displayed.
Description
The space is located ultracentrally, on Teatrului Street no. 6, in a secluded inner courtyard that provides easy access, but without direct exposure to traffic and noise. This positioning makes it suitable for professional activities that involve recurring meetings with clients and require a quiet setting: legal, consulting, psychotherapy, private services or similar activities.
The property was completely renovated in 2023 and is fully functional. It has a usable area of 78.45 sqm, is located on the ground floor and is divided into two well-proportioned offices, two bathrooms, kitchen and access hallway. In addition, there is a private terrace of 12.55 sqm, as well as two boxes in the basement. The space is sold in its current form, according to the images, without the need for additional works or subsequent investments.
The partitioning is clear and efficient, allowing the activity to be carried out without interference between the work and meeting areas. The finishes and features have been chosen with a focus on durability, functionality and easy maintenance, not on temporary decorative elements. The property is ready for immediate use, which significantly reduces commissioning time and costs.
Technical details:
- Solid wood doors, replicas of the originals
- Colors from Benjamin Moore
- Nicolazzi Italia lights (bronze-blown aluminum)
- Nicolazzi Italia batteries (solid stainless bronze)
- Custom kitchen, granite countertop, Samsung equipment
- Kitchen ventilation Elicent, Italy (adjustable ceramic tubes)
- Anti-slip + anti-reflective tiles, 2 cm thick, crafted in a traditional oven, Greece
- Solid wood office furniture, cherry countertop, to order
- Sony TV
- TECE underfloor heating, power plant and boiler
- New electrical system
- Video systems & security from Bitroot, in-app control
- Windows + entrance door Gealan, S900 profile, Tripan glass
- Electric blinds with remote control
- Electric pergola on the terrace
- Mitsubishi air conditioning
- External insulation with graphite wool
- Anti-mold treatment with perimeter injection and at a depth of 20 cm, with Chemical Injection Damp Proofing technology
The design elements and objects in the common areas have been selected coherently and contribute to a professional ambience without unnecessarily cluttering the space. The focus is on functionality, comfort and a correct image for activities with direct interaction with the public.
The property is a suitable option for those looking for an ultra-central, fully functional office space with a private terrace and predictable operating costs.
For more information or to schedule a viewing, I invite you to contact me at the number displayed.
Transformă-ți viziunea în realitate cu House Staging
Virtual!
Transformă-ți viziunea în realitate cu House
Staging Virtual!
Descoperă puterea creativității tale! Cu ajutorul instrumentului nostru de House Staging
Virtual, poți redecora și personaliza GRATUIT orice cameră din proprietatea de mai sus.
Experimentează cu mobilier, culori, texturi si stiluri diverse si vezi care dintre acestea ti se
potriveste.
Simplu, rapid și distractiv – toate acestea la un singur clic distanță. Începe acum să-ți
amenajezi virtual locuința ideală!
Presentation video
Oradea,
Ultracentral
Fiecare birou francizat RE/MAX e deținut și operat independent.
Download the buyer guide for free
Contact agent
Fă-ți cont pe Remax.ro!
Adaugi o proprietate la favorite.
Ai văzut o proprietate care ți-a plăcut? Salveaz-o pentru o accesare ulterioară rapidă.
Salvezi căutarile făcute.
Cauți proprietăți după anumite criterii? Acum le poți salva, pentru a verifica rapid proprietățile nou apărute pe site conform criteriilor tale de selecție.
Partajezi proprietatile selectate.
Vrei să te consiliezi cu un apropiat în privința unei anumite proprietăți? Ai posibilitatea să dai share listei de căutări salvate sau listei de favorite.