Urbanism: PUZ Aprobat, PUD Aprobat, Certificat de urbanism, Autorizație de construcție
Utilități teren: Utilități în zonă
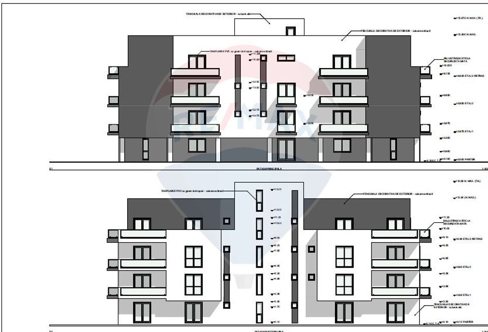
Descriere proprietate
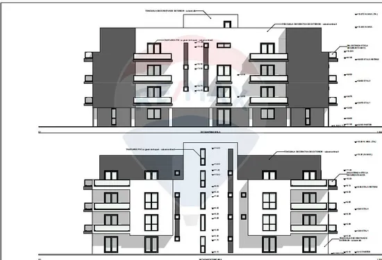
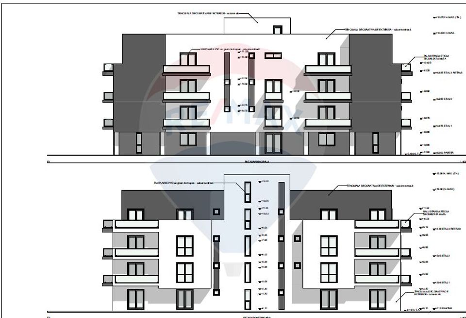
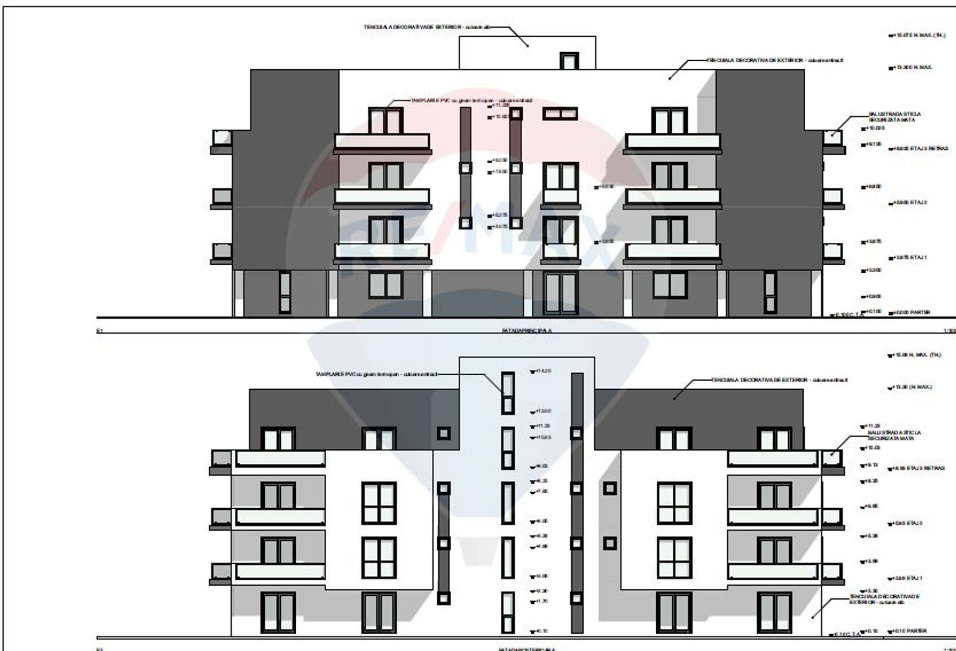
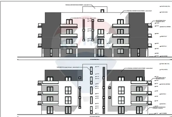
Terenul propus se afla in Titan, langa parcul Teilor, Bd. Theodor Pallady
1000 mp cu drumul de acces si se poate construi p+ 2+3R.
Autorizatia de constructie este data pentru o suprafata totala constuita de 1330mp.
(POT - 42,20%- raportat la proiectie etaj
CUT - 1,52(pt. p+2E+3ER)
Sunt prevazute 16apart de~ 100mp
si 16 locuri parcare + 2locuri vizitatori.
Va asteptam la o vizionare
Descriere proprietate
Terenul propus se afla in Titan, langa parcul Teilor, Bd. Theodor Pallady
1000 mp cu drumul de acces si se poate construi p+ 2+3R.
Autorizatia de constructie este data pentru o suprafata totala constuita de 1330mp.
(POT - 42,20%- raportat la proiectie etaj
CUT - 1,52(pt. p+2E+3ER)
Sunt prevazute 16apart de~ 100mp
si 16 locuri parcare + 2locuri vizitatori.
Va asteptam la o vizionare
Transformă-ți viziunea în realitate cu House Staging
Virtual!
Transformă-ți viziunea în realitate cu House
Staging Virtual!
Descoperă puterea creativității tale! Cu ajutorul instrumentului nostru de House Staging
Virtual, poți redecora și personaliza GRATUIT orice cameră din proprietatea de mai sus.
Experimentează cu mobilier, culori, texturi si stiluri diverse si vezi care dintre acestea ti se
potriveste.
Simplu, rapid și distractiv – toate acestea la un singur clic distanță. Începe acum să-ți
amenajezi virtual locuința ideală!
Bucuresti,
Theodor Pallady
Fiecare birou francizat RE/MAX e deținut și operat independent.
Descarca gratuit ghidul cumparatorului
Contacteaza agent
Fă-ți cont pe Remax.ro!
Adaugi o proprietate la favorite.
Ai văzut o proprietate care ți-a plăcut? Salveaz-o pentru o accesare ulterioară rapidă.
Salvezi căutarile făcute.
Cauți proprietăți după anumite criterii? Acum le poți salva, pentru a verifica rapid proprietățile nou apărute pe site conform criteriilor tale de selecție.
Partajezi proprietatile selectate.
Vrei să te consiliezi cu un apropiat în privința unei anumite proprietăți? Ai posibilitatea să dai share listei de căutări salvate sau listei de favorite.