Other features: Auto access, Investment opportunity, Enclosed land
Street amenities: Asphalt, Street lighting, Public transport
Urbanism: PUD Aprobat, Certificat de urbanism
Land amenities: Water, Sewage, Electricity, Gas
Description
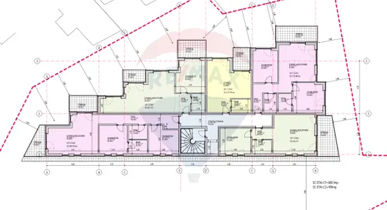
Opportunity to sell a plot of land in the area of Lacul Tei Boulevard – Circului Park, framed in the urban planning area M3, POT 2.5, CUT 60%, with an area of 1420 sqm. The land holds an urban planning certificate for the construction of a housing complex consisting of 2 buildings S+GF+3E+4-5E withdrawn and GF+2E. The land is in the PUD approval procedure. According to the submitted plans, the construction of 26 apartments is planned, of which 3 studios, 7 ap. 2 cam, 15 ap. 3 cam, 1 ap. 4 cam and two office spaces. The details can be found in the business plan in the presentation of the property, and the possibility of investment, financing, concept and partnership can also be discussed. For more information please contact me.
Description
Opportunity to sell a plot of land in the area of Lacul Tei Boulevard – Circului Park, framed in the urban planning area M3, POT 2.5, CUT 60%, with an area of 1420 sqm. The land holds an urban planning certificate for the construction of a housing complex consisting of 2 buildings S+GF+3E+4-5E withdrawn and GF+2E. The land is in the PUD approval procedure. According to the submitted plans, the construction of 26 apartments is planned, of which 3 studios, 7 ap. 2 cam, 15 ap. 3 cam, 1 ap. 4 cam and two office spaces. The details can be found in the business plan in the presentation of the property, and the possibility of investment, financing, concept and partnership can also be discussed. For more information please contact me.
Transformă-ți viziunea în realitate cu House Staging
Virtual!
Transformă-ți viziunea în realitate cu House
Staging Virtual!
Descoperă puterea creativității tale! Cu ajutorul instrumentului nostru de House Staging
Virtual, poți redecora și personaliza GRATUIT orice cameră din proprietatea de mai sus.
Experimentează cu mobilier, culori, texturi si stiluri diverse si vezi care dintre acestea ti se
potriveste.
Simplu, rapid și distractiv – toate acestea la un singur clic distanță. Începe acum să-ți
amenajezi virtual locuința ideală!
Bucuresti,
Parcul Circului
Fiecare birou francizat RE/MAX e deținut și operat independent.
Download the buyer guide for free
Contact agent
Fă-ți cont pe Remax.ro!
Adaugi o proprietate la favorite.
Ai văzut o proprietate care ți-a plăcut? Salveaz-o pentru o accesare ulterioară rapidă.
Salvezi căutarile făcute.
Cauți proprietăți după anumite criterii? Acum le poți salva, pentru a verifica rapid proprietățile nou apărute pe site conform criteriilor tale de selecție.
Partajezi proprietatile selectate.
Vrei să te consiliezi cu un apropiat în privința unei anumite proprietăți? Ai posibilitatea să dai share listei de căutări salvate sau listei de favorite.