Other features for commercial space: Access for the disabled, Secondary goods access, Logo on building, Separate metering, Terrace possible
Architecture: Bathrooms furnished and equipped
Air conditioning: Boiler
Land amenities: Water, Sewage, Electricity, Gas
Description
Versatile Commercial Space with Maximum Potential!
We offer you for rent an exceptional commercial space, defined by generosity and strategic positioning, ideal for a wide range of economic activities. The property benefits from increased visibility and a pedestrian/car flow ensured by the vicinity of the ADM residential complex and a dense area of villas.
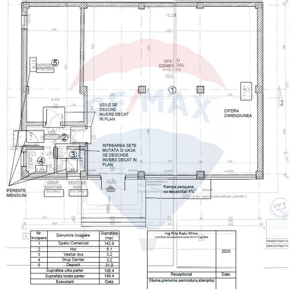
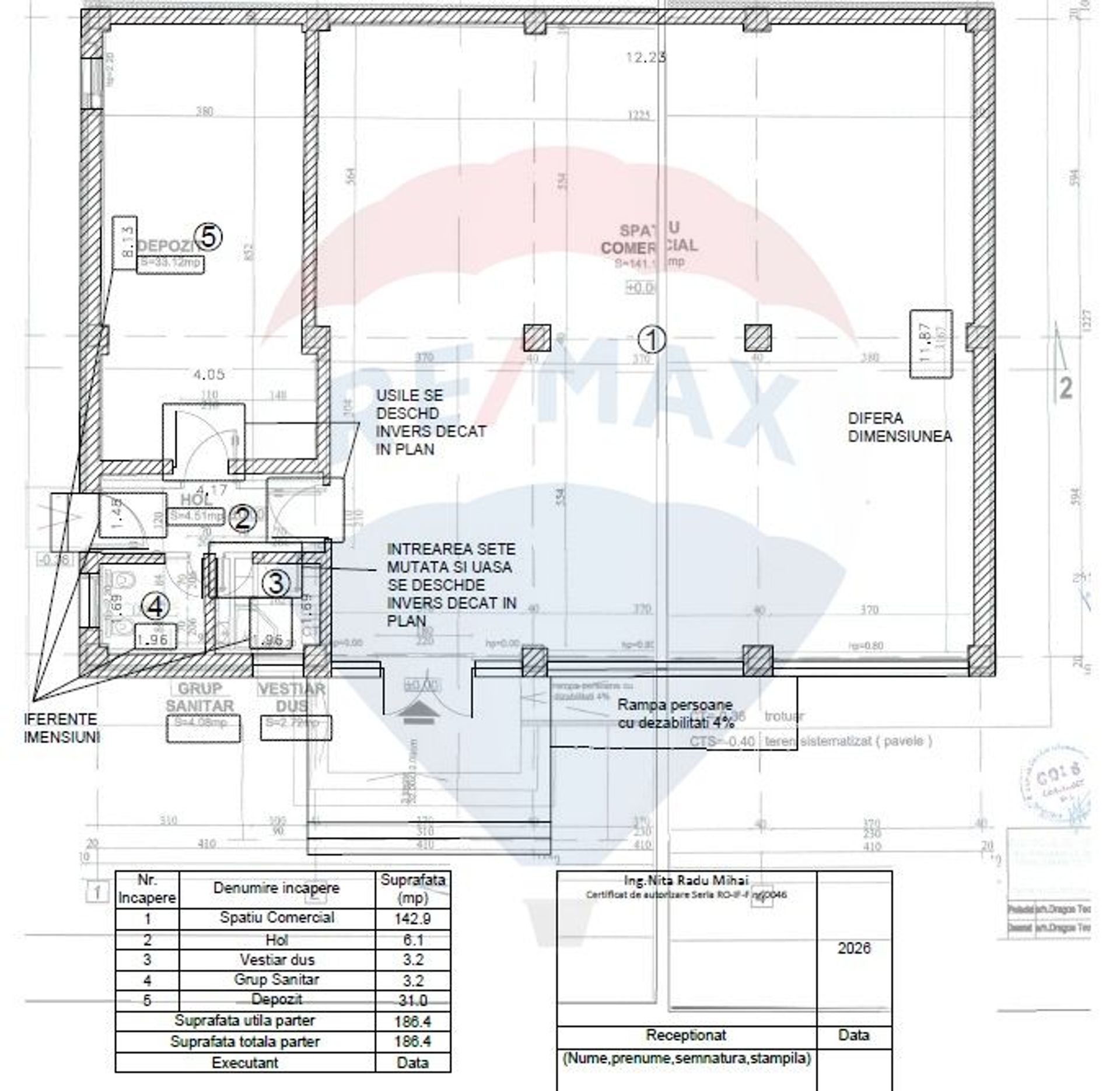
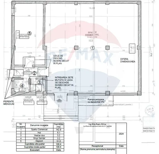
Land Area: 707sqm
Main access: 18 Neamului Street
Secondary Access: Great facility for provisioning or private parking.
Construction Configuration
The building is modernly designed, emphasizing the open-space concept to offer total flexibility in partitioning:
Total usable area: 186 sqm (out of 212 sqm built area)
A generous open-space of 143 sqm, flooded with natural light thanks to the large windows in front of the building.
Annexes: Technical room and fully equipped bathroom.
Storage space: 31 sqm with separate entrance, ideal for stocks, goods reception or administrative area.
Energy class A, Energy performance of the building 99.28. Specific annual energy consumption 124.27
Do not hesitate to call me to set up a viewing!
I invite colleagues to collaborate!
Description
Versatile Commercial Space with Maximum Potential!
We offer you for rent an exceptional commercial space, defined by generosity and strategic positioning, ideal for a wide range of economic activities. The property benefits from increased visibility and a pedestrian/car flow ensured by the vicinity of the ADM residential complex and a dense area of villas.
Land Area: 707sqm
Main access: 18 Neamului Street
Secondary Access: Great facility for provisioning or private parking.
Construction Configuration
The building is modernly designed, emphasizing the open-space concept to offer total flexibility in partitioning:
Total usable area: 186 sqm (out of 212 sqm built area)
A generous open-space of 143 sqm, flooded with natural light thanks to the large windows in front of the building.
Annexes: Technical room and fully equipped bathroom.
Storage space: 31 sqm with separate entrance, ideal for stocks, goods reception or administrative area.
Energy class A, Energy performance of the building 99.28. Specific annual energy consumption 124.27
Do not hesitate to call me to set up a viewing!
I invite colleagues to collaborate!
Transformă-ți viziunea în realitate cu House Staging
Virtual!
Transformă-ți viziunea în realitate cu House
Staging Virtual!
Descoperă puterea creativității tale! Cu ajutorul instrumentului nostru de House Staging
Virtual, poți redecora și personaliza GRATUIT orice cameră din proprietatea de mai sus.
Experimentează cu mobilier, culori, texturi si stiluri diverse si vezi care dintre acestea ti se
potriveste.
Simplu, rapid și distractiv – toate acestea la un singur clic distanță. Începe acum să-ți
amenajezi virtual locuința ideală!
Fiecare birou francizat RE/MAX e deținut și operat independent.
Download the buyer guide for free
Contact agent
Fă-ți cont pe Remax.ro!
Adaugi o proprietate la favorite.
Ai văzut o proprietate care ți-a plăcut? Salveaz-o pentru o accesare ulterioară rapidă.
Salvezi căutarile făcute.
Cauți proprietăți după anumite criterii? Acum le poți salva, pentru a verifica rapid proprietățile nou apărute pe site conform criteriilor tale de selecție.
Partajezi proprietatile selectate.
Vrei să te consiliezi cu un apropiat în privința unei anumite proprietăți? Ai posibilitatea să dai share listei de căutări salvate sau listei de favorite.