Street amenities: Asphalt, Street lighting, Public transport
Architecture: Hone, Parquet
Meters: Water meters
Features: Air conditioning, Stove, Fridge, Dishwasher
Windows: PVC
IT&C: Internet
Thermal insulation: Outdoor
Window blinds: Horizontal
Walls: Ceramic Tiles, Washable paint
Heating system: Radiators, Heating
General utilities: Water, Sewage, CATV, Electricity, Gas
Interior doors: Wood
Front door: Metal
Description
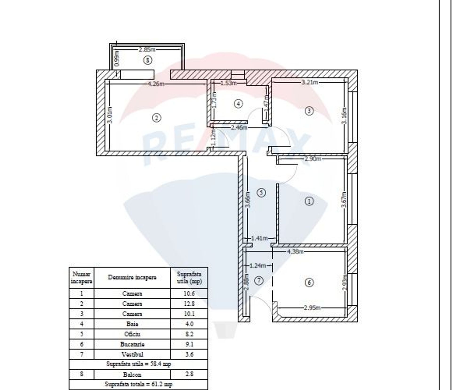
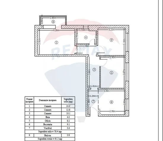
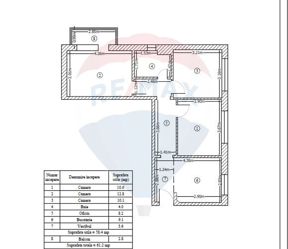
We offer for sale a 3-room apartment, located on Dinicu Golescu Boulevard no. 37, on the 7th floor of a well-maintained, thermally enveloped building, located in the immediate vicinity of the North Station.
The apartment benefits from practical partitioning and abundant natural light, and the positioning on the upper floor offers an open view and a good level of tranquility. The area is excellently connected to the city, with quick access to the metro, tram, buses and the main arteries of the capital.
The home requires renovation, which is an important advantage for the future owner, offering the freedom to arrange and completely customize it to your own taste and needs, without compromise. It is an ideal opportunity for those who want to create a home exactly as they imagine it or for investors looking for good value growth potential.
An excellent choice for both housing and investment, due to its central position and high accessibility.
Don't miss the opportunity to discover the comfort and tranquility that this apartment offers! Contact us for more details and a viewing! We are also open to collaboration with real estate agencies in the market for the sale of this apartment.
We offer free consultancy in order to access the mortgage loan.
Energy performance features:
- energy class A
- total specific consumption of primary energy: 136.21;
- CO_2 equivalent emission index: 28.50;
- total specific energy consumption from renewable sources: 0
Description
We offer for sale a 3-room apartment, located on Dinicu Golescu Boulevard no. 37, on the 7th floor of a well-maintained, thermally enveloped building, located in the immediate vicinity of the North Station.
The apartment benefits from practical partitioning and abundant natural light, and the positioning on the upper floor offers an open view and a good level of tranquility. The area is excellently connected to the city, with quick access to the metro, tram, buses and the main arteries of the capital.
The home requires renovation, which is an important advantage for the future owner, offering the freedom to arrange and completely customize it to your own taste and needs, without compromise. It is an ideal opportunity for those who want to create a home exactly as they imagine it or for investors looking for good value growth potential.
An excellent choice for both housing and investment, due to its central position and high accessibility.
Don't miss the opportunity to discover the comfort and tranquility that this apartment offers! Contact us for more details and a viewing! We are also open to collaboration with real estate agencies in the market for the sale of this apartment.
We offer free consultancy in order to access the mortgage loan.
Energy performance features:
- energy class A
- total specific consumption of primary energy: 136.21;
- CO_2 equivalent emission index: 28.50;
- total specific energy consumption from renewable sources: 0
Transformă-ți viziunea în realitate cu House Staging
Virtual!
Transformă-ți viziunea în realitate cu House
Staging Virtual!
Descoperă puterea creativității tale! Cu ajutorul instrumentului nostru de House Staging
Virtual, poți redecora și personaliza GRATUIT orice cameră din proprietatea de mai sus.
Experimentează cu mobilier, culori, texturi si stiluri diverse si vezi care dintre acestea ti se
potriveste.
Simplu, rapid și distractiv – toate acestea la un singur clic distanță. Începe acum să-ți
amenajezi virtual locuința ideală!
Bucuresti,
Gara de Nord
Fiecare birou francizat RE/MAX e deținut și operat independent.
Download the buyer guide for free
Contact agent
Fă-ți cont pe Remax.ro!
Adaugi o proprietate la favorite.
Ai văzut o proprietate care ți-a plăcut? Salveaz-o pentru o accesare ulterioară rapidă.
Salvezi căutarile făcute.
Cauți proprietăți după anumite criterii? Acum le poți salva, pentru a verifica rapid proprietățile nou apărute pe site conform criteriilor tale de selecție.
Partajezi proprietatile selectate.
Vrei să te consiliezi cu un apropiat în privința unei anumite proprietăți? Ai posibilitatea să dai share listei de căutări salvate sau listei de favorite.