Street amenities: Asphalt, Street lighting, Public transport
Land amenities: Water, Sewage, Electricity, Gas
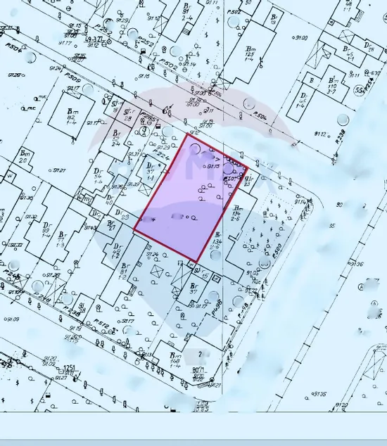
Description
We offer for sale a plot of land with an area of 330 sqm with an opening of 11.8 m, located in the vicinity of Laminorului Boulevard, Bucurestii Noi. Construction regime P - GF+1+M levels is framed in L1e - sub-area of small individual dwellings, POT 60%, CUT 0.6 - 1.2, there is a building agreement at the curb.
In the vicinity is the Laminorului metro station. The utilities are located at the property limit.
Description
We offer for sale a plot of land with an area of 330 sqm with an opening of 11.8 m, located in the vicinity of Laminorului Boulevard, Bucurestii Noi. Construction regime P - GF+1+M levels is framed in L1e - sub-area of small individual dwellings, POT 60%, CUT 0.6 - 1.2, there is a building agreement at the curb.
In the vicinity is the Laminorului metro station. The utilities are located at the property limit.
Transformă-ți viziunea în realitate cu House Staging
Virtual!
Transformă-ți viziunea în realitate cu House
Staging Virtual!
Descoperă puterea creativității tale! Cu ajutorul instrumentului nostru de House Staging
Virtual, poți redecora și personaliza GRATUIT orice cameră din proprietatea de mai sus.
Experimentează cu mobilier, culori, texturi si stiluri diverse si vezi care dintre acestea ti se
potriveste.
Simplu, rapid și distractiv – toate acestea la un singur clic distanță. Începe acum să-ți
amenajezi virtual locuința ideală!
Fiecare birou francizat RE/MAX e deținut și operat independent.
Download the buyer guide for free
Contact agent
Fă-ți cont pe Remax.ro!
Adaugi o proprietate la favorite.
Ai văzut o proprietate care ți-a plăcut? Salveaz-o pentru o accesare ulterioară rapidă.
Salvezi căutarile făcute.
Cauți proprietăți după anumite criterii? Acum le poți salva, pentru a verifica rapid proprietățile nou apărute pe site conform criteriilor tale de selecție.
Partajezi proprietatile selectate.
Vrei să te consiliezi cu un apropiat în privința unei anumite proprietăți? Ai posibilitatea să dai share listei de căutări salvate sau listei de favorite.