Other features: Auto access, Investment opportunity, Enclosed land
Street amenities: Asphalt, Street lighting, Public transport
Urbanism: PUD Aprobat, Certificat de urbanism, Autorizație de construcție
Land amenities: Water, Sewage, Electricity, Gas
Description
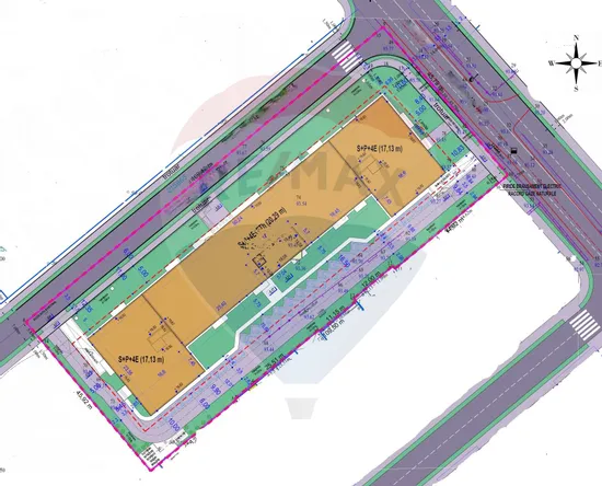
We present for sale a plot of land, with an area of 5000 sqm, opening 46m, with BUILDING PERMIT for a block with 92 apartments S+P+4E+Eth, located in the Straulesti district, near (1.4 km) from the Straulesti metro station, Doi Cocosi. The building permit is issued in the second quarter of 2025, based on the urban planning certificate and the PUD. According to the Building Permit, a building with 92 apartments, 114 parking spaces, of which 97 parking spaces in the basement, can be developed.
SCD 11,986sqm, of which 8037sqm aboveground, 3173sqm underground, 656sqm balconies and loggias, 779sqm ground floor courtyards. SUD 6759sqm, 656sqm balconies and loggias, 97 underground parking spaces and 17 ground parking spaces. Footprint – 1,700 sqm
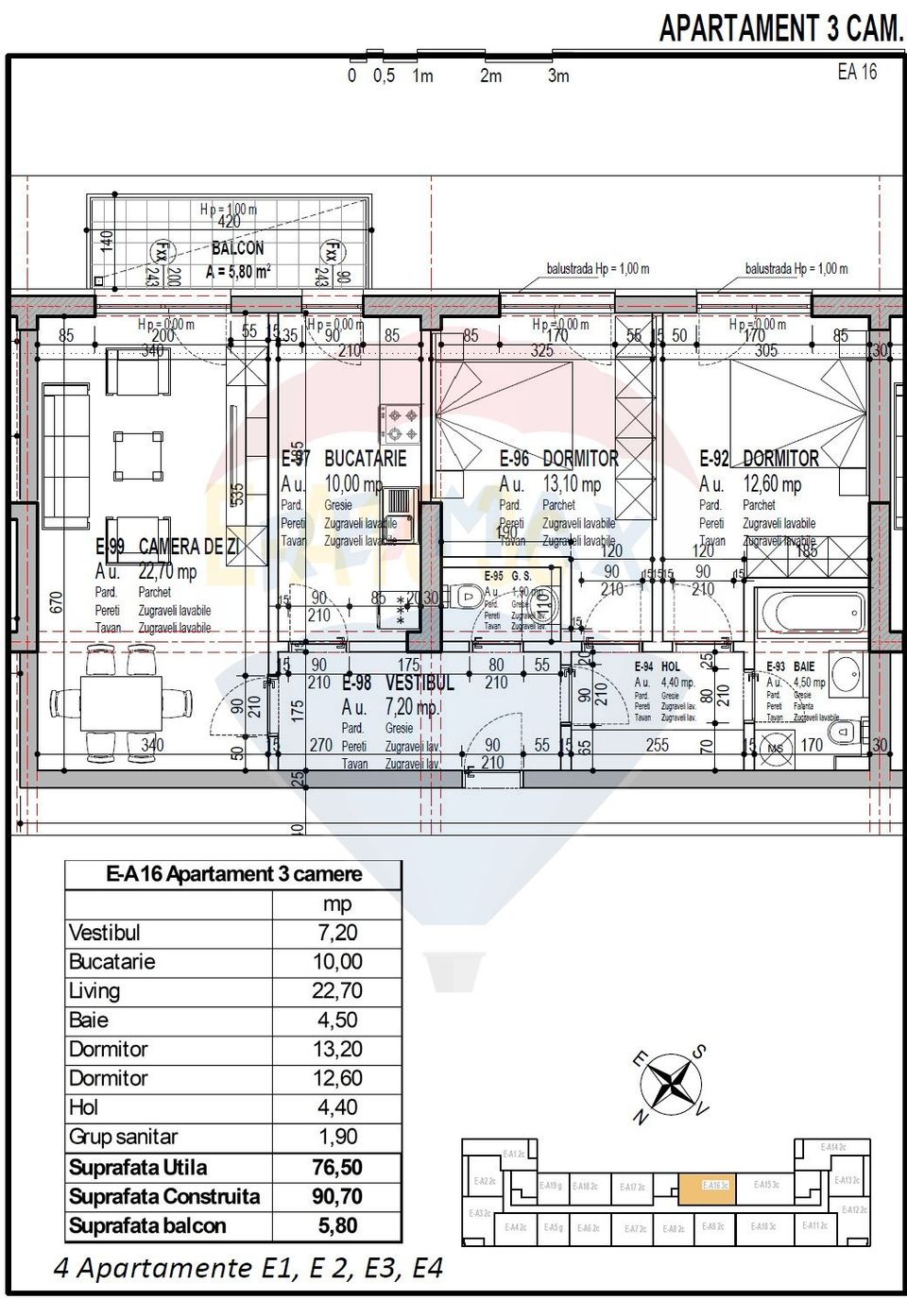
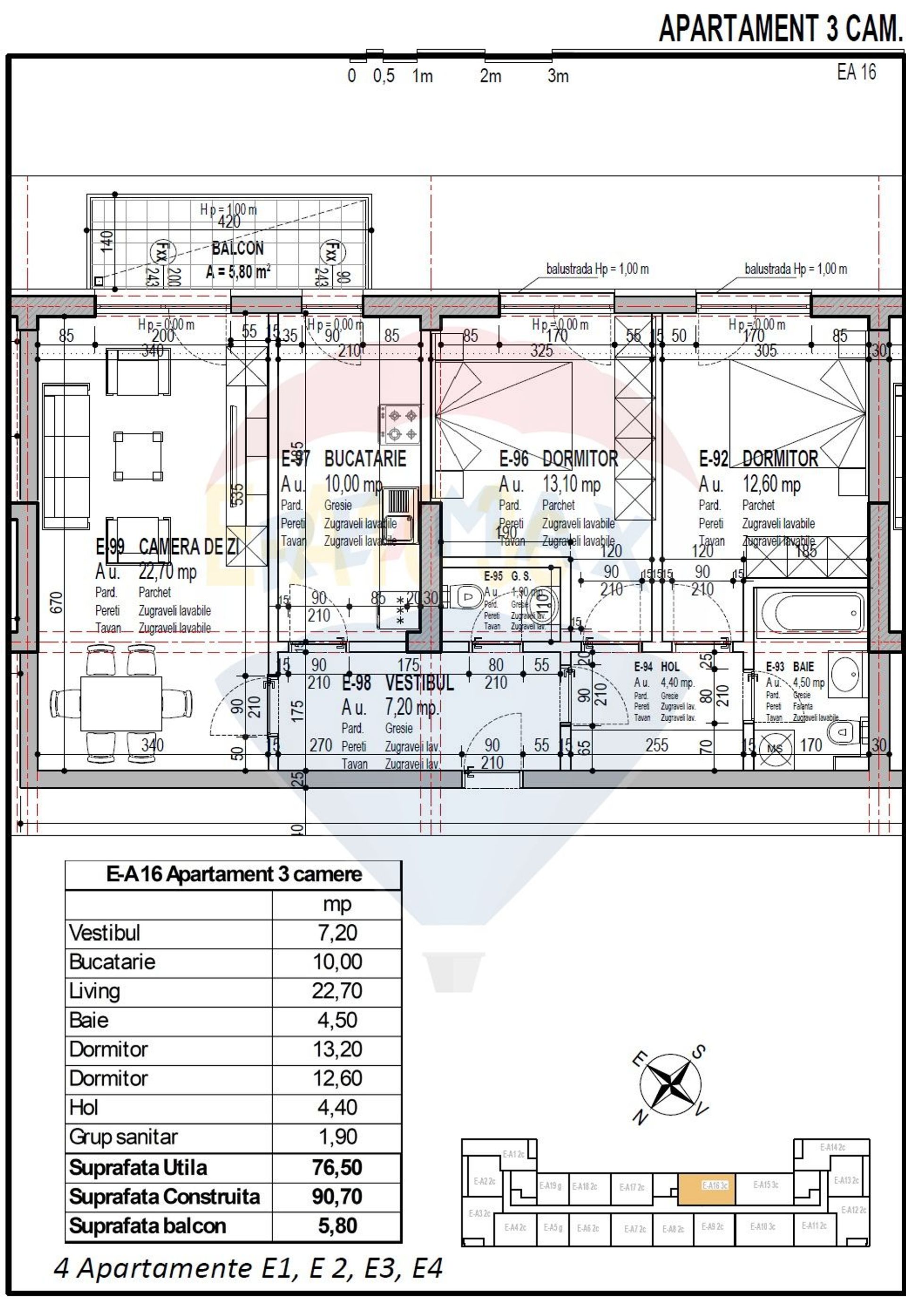
The 1st, 2nd, 3rd and 4th floors (each) have 19 apartments of which – 3 3-room apartments, 14 2-room apartments and 2 one-room apartments, and the ground floor has 16 apartments of which – 7 3-room apartments, 7 2-room apartments and 2 one-room apartments, with designated interior courtyards. According to the functional composition of the building, the 3-room apartments have SU with areas between 72sqm and 83sqm, the 2-room SU between 55sqm and 63sqm and the studios with SU 42sqm.
The urban planning certificate allows the authorization of 2 more floors, 5R+6R, which we can support you to obtain.
The northern area of Doi Cocosi is in a major development, the sale prices of the apartments in the area ensuring a consistent profit. Construction can start immediately, which is a major advantage for the developer
The price of 230 euros/sqm for how much this land is sold is below the average sale price of the land in the Straulesti area.
Description
We present for sale a plot of land, with an area of 5000 sqm, opening 46m, with BUILDING PERMIT for a block with 92 apartments S+P+4E+Eth, located in the Straulesti district, near (1.4 km) from the Straulesti metro station, Doi Cocosi. The building permit is issued in the second quarter of 2025, based on the urban planning certificate and the PUD. According to the Building Permit, a building with 92 apartments, 114 parking spaces, of which 97 parking spaces in the basement, can be developed.
SCD 11,986sqm, of which 8037sqm aboveground, 3173sqm underground, 656sqm balconies and loggias, 779sqm ground floor courtyards. SUD 6759sqm, 656sqm balconies and loggias, 97 underground parking spaces and 17 ground parking spaces. Footprint – 1,700 sqm
The 1st, 2nd, 3rd and 4th floors (each) have 19 apartments of which – 3 3-room apartments, 14 2-room apartments and 2 one-room apartments, and the ground floor has 16 apartments of which – 7 3-room apartments, 7 2-room apartments and 2 one-room apartments, with designated interior courtyards. According to the functional composition of the building, the 3-room apartments have SU with areas between 72sqm and 83sqm, the 2-room SU between 55sqm and 63sqm and the studios with SU 42sqm.
The urban planning certificate allows the authorization of 2 more floors, 5R+6R, which we can support you to obtain.
The northern area of Doi Cocosi is in a major development, the sale prices of the apartments in the area ensuring a consistent profit. Construction can start immediately, which is a major advantage for the developer
The price of 230 euros/sqm for how much this land is sold is below the average sale price of the land in the Straulesti area.
Transformă-ți viziunea în realitate cu House Staging
Virtual!
Transformă-ți viziunea în realitate cu House
Staging Virtual!
Descoperă puterea creativității tale! Cu ajutorul instrumentului nostru de House Staging
Virtual, poți redecora și personaliza GRATUIT orice cameră din proprietatea de mai sus.
Experimentează cu mobilier, culori, texturi si stiluri diverse si vezi care dintre acestea ti se
potriveste.
Simplu, rapid și distractiv – toate acestea la un singur clic distanță. Începe acum să-ți
amenajezi virtual locuința ideală!
Fiecare birou francizat RE/MAX e deținut și operat independent.
Download the buyer guide for free
Contact agent
Fă-ți cont pe Remax.ro!
Adaugi o proprietate la favorite.
Ai văzut o proprietate care ți-a plăcut? Salveaz-o pentru o accesare ulterioară rapidă.
Salvezi căutarile făcute.
Cauți proprietăți după anumite criterii? Acum le poți salva, pentru a verifica rapid proprietățile nou apărute pe site conform criteriilor tale de selecție.
Partajezi proprietatile selectate.
Vrei să te consiliezi cu un apropiat în privința unei anumite proprietăți? Ai posibilitatea să dai share listei de căutări salvate sau listei de favorite.