Amenajare străzi: Asfaltate, Iluminat stradal, Mijloace de transport în comun
Finisaje: Gresie, Parchet
Bucătărie: Mobilată, Utilată
Diverse: Senzor de fum, Telecomandă poartă acces auto
Dotări: Aer condiționat, Aragaz, Frigider, Mașină de spălat rufe, Mașină de spălat vase, TV
Dotări imobil: Dressing, Interfon, Videointerfon
Electrocasnice: Hotă
IT&C: Internet, Telefon
Mobilat: Lux
Pereți: Faianță, Vopsea lavabilă
Siguranță și securitate: Pază permanentă
Utilități de bază: Supraveghere video
Utilități generale: Apă, Canalizare, CATV, Curent, Gaz
Uși interior: Lemn
Ușă intrare: Metal
Descriere proprietate
Vă propunem spre închiriere un apartament modern de 3 camere, situat în zona Sisești, în cadrul apreciatului complex rezidențial NorthSide Park, ansamblu nou, finalizat în 2022, ce îmbină confortul urban cu liniștea unei zone verzi.
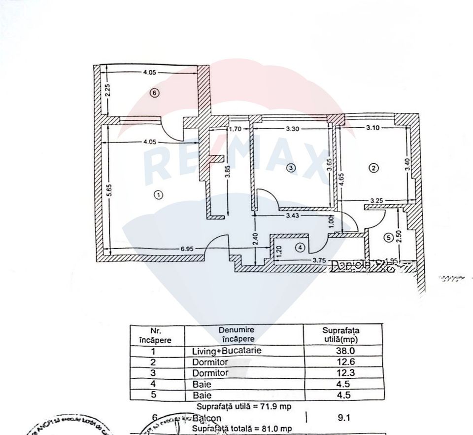
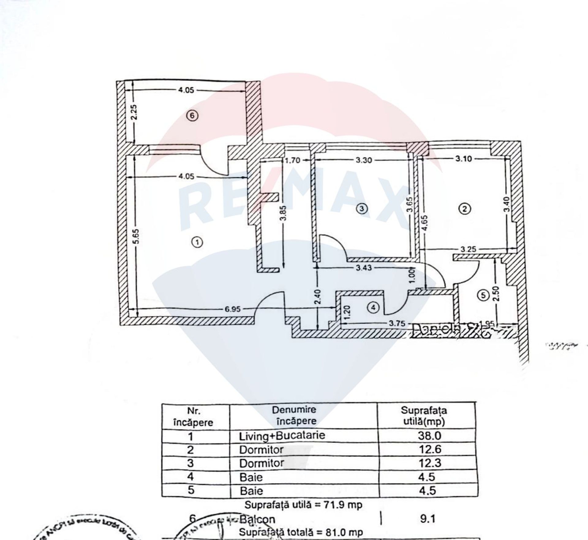
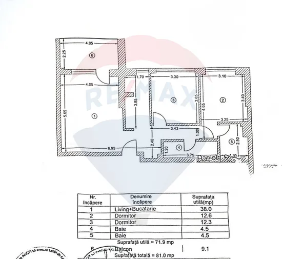
Apartamentul este decomandat, orientat catre vest, având o suprafață utilă de 71 mp și fiind disponibil imediat. Compartimentarea este practică și bine gândită: living spațios, două dormitoare, bucătărie separată, două băi și un balcon. Un aspect important este faptul că una dintre băi este situată în dormitorul matrimonial, oferind intimitate și un plus de confort.
Un alt avantaj major îl reprezintă localizarea excelentă, la doar 5 minute de mers pe jos până la stația de metrou Sisești, precum și accesul rapid către mijloacele de transport în comun. În imediata apropiere se află parc amenajat cu vedere la lac, ideal pentru relaxare și activități în aer liber. Apartamentul dispune de un loc de parcare, inclus în ofertă.
Complexul NorthSide Park oferă un nivel ridicat de siguranță și confort, cu pază permanentă, supraveghere video, videointerfon, interfon, senzori de fum, lift și acces auto cu telecomandă. Zona este complet amenajată, cu străzi asfaltate și iluminat stradal.
Această proprietate este alegerea ideală pentru cei care își doresc un apartament modern, luminos și bine poziționat, într-un complex nou, cu acces facil la metrou și zone de recreere.
Va invitam la colaborare!
Descriere proprietate
Vă propunem spre închiriere un apartament modern de 3 camere, situat în zona Sisești, în cadrul apreciatului complex rezidențial NorthSide Park, ansamblu nou, finalizat în 2022, ce îmbină confortul urban cu liniștea unei zone verzi.
Apartamentul este decomandat, orientat catre vest, având o suprafață utilă de 71 mp și fiind disponibil imediat. Compartimentarea este practică și bine gândită: living spațios, două dormitoare, bucătărie separată, două băi și un balcon. Un aspect important este faptul că una dintre băi este situată în dormitorul matrimonial, oferind intimitate și un plus de confort.
Un alt avantaj major îl reprezintă localizarea excelentă, la doar 5 minute de mers pe jos până la stația de metrou Sisești, precum și accesul rapid către mijloacele de transport în comun. În imediata apropiere se află parc amenajat cu vedere la lac, ideal pentru relaxare și activități în aer liber. Apartamentul dispune de un loc de parcare, inclus în ofertă.
Complexul NorthSide Park oferă un nivel ridicat de siguranță și confort, cu pază permanentă, supraveghere video, videointerfon, interfon, senzori de fum, lift și acces auto cu telecomandă. Zona este complet amenajată, cu străzi asfaltate și iluminat stradal.
Această proprietate este alegerea ideală pentru cei care își doresc un apartament modern, luminos și bine poziționat, într-un complex nou, cu acces facil la metrou și zone de recreere.
Va invitam la colaborare!
Transformă-ți viziunea în realitate cu House Staging
Virtual!
Transformă-ți viziunea în realitate cu House
Staging Virtual!
Descoperă puterea creativității tale! Cu ajutorul instrumentului nostru de House Staging
Virtual, poți redecora și personaliza GRATUIT orice cameră din proprietatea de mai sus.
Experimentează cu mobilier, culori, texturi si stiluri diverse si vezi care dintre acestea ti se
potriveste.
Simplu, rapid și distractiv – toate acestea la un singur clic distanță. Începe acum să-ți
amenajezi virtual locuința ideală!
Bucuresti,
Straulesti
Fiecare birou francizat RE/MAX e deținut și operat independent.
Descarca gratuit ghidul cumparatorului
Contacteaza agent
Fă-ți cont pe Remax.ro!
Adaugi o proprietate la favorite.
Ai văzut o proprietate care ți-a plăcut? Salveaz-o pentru o accesare ulterioară rapidă.
Salvezi căutarile făcute.
Cauți proprietăți după anumite criterii? Acum le poți salva, pentru a verifica rapid proprietățile nou apărute pe site conform criteriilor tale de selecție.
Partajezi proprietatile selectate.
Vrei să te consiliezi cu un apropiat în privința unei anumite proprietăți? Ai posibilitatea să dai share listei de căutări salvate sau listei de favorite.